Property
Account |
| Property ID: | 33780 | Abbreviated Legal Description: | KUHN'S RANCH BLK 10 LOT 6(W75 1/4') |
| Parcel # / Geo ID: | 965701004 | Agent Code: | |
| Type: | Real | | |
| Tax Area: | 0110 - C-50F1E1H2 | Land Use Code | 11 |
| Open Space: | N | DFL | N |
| Historic Property: | N | Remodel Property: | N |
| Multi-Family Redevelopment: | N | | |
| Township: | 30N | Section: | 2 |
| Range: | 1W |
Location |
| Address: | 824 WALKER ST PORT TOWNSEND, WA 98368 | Mapsco: | 071/024 |
| Neighborhood: | KUHN'S RANCH AND HIGH SCHOOL | Map ID: | |
| Neighborhood CD: | 6350 |
Owner |
| Name: | CINDY H FINNIE REV LIVING TRUST | Owner ID: | 98281 |
| Mailing Address: | CINDY H FINNIE TRUSTEE MICHAEL FINNIE 824 WALKER ST PORT TOWNSEND, WA 98368-7921 | % Ownership: | 100.0000000000% |
| | | Exemptions: | |
Pay Tax Due
There is currently No Amount Due on this property.
Taxes and Assessment Details
Property Tax Information as of
10/24/2025
Click on "Statement Details" to expand or collapse a tax statement.
* Please enter a valid date ** Please enter a valid date *
Statement Details |
| | TOTAL: | $0.00 | $0.00 | $0.00 | $0.00 | $0.00 | $0.00 |
|
| | $0.00 | $0.00 | $0.00 | $0.00 | $0.00 | $0.00 |
Values
| (+) Improvement Homesite Value: | + | $0 | |
| (+) Improvement Non-Homesite Value: | + | $170,395 | |
| (+) Land Homesite Value: | + | $0 | |
| (+) Land Non-Homesite Value: | + | $235,800 | |
| (+) Curr Use (HS): | + | $0 | $0 |
| (+) Curr Use (NHS): | + | $0 | $0 |
| | | -------------------------- | |
| (=) Market Value: | = | $406,195 | |
| (–) Productivity Loss: | – | $0 | |
| | | -------------------------- | |
| (=) Subtotal: | = | $406,195 | |
| (+) Senior Appraised Value: | + | $0 | |
| (+) Non-Senior Appraised Value: | + | $406,195 | |
| | | -------------------------- | |
| (=) Total Appraised Value: | = | $406,195 | |
| (–) Senior Exemption Loss: | – | $0 | |
| (–) Exemption Loss: | – | $0 | |
| | | -------------------------- | |
| (=) Taxable Value: | = | $406,195 | |
Taxing Jurisdiction
| Owner: | CINDY H FINNIE REV LIVING TRUST | | |
| % Ownership: | 100.0000000000% | | |
| Total Value: | N/A | | |
| Tax Area: | 0110 - C-50F1E1H2 |
| CE | COUNTY CURRENT EXPENSE | N/A | N/A | N/A | N/A | | |
| CNTYDD | DEVELOPMENTAL DISABILITIES | N/A | N/A | N/A | N/A | | |
| CNTYVET | VETERANS RELIEF | N/A | N/A | N/A | N/A | | |
| MENTAL | MENTAL HEALTH | N/A | N/A | N/A | N/A | | |
| PTGEN | CITY OF PT GENERAL | N/A | N/A | N/A | N/A | | |
| PTLLL | CITY OF PT - LIBRARY LID LIFT | N/A | N/A | N/A | N/A | | |
| PTMVBOND | CITY OF PT MV BOND | N/A | N/A | N/A | N/A | | |
| HOSP2CASH | HOSP DIST #2 GENERAL | N/A | N/A | N/A | N/A | | |
| SCH50BOND | SCHOOL DIST #50 BOND 2016 | N/A | N/A | N/A | N/A | | |
| SCH50CP | SCHOOL DIST #50 CAP PROJ | N/A | N/A | N/A | N/A | | |
| SCH50MO | SCHOOL DIST #50 EP & O | N/A | N/A | N/A | N/A | | |
| CONSERVE | CONSERVATION FUTURES | N/A | N/A | N/A | N/A | | |
| EMS1 | FIRE DIST #1 EMS | N/A | N/A | N/A | N/A | | |
| FD1 | FIRE DIST #1 GENERAL | N/A | N/A | N/A | N/A | | |
| PORTPT | PORT OF PT GENERAL | N/A | N/A | N/A | N/A | | |
| PORTPTIDD | PORT OF PT IDD 2019 | N/A | N/A | N/A | N/A | | |
| PUD1 | PUD #1 GENERAL | N/A | N/A | N/A | N/A | | |
| STATE | STATE SCHOOL PART 1 | N/A | N/A | N/A | N/A | | |
| STATE2 | STATE SCHOOL PART 2 | N/A | N/A | N/A | N/A | | |
| | Total Tax Rate: | N/A | | | | | |
| | | | | Taxes w/Current Exemptions: | N/A | | |
| | | | | Taxes w/o Exemptions: | N/A | | |
Improvement / Building
| Improvement #1: | Residential Bldg | State Code: | 11 | 896.0 sqft | Value: | $170,395 |
| Bathrooms (#): | 1 (FULL) | Bedrooms (#): | 1 | | Exterior Wall: | SI/ST | Floor Construction: | FRAME | | Foundation: | CONPR | Heating/Cooling: | ELBB | | Roof Cover: | COMP |   |   |
|
| | Type | Description | Class CD | Sub Class CD | Year Built | Area |
| | MA | Main Area | 3 | 1S | 1925 | 896.0 |
| | HWPOR | House Wood Porch | 3 | * | 1925 | 12.0 |
| | CARPTF | Carport W/Floor | 2 | * | 1925 | 264.0 |
| | SHED | Shed (Table Not Dep) | 3 | * | 1925 | 204.0 |
| | HDECK | House Deck | 4 | * | 2019 | 99.0 |
Sketch
Property Image
Land
| 1 | 6350-1155L | Uptown Std Lot (View Area) | 0.0000 | 0.00 | 0.00 | 0.00 | 1.00 | $235,800 | $0 |
Roll Value History
| 2025 | N/A | N/A | N/A | N/A | N/A |
| 2024 | $157,421 | $236,280 | $0 | $393,701 | $393,701 |
| 2023 | $151,124 | $220,290 | $0 | $371,414 | $371,414 |
| 2022 | $138,531 | $204,800 | $0 | $343,331 | $343,331 |
| 2021 | $115,828 | $184,320 | $0 | $300,148 | $300,148 |
Deed and Sales History
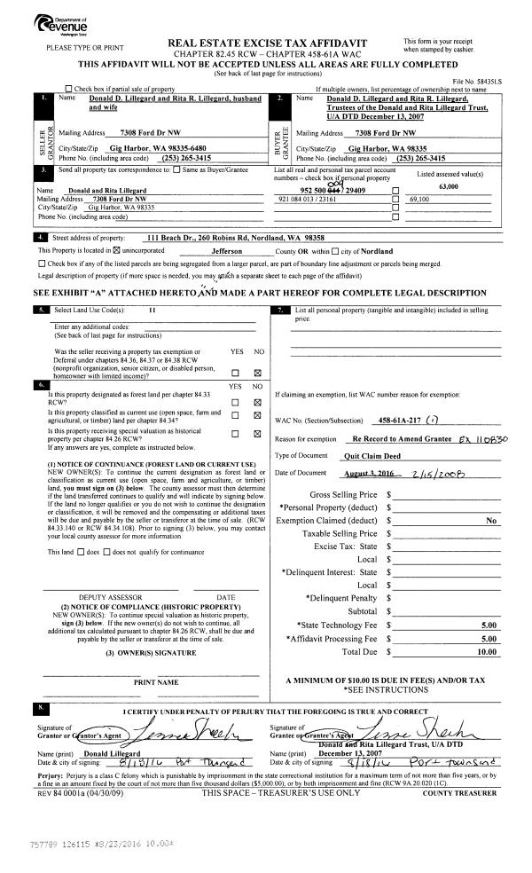
| 1 | 11/06/2017 | QCD | Quit Claim Deed | | | | | | 128966 | |
| 2 | 07/13/2017 | SWD | Statutory Warranty Deed | WILLIAM J WICKLINE TRSTE | CINDY HILL FINNIE | | | $225,000.00 | 128170 | |
| 3 | 03/23/2007 | QCD | Quit Claim Deed | WICKLINE, WILLIAM JACK/PA | WICKLINE, WILLIAM JACK/PATRICI | 0 | 0 | $0.00 | 108861 | 0 |
| 4 | 08/02/1994 | SWD | Statutory Warranty Deed | PETTLER, M L/FELDMAN, J J | WICKLINE, WILLIAM J/PATRICIA L | 0 | 0 | $80,000.00 | 74831 | 0 |
| 5 | 12/01/1993 | WD | Warranty Deed | FITTERER, LEO S & VERA A/ | FELDMAN/PETTLER | 0 | 0 | $0.00 | 73045 | 0 |
Payout Agreement
| No payout information available.. |