Property
Account |
| Property ID: | 33871 | Abbreviated Legal Description: | KUHN'S RANCH BLK Y LOTS 1 & 3 |
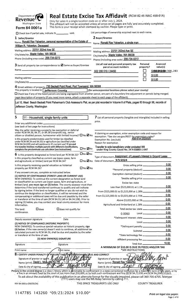
| Parcel # / Geo ID: | 965702901 | Agent Code: | |
| Type: | Real | | |
| Tax Area: | 0110 - C-50F1E1H2 | Land Use Code | 13 |
| Open Space: | N | DFL | N |
| Historic Property: | N | Remodel Property: | N |
| Multi-Family Redevelopment: | N | | |
| Township: | 30N | Section: | 2 |
| Range: | 1W |
Location |
| Address: | 703 VAN BUREN ST PORT TOWNSEND, WA 98368 | Mapsco: | 073/034 |
| Neighborhood: | KUHN'S RANCH AND HIGH SCHOOL | Map ID: | |
| Neighborhood CD: | 6350 |
Owner |
| Name: | HARRY P SMITH TRUSTEE | Owner ID: | 27608 |
| Mailing Address: | SUZANNAH J BARBOUR TRSTEE SMITH BARBOUR FAMILY TRST 727 JACKSON ST PORT TOWNSEND, WA 98368-4503 | % Ownership: | 100.0000000000% |
| | | Exemptions: | |
Pay Tax Due
There is currently No Amount Due on this property.
Taxes and Assessment Details
Property Tax Information as of
10/24/2025
Click on "Statement Details" to expand or collapse a tax statement.
* Please enter a valid date ** Please enter a valid date *
Statement Details |
| | TOTAL: | $0.00 | $0.00 | $0.00 | $0.00 | $0.00 | $0.00 |
|
| | $0.00 | $0.00 | $0.00 | $0.00 | $0.00 | $0.00 |
Values
| (+) Improvement Homesite Value: | + | $0 | |
| (+) Improvement Non-Homesite Value: | + | $376,366 | |
| (+) Land Homesite Value: | + | $0 | |
| (+) Land Non-Homesite Value: | + | $405,000 | |
| (+) Curr Use (HS): | + | $0 | $0 |
| (+) Curr Use (NHS): | + | $0 | $0 |
| | | -------------------------- | |
| (=) Market Value: | = | $781,366 | |
| (–) Productivity Loss: | – | $0 | |
| | | -------------------------- | |
| (=) Subtotal: | = | $781,366 | |
| (+) Senior Appraised Value: | + | $0 | |
| (+) Non-Senior Appraised Value: | + | $781,366 | |
| | | -------------------------- | |
| (=) Total Appraised Value: | = | $781,366 | |
| (–) Senior Exemption Loss: | – | $0 | |
| (–) Exemption Loss: | – | $0 | |
| | | -------------------------- | |
| (=) Taxable Value: | = | $781,366 | |
Taxing Jurisdiction
| Owner: | HARRY P SMITH TRUSTEE | | |
| % Ownership: | 100.0000000000% | | |
| Total Value: | N/A | | |
| Tax Area: | 0110 - C-50F1E1H2 |
| CE | COUNTY CURRENT EXPENSE | N/A | N/A | N/A | N/A | | |
| CNTYDD | DEVELOPMENTAL DISABILITIES | N/A | N/A | N/A | N/A | | |
| CNTYVET | VETERANS RELIEF | N/A | N/A | N/A | N/A | | |
| MENTAL | MENTAL HEALTH | N/A | N/A | N/A | N/A | | |
| PTGEN | CITY OF PT GENERAL | N/A | N/A | N/A | N/A | | |
| PTLLL | CITY OF PT - LIBRARY LID LIFT | N/A | N/A | N/A | N/A | | |
| PTMVBOND | CITY OF PT MV BOND | N/A | N/A | N/A | N/A | | |
| HOSP2CASH | HOSP DIST #2 GENERAL | N/A | N/A | N/A | N/A | | |
| SCH50BOND | SCHOOL DIST #50 BOND 2016 | N/A | N/A | N/A | N/A | | |
| SCH50CP | SCHOOL DIST #50 CAP PROJ | N/A | N/A | N/A | N/A | | |
| SCH50MO | SCHOOL DIST #50 EP & O | N/A | N/A | N/A | N/A | | |
| CONSERVE | CONSERVATION FUTURES | N/A | N/A | N/A | N/A | | |
| EMS1 | FIRE DIST #1 EMS | N/A | N/A | N/A | N/A | | |
| FD1 | FIRE DIST #1 GENERAL | N/A | N/A | N/A | N/A | | |
| PORTPT | PORT OF PT GENERAL | N/A | N/A | N/A | N/A | | |
| PORTPTIDD | PORT OF PT IDD 2019 | N/A | N/A | N/A | N/A | | |
| PUD1 | PUD #1 GENERAL | N/A | N/A | N/A | N/A | | |
| STATE | STATE SCHOOL PART 1 | N/A | N/A | N/A | N/A | | |
| STATE2 | STATE SCHOOL PART 2 | N/A | N/A | N/A | N/A | | |
| | Total Tax Rate: | N/A | | | | | |
| | | | | Taxes w/Current Exemptions: | N/A | | |
| | | | | Taxes w/o Exemptions: | N/A | | |
Improvement / Building
| Improvement #1: | Residential Bldg | State Code: | 13 | 2012.0 sqft | Value: | $376,366 |
| Bathrooms (#): | 3 (FULL) | Bedrooms (#): | 3 | | Exterior Wall: | SI/ST | Floor Construction: | FRAME | | Foundation: | CONPR | Heating/Cooling: | ELBB | | Inside Verify: | YES-FIX | Roof Cover: | COMP |
|
| | Type | Description | Class CD | Sub Class CD | Year Built | Area |
| | MA | Main Area | 4 | 2S | 1900 | 1176.0 |
| | MA2 | Second Floor Main Area | 4 | 2S | 1900 | 836.0 |
| | HWPOR | House Wood Porch | 4 | * | 1900 | 356.0 |
| | HBAL | House Balcony | 4 | * | 1900 | 98.0 |
| | HDECK | House Deck | 4 | * | 1900 | 182.0 |
Sketch
Property Image
Land
| 1 | 6350-1165L | Uptown Std Lot (Avg) | 0.0000 | 0.00 | 0.00 | 0.00 | 1.00 | $110,000 | $0 |
| 2 | 6350-1155L | Uptown Std Lot (View Area) | 0.0000 | 0.00 | 0.00 | 0.00 | 1.00 | $295,000 | $0 |
Roll Value History
| 2025 | N/A | N/A | N/A | N/A | N/A |
| 2024 | $345,848 | $407,000 | $0 | $752,848 | $752,848 |
| 2023 | $332,014 | $383,250 | $0 | $715,264 | $715,264 |
| 2022 | $304,346 | $360,000 | $0 | $664,346 | $664,346 |
| 2021 | $254,470 | $327,000 | $0 | $581,470 | $581,470 |
Deed and Sales History
| 1 | 11/25/2013 | SWD | Statutory Warranty Deed | MICHAEL C RAYMOND | HARRY P SMITH TRUSTEE | | | $378,000.00 | 120397 | |
| 2 | 09/01/1998 | QCD | Quit Claim Deed | RAYMOND, ROLAND C/VIVIAN | RAYMOND, MICHAEL C/MICHELLE E | 0 | 0 | $118,500.00 | 85214 | 0 |
| 3 | 01/24/1994 | SWD | Statutory Warranty Deed | WHITE, WILLIAM D/WEST, KE | RAYMOND, ROLAND C/VIVIAN G | 0 | 0 | $225,000.00 | 73234 | 0 |
Payout Agreement
| No payout information available.. |