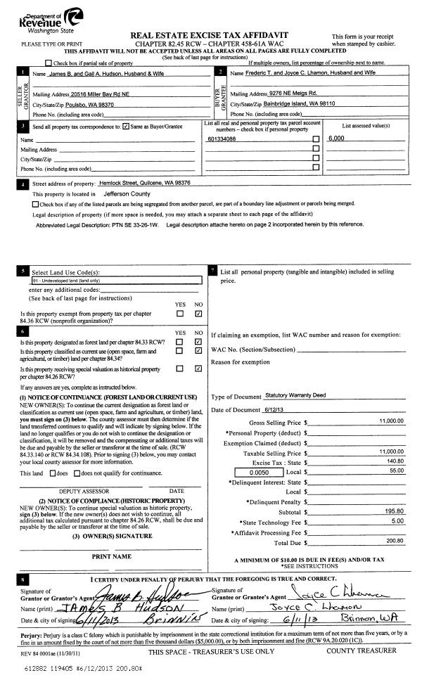
Property
Account |
| Property ID: | 33892 | Abbreviated Legal Description: | KALA HEIGHTS PUD PHASE B LOT 9 |
| Parcel # / Geo ID: | 965800009 | Agent Code: | |
| Type: | Real | | |
| Tax Area: | 0111 - 1-50F1E1H2L1 | Land Use Code | 11 |
| Open Space: | N | DFL | N |
| Historic Property: | N | Remodel Property: | N |
| Multi-Family Redevelopment: | N | | |
| Township: | 30N | Section: | 27 |
| Range: | 1W |
Location |
| Address: | 260 KALA HEIGHTS DR PORT TOWNSEND, WA 98368 | Mapsco: | 041/024 |
| Neighborhood: | KALA PT - DIV 3(PART) & DIV 5 - 10, THE HEIGHTS | Map ID: | |
| Neighborhood CD: | 5391 |
Owner |
| Name: | JOHN DOWNING JR REVOCABLE TRUST | Owner ID: | 91090 |
| Mailing Address: | JOHN P DOWNING JR TRUSTEE 260 KALA HEIGHTS DR PORT TOWNSEND, WA 98368-9506 | % Ownership: | 100.0000000000% |
| | | Exemptions: | |
Pay Tax Due
There is currently No Amount Due on this property.
Taxes and Assessment Details
Property Tax Information as of
10/24/2025
Click on "Statement Details" to expand or collapse a tax statement.
* Please enter a valid date ** Please enter a valid date *
Statement Details |
| | TOTAL: | $0.00 | $0.00 | $0.00 | $0.00 | $0.00 | $0.00 |
|
| | $0.00 | $0.00 | $0.00 | $0.00 | $0.00 | $0.00 |
Values
| (+) Improvement Homesite Value: | + | $0 | |
| (+) Improvement Non-Homesite Value: | + | $726,545 | |
| (+) Land Homesite Value: | + | $0 | |
| (+) Land Non-Homesite Value: | + | $238,700 | |
| (+) Curr Use (HS): | + | $0 | $0 |
| (+) Curr Use (NHS): | + | $0 | $0 |
| | | -------------------------- | |
| (=) Market Value: | = | $965,245 | |
| (–) Productivity Loss: | – | $0 | |
| | | -------------------------- | |
| (=) Subtotal: | = | $965,245 | |
| (+) Senior Appraised Value: | + | $0 | |
| (+) Non-Senior Appraised Value: | + | $965,245 | |
| | | -------------------------- | |
| (=) Total Appraised Value: | = | $965,245 | |
| (–) Senior Exemption Loss: | – | $0 | |
| (–) Exemption Loss: | – | $0 | |
| | | -------------------------- | |
| (=) Taxable Value: | = | $965,245 | |
Taxing Jurisdiction
| Owner: | JOHN DOWNING JR REVOCABLE TRUST | | |
| % Ownership: | 100.0000000000% | | |
| Total Value: | N/A | | |
| Tax Area: | 0111 - 1-50F1E1H2L1 |
| CE | COUNTY CURRENT EXPENSE | N/A | N/A | N/A | N/A | | |
| CNTYDD | DEVELOPMENTAL DISABILITIES | N/A | N/A | N/A | N/A | | |
| CNTYVET | VETERANS RELIEF | N/A | N/A | N/A | N/A | | |
| MENTAL | MENTAL HEALTH | N/A | N/A | N/A | N/A | | |
| ROADS | COUNTY ROADS | N/A | N/A | N/A | N/A | | |
| ROADSCU | COUNTY ROADS TO CUR EXP | N/A | N/A | N/A | N/A | | |
| HOSP2CASH | HOSP DIST #2 GENERAL | N/A | N/A | N/A | N/A | | |
| SCH50BOND | SCHOOL DIST #50 BOND 2016 | N/A | N/A | N/A | N/A | | |
| SCH50CP | SCHOOL DIST #50 CAP PROJ | N/A | N/A | N/A | N/A | | |
| SCH50MO | SCHOOL DIST #50 EP & O | N/A | N/A | N/A | N/A | | |
| CONSERVE | CONSERVATION FUTURES | N/A | N/A | N/A | N/A | | |
| EMS1 | FIRE DIST #1 EMS | N/A | N/A | N/A | N/A | | |
| FD1 | FIRE DIST #1 GENERAL | N/A | N/A | N/A | N/A | | |
| LIB1 | LIBRARY DIST #1 GENERAL | N/A | N/A | N/A | N/A | | |
| PORTPT | PORT OF PT GENERAL | N/A | N/A | N/A | N/A | | |
| PORTPTIDD | PORT OF PT IDD 2019 | N/A | N/A | N/A | N/A | | |
| PUD1 | PUD #1 GENERAL | N/A | N/A | N/A | N/A | | |
| STATE | STATE SCHOOL PART 1 | N/A | N/A | N/A | N/A | | |
| STATE2 | STATE SCHOOL PART 2 | N/A | N/A | N/A | N/A | | |
| | Total Tax Rate: | N/A | | | | | |
| | | | | Taxes w/Current Exemptions: | N/A | | |
| | | | | Taxes w/o Exemptions: | N/A | | |
Improvement / Building
| Improvement #1: | Residential Bldg | State Code: | 11 | 1800.0 sqft | Value: | $726,545 |
| Bathrooms (#): | 2 (FULL) | Bathrooms (#): | 1 (HALF) | | Bedrooms (#): | 3 | Exterior Wall: | SI/ST | | Fireplace: | SIN 1-GOOD | Fireplace: | WD ST-GOOD | | Floor Construction: | FRAME | Foundation: | CONPR | | Heating/Cooling: | F/A | Roof Cover: | SHNGL |
|
| | Type | Description | Class CD | Sub Class CD | Year Built | Area |
| | MA | Main Area | 5 | 1S | 1992 | 1800.0 |
| | PATIO | House Patio | 5 | 1S | 1992 | 72.0 |
| | HBAL | House Balcony | 5 | 1S | 1992 | 354.0 |
| | HCPOR | House Concrete Porch | 5 | 1S | 1992 | 32.0 |
| | HDECK | House Deck | 5 | 1S | 1992 | 128.0 |
| | GATT | House Attached Garage | 5 | 1S | 1992 | 696.0 |
| | BSMTF | House basement finished | 5 | 1S | 1992 | 1159.0 |
| | HWPOR | House Wood Porch | 5 | 1S | 1992 | 45.0 |
| | CONCD | Concrete Drive | 5 | 1S | 1992 | 1925.0 |
Sketch
Property Image
Land
| 1 | 5391-1135L | High Bank Waterfront with Unobstructed Views | 0.0000 | 0.00 | 0.00 | 0.00 | 1.00 | $238,700 | $0 |
Roll Value History
| 2025 | N/A | N/A | N/A | N/A | N/A |
| 2024 | $726,545 | $238,700 | $0 | $965,245 | $965,245 |
| 2023 | $709,709 | $222,600 | $0 | $932,309 | $932,309 |
| 2022 | $677,450 | $207,000 | $0 | $884,450 | $884,450 |
| 2021 | $492,691 | $193,200 | $0 | $685,891 | $685,891 |
Deed and Sales History
| 1 | 12/05/2013 | QCD | Quit Claim Deed | JOHN P DOWNING JR | JOHN DOWNING JR REVOCABLE TRUST | | | | 120416 | |
Payout Agreement
| No payout information available.. |