Property
Account |
| Property ID: | 33905 | Abbreviated Legal Description: | KALA TERRACE LOT 7 |
| Parcel # / Geo ID: | 965900007 | Agent Code: | |
| Type: | Real | | |
| Tax Area: | 0111 - 1-50F1E1H2L1 | Land Use Code | 11 |
| Open Space: | N | DFL | N |
| Historic Property: | N | Remodel Property: | N |
| Multi-Family Redevelopment: | N | | |
| Township: | 30N | Section: | 26 |
| Range: | 1W |
Location |
| Address: | 78 TERRACE DR PORT TOWNSEND, WA 98368 | Mapsco: | 041/041 |
| Neighborhood: | KALA TERRACE, THE LAGOON AT KALA POINT | Map ID: | |
| Neighborhood CD: | 5394 |
Owner |
| Name: | JOHN S OLIVEIRA | Owner ID: | 23913 |
| Mailing Address: | STEPHANIE E OLIVEIRA 78 TERRACE DR PORT TOWNSEND, WA 98368-9567 | % Ownership: | 100.0000000000% |
| | | Exemptions: | |
Pay Tax Due
There is currently No Amount Due on this property.
Taxes and Assessment Details
Property Tax Information as of
10/24/2025
Click on "Statement Details" to expand or collapse a tax statement.
* Please enter a valid date ** Please enter a valid date *
Statement Details |
| | TOTAL: | $0.00 | $0.00 | $0.00 | $0.00 | $0.00 | $0.00 |
|
| | $0.00 | $0.00 | $0.00 | $0.00 | $0.00 | $0.00 |
Values
| (+) Improvement Homesite Value: | + | $0 | |
| (+) Improvement Non-Homesite Value: | + | $663,303 | |
| (+) Land Homesite Value: | + | $0 | |
| (+) Land Non-Homesite Value: | + | $121,000 | |
| (+) Curr Use (HS): | + | $0 | $0 |
| (+) Curr Use (NHS): | + | $0 | $0 |
| | | -------------------------- | |
| (=) Market Value: | = | $784,303 | |
| (–) Productivity Loss: | – | $0 | |
| | | -------------------------- | |
| (=) Subtotal: | = | $784,303 | |
| (+) Senior Appraised Value: | + | $0 | |
| (+) Non-Senior Appraised Value: | + | $784,303 | |
| | | -------------------------- | |
| (=) Total Appraised Value: | = | $784,303 | |
| (–) Senior Exemption Loss: | – | $0 | |
| (–) Exemption Loss: | – | $0 | |
| | | -------------------------- | |
| (=) Taxable Value: | = | $784,303 | |
Taxing Jurisdiction
| Owner: | JOHN S OLIVEIRA | | |
| % Ownership: | 100.0000000000% | | |
| Total Value: | N/A | | |
| Tax Area: | 0111 - 1-50F1E1H2L1 |
| CE | COUNTY CURRENT EXPENSE | N/A | N/A | N/A | N/A | | |
| CNTYDD | DEVELOPMENTAL DISABILITIES | N/A | N/A | N/A | N/A | | |
| CNTYVET | VETERANS RELIEF | N/A | N/A | N/A | N/A | | |
| MENTAL | MENTAL HEALTH | N/A | N/A | N/A | N/A | | |
| ROADS | COUNTY ROADS | N/A | N/A | N/A | N/A | | |
| ROADSCU | COUNTY ROADS TO CUR EXP | N/A | N/A | N/A | N/A | | |
| HOSP2CASH | HOSP DIST #2 GENERAL | N/A | N/A | N/A | N/A | | |
| SCH50BOND | SCHOOL DIST #50 BOND 2016 | N/A | N/A | N/A | N/A | | |
| SCH50CP | SCHOOL DIST #50 CAP PROJ | N/A | N/A | N/A | N/A | | |
| SCH50MO | SCHOOL DIST #50 EP & O | N/A | N/A | N/A | N/A | | |
| CONSERVE | CONSERVATION FUTURES | N/A | N/A | N/A | N/A | | |
| EMS1 | FIRE DIST #1 EMS | N/A | N/A | N/A | N/A | | |
| FD1 | FIRE DIST #1 GENERAL | N/A | N/A | N/A | N/A | | |
| LIB1 | LIBRARY DIST #1 GENERAL | N/A | N/A | N/A | N/A | | |
| PORTPT | PORT OF PT GENERAL | N/A | N/A | N/A | N/A | | |
| PORTPTIDD | PORT OF PT IDD 2019 | N/A | N/A | N/A | N/A | | |
| PUD1 | PUD #1 GENERAL | N/A | N/A | N/A | N/A | | |
| STATE | STATE SCHOOL PART 1 | N/A | N/A | N/A | N/A | | |
| STATE2 | STATE SCHOOL PART 2 | N/A | N/A | N/A | N/A | | |
| | Total Tax Rate: | N/A | | | | | |
| | | | | Taxes w/Current Exemptions: | N/A | | |
| | | | | Taxes w/o Exemptions: | N/A | | |
Improvement / Building
| Improvement #1: | Residential Bldg | State Code: | 11 | 2678.0 sqft | Value: | $663,303 |
| Bathrooms (#): | 2 (FULL) | Bedrooms (#): | 2 | | Exterior Wall: | SI/ST | Fireplace: | SIN 1-GOOD | | Floor Construction: | FRAME | Foundation: | CONPR | | Heating/Cooling: | HPUMP | Inside Verify: | YES-FIX | | Roof Cover: | TILE |   |   |
|
| | Type | Description | Class CD | Sub Class CD | Year Built | Area |
| | MA | Main Area | 5- | 2S | 2006 | 1958.0 |
| | MA2 | Second Floor Main Area | 5- | 2S | 2006 | 720.0 |
| | PATIO | House Patio | 5 | 2S | 2006 | 350.0 |
| | HCPOR | House Concrete Porch | 5 | 2S | 2006 | 87.0 |
| | GATT | House Attached Garage | 5 | 2S | 2006 | 732.0 |
| | CONCD | Concrete Drive | 5 | 2S | 2006 | 400.0 |
Sketch
| No sketches available for this property. |
Property Image
Land
| 1 | 5394-1165S | Area of No/Fair View Kala Terrace Lots | 0.0000 | 0.00 | 0.00 | 0.00 | 1.00 | $121,000 | $0 |
Roll Value History
| 2025 | N/A | N/A | N/A | N/A | N/A |
| 2024 | $633,153 | $115,500 | $0 | $748,653 | $748,653 |
| 2023 | $586,523 | $105,000 | $0 | $691,523 | $691,523 |
| 2022 | $586,523 | $100,000 | $0 | $686,523 | $686,523 |
| 2021 | $444,335 | $91,200 | $0 | $535,535 | $535,535 |
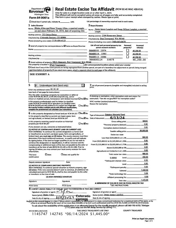
Deed and Sales History
| 1 | 03/14/2007 | SWD | Statutory Warranty Deed | KELLY SHIELDS INC | OLVEIRA, JOHN & STEPHANIE | 0 | 0 | $408,000.00 | 108801 | 0 |
| 2 | 01/18/2005 | SWD | Statutory Warranty Deed | KALA POINT DEVELOPMENT CO | KELLEY SHIELDS INC | 0 | 0 | $30,000.00 | 102559 | 0 |
Payout Agreement
| No payout information available.. |