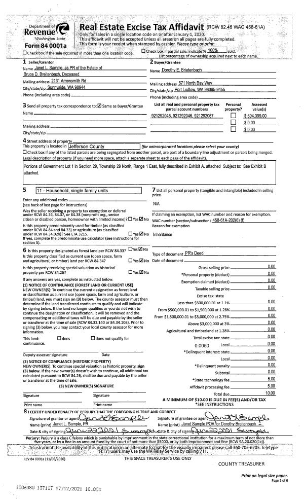
Property
Account |
| Property ID: | 33936 | Abbreviated Legal Description: | KUHNSVILLE BLK 4 LOTS 1 THRU 8 LESS R/W & W/ALL VAC HADLOCK BAY RD ADJ, N1/2 VAC RUBY ST & W1/2 VAC GEORGE ST ADJ QTA#22-2-00130-16 |
| Parcel # / Geo ID: | 966000401 | Agent Code: | |
| Type: | Real | | |
| Tax Area: | 0211 - 1-49F1E1H2L1 | Land Use Code | 91 |
| Open Space: | N | DFL | N |
| Historic Property: | N | Remodel Property: | N |
| Multi-Family Redevelopment: | N | | |
| Township: | 29N | Section: | 12 |
| Range: | 1W |
Location |
| Address: | | Mapsco: | 058/038 |
| Neighborhood: | BAY VIEW TO HADLOCK & KUHNSVILLE | Map ID: | |
| Neighborhood CD: | 4252 |
Owner |
| Name: | KIRSTEN WOODSMITH & HENRY C CURLEE IV | Owner ID: | 107311 |
| Mailing Address: | 848 OAK BAY ROAD PORT HADLOCK, WA 98339-8006 | % Ownership: | 100.0000000000% |
| | | Exemptions: | |
Pay Tax Due
There is currently No Amount Due on this property.
Taxes and Assessment Details
Property Tax Information as of
10/24/2025
Click on "Statement Details" to expand or collapse a tax statement.
* Please enter a valid date ** Please enter a valid date *
Statement Details |
| | TOTAL: | $0.00 | $0.00 | $0.00 | $0.00 | $0.00 | $0.00 |
|
| | $0.00 | $0.00 | $0.00 | $0.00 | $0.00 | $0.00 |
Values
| (+) Improvement Homesite Value: | + | $0 | |
| (+) Improvement Non-Homesite Value: | + | $0 | |
| (+) Land Homesite Value: | + | $0 | |
| (+) Land Non-Homesite Value: | + | $72,600 | |
| (+) Curr Use (HS): | + | $0 | $0 |
| (+) Curr Use (NHS): | + | $0 | $0 |
| | | -------------------------- | |
| (=) Market Value: | = | $72,600 | |
| (–) Productivity Loss: | – | $0 | |
| | | -------------------------- | |
| (=) Subtotal: | = | $72,600 | |
| (+) Senior Appraised Value: | + | $0 | |
| (+) Non-Senior Appraised Value: | + | $72,600 | |
| | | -------------------------- | |
| (=) Total Appraised Value: | = | $72,600 | |
| (–) Senior Exemption Loss: | – | $0 | |
| (–) Exemption Loss: | – | $0 | |
| | | -------------------------- | |
| (=) Taxable Value: | = | $72,600 | |
Taxing Jurisdiction
| Owner: | KIRSTEN WOODSMITH & HENRY C CURLEE IV | | |
| % Ownership: | 100.0000000000% | | |
| Total Value: | N/A | | |
| Tax Area: | 0211 - 1-49F1E1H2L1 |
| CE | COUNTY CURRENT EXPENSE | N/A | N/A | N/A | N/A | | |
| CNTYDD | DEVELOPMENTAL DISABILITIES | N/A | N/A | N/A | N/A | | |
| CNTYVET | VETERANS RELIEF | N/A | N/A | N/A | N/A | | |
| MENTAL | MENTAL HEALTH | N/A | N/A | N/A | N/A | | |
| ROADS | COUNTY ROADS | N/A | N/A | N/A | N/A | | |
| ROADSCU | COUNTY ROADS TO CUR EXP | N/A | N/A | N/A | N/A | | |
| HOSP2CASH | HOSP DIST #2 GENERAL | N/A | N/A | N/A | N/A | | |
| SCH49CP | SCHOOL DIST #49 CAP PROJ | N/A | N/A | N/A | N/A | | |
| SCH49MO | SCHOOL DIST #49 EP & O | N/A | N/A | N/A | N/A | | |
| CONSERVE | CONSERVATION FUTURES | N/A | N/A | N/A | N/A | | |
| EMS1 | FIRE DIST #1 EMS | N/A | N/A | N/A | N/A | | |
| FD1 | FIRE DIST #1 GENERAL | N/A | N/A | N/A | N/A | | |
| LIB1 | LIBRARY DIST #1 GENERAL | N/A | N/A | N/A | N/A | | |
| PORTPT | PORT OF PT GENERAL | N/A | N/A | N/A | N/A | | |
| PORTPTIDD | PORT OF PT IDD 2019 | N/A | N/A | N/A | N/A | | |
| PUD1 | PUD #1 GENERAL | N/A | N/A | N/A | N/A | | |
| STATE | STATE SCHOOL PART 1 | N/A | N/A | N/A | N/A | | |
| STATE2 | STATE SCHOOL PART 2 | N/A | N/A | N/A | N/A | | |
| | Total Tax Rate: | N/A | | | | | |
| | | | | Taxes w/Current Exemptions: | N/A | | |
| | | | | Taxes w/o Exemptions: | N/A | | |
Improvement / Building
Sketch
| No sketches available for this property. |
Property Image
Land
| 1 | 4252-1175L | Kuhnsville Lots Non-View w/Good Access | 0.0000 | 0.00 | 0.00 | 0.00 | 2.00 | $18,150 | $0 |
| 2 | 4252-1175L | Kuhnsville Lots Non-View w/Good Access | 0.0000 | 0.00 | 0.00 | 0.00 | 6.00 | $54,450 | $0 |
Roll Value History
| 2025 | N/A | N/A | N/A | N/A | N/A |
| 2024 | $0 | $69,300 | $0 | $69,300 | $69,300 |
| 2023 | $0 | $66,000 | $0 | $66,000 | $66,000 |
| 2022 | $0 | $48,000 | $0 | $48,000 | $48,000 |
| 2021 | $0 | $36,400 | $0 | $36,400 | $36,400 |
Deed and Sales History
| 1 | 06/30/2022 | SWD | Statutory Warranty Deed | EUGENE K PICKENS | KIRSTEN WOODSMITH & HENRY C CURLEE IV | | | $130,000.00 | 139438 | |
|   | |
Payout Agreement
| No payout information available.. |