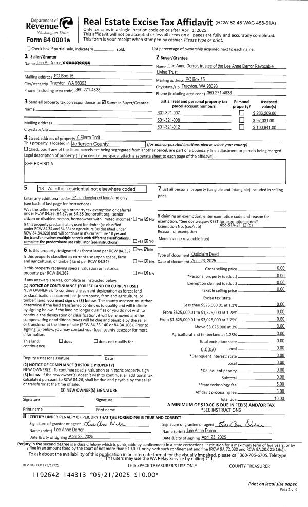
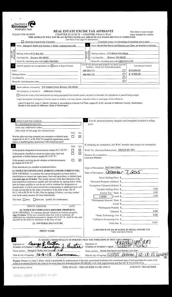
Property
Account |
| Property ID: | 33972 | Abbreviated Legal Description: | LAUREL SHADE BLK 1 LOTS 5 & 6 |
| Parcel # / Geo ID: | 966600101 | Agent Code: | |
| Type: | Real | | |
| Tax Area: | 0110 - C-50F1E1H2 | Land Use Code | 11 |
| Open Space: | N | DFL | N |
| Historic Property: | N | Remodel Property: | N |
| Multi-Family Redevelopment: | N | | |
| Township: | 30N | Section: | 3 |
| Range: | 1W |
Location |
| Address: | 2404 ROSECRANS ST PORT TOWNSEND, WA 98368 | Mapsco: | 074/064 |
| Neighborhood: | LAUREL SHADE, HASTINGS HEIGHTS & ACREAGE PROXIMITY | Map ID: | |
| Neighborhood CD: | 6115 |
Owner |
| Name: | ELIZABETH & LLOYD TAYLOR | Owner ID: | 96198 |
| Mailing Address: | 2404 ROSECRANS ST PORT TOWNSEND, WA 98368-6810 | % Ownership: | 100.0000000000% |
| | | Exemptions: | |
Pay Tax Due
There is currently No Amount Due on this property.
Taxes and Assessment Details
Property Tax Information as of
10/24/2025
Click on "Statement Details" to expand or collapse a tax statement.
* Please enter a valid date ** Please enter a valid date *
Statement Details |
| | TOTAL: | $0.00 | $0.00 | $0.00 | $0.00 | $0.00 | $0.00 |
|
| | $0.00 | $0.00 | $0.00 | $0.00 | $0.00 | $0.00 |
Values
| (+) Improvement Homesite Value: | + | $387,522 | |
| (+) Improvement Non-Homesite Value: | + | $0 | |
| (+) Land Homesite Value: | + | $200,000 | |
| (+) Land Non-Homesite Value: | + | $0 | |
| (+) Curr Use (HS): | + | $0 | $0 |
| (+) Curr Use (NHS): | + | $0 | $0 |
| | | -------------------------- | |
| (=) Market Value: | = | $587,522 | |
| (–) Productivity Loss: | – | $0 | |
| | | -------------------------- | |
| (=) Subtotal: | = | $587,522 | |
| (+) Senior Appraised Value: | + | $0 | |
| (+) Non-Senior Appraised Value: | + | $587,522 | |
| | | -------------------------- | |
| (=) Total Appraised Value: | = | $587,522 | |
| (–) Senior Exemption Loss: | – | $0 | |
| (–) Exemption Loss: | – | $0 | |
| | | -------------------------- | |
| (=) Taxable Value: | = | $587,522 | |
Taxing Jurisdiction
| Owner: | ELIZABETH & LLOYD TAYLOR | | |
| % Ownership: | 100.0000000000% | | |
| Total Value: | N/A | | |
| Tax Area: | 0110 - C-50F1E1H2 |
| CE | COUNTY CURRENT EXPENSE | N/A | N/A | N/A | N/A | | |
| CNTYDD | DEVELOPMENTAL DISABILITIES | N/A | N/A | N/A | N/A | | |
| CNTYVET | VETERANS RELIEF | N/A | N/A | N/A | N/A | | |
| MENTAL | MENTAL HEALTH | N/A | N/A | N/A | N/A | | |
| PTGEN | CITY OF PT GENERAL | N/A | N/A | N/A | N/A | | |
| PTLLL | CITY OF PT - LIBRARY LID LIFT | N/A | N/A | N/A | N/A | | |
| PTMVBOND | CITY OF PT MV BOND | N/A | N/A | N/A | N/A | | |
| HOSP2CASH | HOSP DIST #2 GENERAL | N/A | N/A | N/A | N/A | | |
| SCH50BOND | SCHOOL DIST #50 BOND 2016 | N/A | N/A | N/A | N/A | | |
| SCH50CP | SCHOOL DIST #50 CAP PROJ | N/A | N/A | N/A | N/A | | |
| SCH50MO | SCHOOL DIST #50 EP & O | N/A | N/A | N/A | N/A | | |
| CONSERVE | CONSERVATION FUTURES | N/A | N/A | N/A | N/A | | |
| EMS1 | FIRE DIST #1 EMS | N/A | N/A | N/A | N/A | | |
| FD1 | FIRE DIST #1 GENERAL | N/A | N/A | N/A | N/A | | |
| PORTPT | PORT OF PT GENERAL | N/A | N/A | N/A | N/A | | |
| PORTPTIDD | PORT OF PT IDD 2019 | N/A | N/A | N/A | N/A | | |
| PUD1 | PUD #1 GENERAL | N/A | N/A | N/A | N/A | | |
| STATE | STATE SCHOOL PART 1 | N/A | N/A | N/A | N/A | | |
| STATE2 | STATE SCHOOL PART 2 | N/A | N/A | N/A | N/A | | |
| | Total Tax Rate: | N/A | | | | | |
| | | | | Taxes w/Current Exemptions: | N/A | | |
| | | | | Taxes w/o Exemptions: | N/A | | |
Improvement / Building
| Improvement #1: | Residential Bldg | State Code: | 11 | 1390.0 sqft | Value: | $387,522 |
| Bathrooms (#): | 2 (FULL) | Bedrooms (#): | 3 | | Exterior Wall: | SI/ST | Fireplace: | WD ST-GOOD | | Floor Construction: | FRAME | Foundation: | CONPR | | Heating/Cooling: | ELBB | Roof Cover: | COMP |
|
| | Type | Description | Class CD | Sub Class CD | Year Built | Area |
| | MA | Main Area | 4 | 1S | 1990 | 1390.0 |
| | HDECK | House Deck | 4 | * | 1990 | 270.0 |
| | GATT | House Attached Garage | 4 | 1S | 1990 | 440.0 |
| | CONCD | Concrete Drive | 3 | * | 1990 | 480.0 |
Sketch
Property Image
Land
| 1 | 6115-1175L | Lots in Laurel Shade/Rosecrans Terrace | 0.0000 | 0.00 | 0.00 | 0.00 | 2.00 | $200,000 | $0 |
Roll Value History
| 2025 | N/A | N/A | N/A | N/A | N/A |
| 2024 | $372,388 | $199,500 | $0 | $571,888 | $571,888 |
| 2023 | $372,388 | $194,250 | $0 | $566,638 | $566,638 |
| 2022 | $341,355 | $160,000 | $0 | $501,355 | $501,355 |
| 2021 | $291,757 | $102,750 | $0 | $394,507 | $394,507 |
Deed and Sales History
| 1 | 10/04/2016 | SWD | Statutory Warranty Deed | CHERRI WALLACE | ELIZABETH & LLOYD TAYLOR | | | $305,000.00 | 126368 | |
|   | |
| 2 | 10/03/2016 | LOP | Lack of Probate | | | | | | 126367 | |
Payout Agreement
| No payout information available.. |