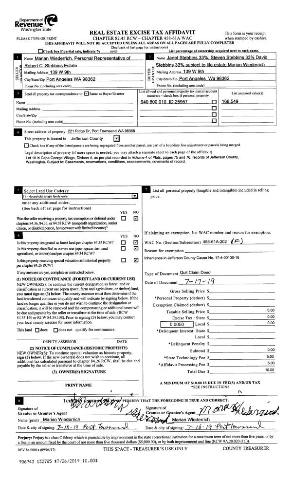
Property
Account |
| Property ID: | 34132 | Abbreviated Legal Description: | LAZY C RANCH DIV 1 LOTS 130(ALL) & 131(W1/2) |
| Parcel # / Geo ID: | 966900123 | Agent Code: | |
| Type: | Real | | |
| Tax Area: | 0440 - 1-46F4E4H2C1L1Z1P2 | Land Use Code | 11 |
| Open Space: | N | DFL | N |
| Historic Property: | N | Remodel Property: | N |
| Multi-Family Redevelopment: | N | | |
| Township: | 26N | Section: | 34 |
| Range: | 2W |
Location |
| Address: | 50 MUSTANG LN BRINNON, WA 98320 | Mapsco: | 008/011 |
| Neighborhood: | LAZY C RANCH DIV 1 / LAZY C RANCH DIV 3 | Map ID: | |
| Neighborhood CD: | 1375 |
Owner |
| Name: | THOMAS E FIELDS | Owner ID: | 15619 |
| Mailing Address: | NICHOLAS E FIELDS PO BOX 6 BRINNON, WA 98320-0006 | % Ownership: | 100.0000000000% |
| | | Exemptions: | |
Pay Tax Due
There is currently No Amount Due on this property.
Taxes and Assessment Details
Property Tax Information as of
10/24/2025
Click on "Statement Details" to expand or collapse a tax statement.
* Please enter a valid date ** Please enter a valid date *
Statement Details |
| | TOTAL: | $0.00 | $0.00 | $0.00 | $0.00 | $0.00 | $0.00 |
|
| | $0.00 | $0.00 | $0.00 | $0.00 | $0.00 | $0.00 |
Values
| (+) Improvement Homesite Value: | + | $0 | |
| (+) Improvement Non-Homesite Value: | + | $77,463 | |
| (+) Land Homesite Value: | + | $0 | |
| (+) Land Non-Homesite Value: | + | $53,625 | |
| (+) Curr Use (HS): | + | $0 | $0 |
| (+) Curr Use (NHS): | + | $0 | $0 |
| | | -------------------------- | |
| (=) Market Value: | = | $131,088 | |
| (–) Productivity Loss: | – | $0 | |
| | | -------------------------- | |
| (=) Subtotal: | = | $131,088 | |
| (+) Senior Appraised Value: | + | $0 | |
| (+) Non-Senior Appraised Value: | + | $131,088 | |
| | | -------------------------- | |
| (=) Total Appraised Value: | = | $131,088 | |
| (–) Senior Exemption Loss: | – | $0 | |
| (–) Exemption Loss: | – | $0 | |
| | | -------------------------- | |
| (=) Taxable Value: | = | $131,088 | |
Taxing Jurisdiction
| Owner: | THOMAS E FIELDS | | |
| % Ownership: | 100.0000000000% | | |
| Total Value: | N/A | | |
| Tax Area: | 0440 - 1-46F4E4H2C1L1Z1P2 |
| CE | COUNTY CURRENT EXPENSE | N/A | N/A | N/A | N/A | | |
| CNTYDD | DEVELOPMENTAL DISABILITIES | N/A | N/A | N/A | N/A | | |
| CNTYVET | VETERANS RELIEF | N/A | N/A | N/A | N/A | | |
| MENTAL | MENTAL HEALTH | N/A | N/A | N/A | N/A | | |
| ROADS | COUNTY ROADS | N/A | N/A | N/A | N/A | | |
| ROADSCU | COUNTY ROADS TO CUR EXP | N/A | N/A | N/A | N/A | | |
| HOSP2CASH | HOSP DIST #2 GENERAL | N/A | N/A | N/A | N/A | | |
| SCH46MO | SCHOOL DIST #46 EP & O | N/A | N/A | N/A | N/A | | |
| CEM1 | CEMETERY DIST #1 GENERAL | N/A | N/A | N/A | N/A | | |
| CONSERVE | CONSERVATION FUTURES | N/A | N/A | N/A | N/A | | |
| EMS4 | FIRE DIST #4 EMS | N/A | N/A | N/A | N/A | | |
| FD4 | FIRE DIST #4 GENERAL | N/A | N/A | N/A | N/A | | |
| FD4BOND | FIRE DIST #4 BOND 2019 | N/A | N/A | N/A | N/A | | |
| LIB1 | LIBRARY DIST #1 GENERAL | N/A | N/A | N/A | N/A | | |
| PORTPT | PORT OF PT GENERAL | N/A | N/A | N/A | N/A | | |
| PORTPTIDD | PORT OF PT IDD 2019 | N/A | N/A | N/A | N/A | | |
| PUD1 | PUD #1 GENERAL | N/A | N/A | N/A | N/A | | |
| STATE | STATE SCHOOL PART 1 | N/A | N/A | N/A | N/A | | |
| STATE2 | STATE SCHOOL PART 2 | N/A | N/A | N/A | N/A | | |
| | Total Tax Rate: | N/A | | | | | |
| | | | | Taxes w/Current Exemptions: | N/A | | |
| | | | | Taxes w/o Exemptions: | N/A | | |
Improvement / Building
| Improvement #1: | Manufactured Home | State Code: | 11 | 1266.0 sqft | Value: | $77,463 |
| Bathrooms (#): | 2 (FULL) | Bedrooms (#): | 2 | | Exterior Wall: | PL/T1 | Fireplace: | WD ST-AVG | | Fireplace: | WD ST-FAIR | Floor Construction: | FRAME | | Foundation: | PO&BL | Heating/Cooling: | F/A | | Roof Cover: | COMP |   |   |
|
| | Type | Description | Class CD | Sub Class CD | Year Built | Area |
| | MA | Main Area | 3- | MDBL | 1985 | 1266.0 |
| | MWPOR | MH Wood Porch | 3 | * | 1985 | 246.0 |
| | MDECK | MH Deck | 3 | * | 1985 | 18.0 |
| | MDET | MH Detached Garage | 2 | MDBL | 1985 | 320.0 |
| | CARPTN | Carport W/O Floor | 1 | * | 1985 | 230.0 |
| | SHED | Shed (Table Not Dep) | 2 | * | 1985 | 160.0 |
| | MSKIRT_MTL | MH Skirting - Metal/Vinyl | 3 | * | 1985 | 150.0 |
Sketch
Property Image
Land
| 1 | 1375-1175L | Lots in Lazy C Div 1 Non-Waterfront | 0.0000 | 0.00 | 0.00 | 0.00 | 1.00 | $53,625 | $0 |
Roll Value History
| 2025 | N/A | N/A | N/A | N/A | N/A |
| 2024 | $70,421 | $48,750 | $0 | $119,171 | $119,171 |
| 2023 | $70,421 | $43,750 | $0 | $114,171 | $114,171 |
| 2022 | $70,421 | $38,750 | $0 | $109,171 | $109,171 |
| 2021 | $58,199 | $33,000 | $0 | $91,199 | $91,199 |
Deed and Sales History
| 1 | 06/03/2010 | QCD | Quit Claim Deed | FIELDS, PAMELA | FIELDS, THOMAS | | | $0.00 | 114488 | 0 |
| 2 | 06/03/2010 | SWD | Statutory Warranty Deed | SEA STAR CAPITAL LLC | FIELDS, NICHOLAS E/THOMAS E | | | $82,000.00 | 114487 | 0 |
| 3 | 11/16/2009 | WD | Warranty Deed | FEDERAL HOME LOAN MORTGAG | SEA STAR CAPITAL LLC | 0 | 0 | $40,000.00 | 113688 | 0 |
| 4 | 09/21/2009 | WD | Warranty Deed | NORTHWEST TRUSTEE SERVICE | FEDERAL HOME LOAN MORTGAGE COR | 0 | 0 | $78,738.00 | 113429 | 0 |
| 5 | 09/02/2005 | QCD | Quit Claim Deed | KINDELSPIRE, RUTH A | KINDELSPIRE, RICHARD A | 0 | 0 | $0.00 | 104695 | 0 |
| 6 | 08/26/2005 | SWD | Statutory Warranty Deed | KODER, BETTY J | KINDELSPIRE, RICHARD A | 0 | 0 | $81,200.00 | 104693 | 0 |
| 7 | 10/31/1997 | SWD | Statutory Warranty Deed | ECHTERNKAMP, FLOYD O/MARY | KODER, EVERETTE E/SR & BETTY J | 0 | 0 | $79,000.00 | 83092 | 0 |
Payout Agreement
| No payout information available.. |