Property
Account |
| Property ID: | 34236 | Abbreviated Legal Description: | LEARNED'S 2ND BLK 1 1 TO 10 |
| Parcel # / Geo ID: | 967500101 | Agent Code: | |
| Type: | Real | | |
| Tax Area: | 0110 - C-50F1E1H2 | Land Use Code | 11 |
| Open Space: | N | DFL | N |
| Historic Property: | N | Remodel Property: | N |
| Multi-Family Redevelopment: | N | | |
| Township: | 30N | Section: | 4 |
| Range: | 1W |
Location |
| Address: | 2870 SPRING ST PORT TOWNSEND, WA 98368 | Mapsco: | 076/018 |
| Neighborhood: | S 1/2 S4-30-1W INC HAMILTON HEIGHTS & PHOENIX | Map ID: | |
| Neighborhood CD: | 6100 |
Owner |
| Name: | HILLARY R & ANDREW G BENEDICT | Owner ID: | 98247 |
| Mailing Address: | 2870 SPRING ST PORT TOWNSEND, WA 98368-5960 | % Ownership: | 100.0000000000% |
| | | Exemptions: | |
Pay Tax Due
There is currently No Amount Due on this property.
Taxes and Assessment Details
Property Tax Information as of
10/24/2025
Click on "Statement Details" to expand or collapse a tax statement.
* Please enter a valid date ** Please enter a valid date *
Statement Details |
| | TOTAL: | $0.00 | $0.00 | $0.00 | $0.00 | $0.00 | $0.00 |
|
| | $0.00 | $0.00 | $0.00 | $0.00 | $0.00 | $0.00 |
Values
| (+) Improvement Homesite Value: | + | $0 | |
| (+) Improvement Non-Homesite Value: | + | $1,045,253 | |
| (+) Land Homesite Value: | + | $0 | |
| (+) Land Non-Homesite Value: | + | $218,500 | |
| (+) Curr Use (HS): | + | $0 | $0 |
| (+) Curr Use (NHS): | + | $0 | $0 |
| | | -------------------------- | |
| (=) Market Value: | = | $1,263,753 | |
| (–) Productivity Loss: | – | $0 | |
| | | -------------------------- | |
| (=) Subtotal: | = | $1,263,753 | |
| (+) Senior Appraised Value: | + | $0 | |
| (+) Non-Senior Appraised Value: | + | $1,263,753 | |
| | | -------------------------- | |
| (=) Total Appraised Value: | = | $1,263,753 | |
| (–) Senior Exemption Loss: | – | $0 | |
| (–) Exemption Loss: | – | $0 | |
| | | -------------------------- | |
| (=) Taxable Value: | = | $1,263,753 | |
Taxing Jurisdiction
| Owner: | HILLARY R & ANDREW G BENEDICT | | |
| % Ownership: | 100.0000000000% | | |
| Total Value: | N/A | | |
| Tax Area: | 0110 - C-50F1E1H2 |
| CE | COUNTY CURRENT EXPENSE | N/A | N/A | N/A | N/A | | |
| CNTYDD | DEVELOPMENTAL DISABILITIES | N/A | N/A | N/A | N/A | | |
| CNTYVET | VETERANS RELIEF | N/A | N/A | N/A | N/A | | |
| MENTAL | MENTAL HEALTH | N/A | N/A | N/A | N/A | | |
| PTGEN | CITY OF PT GENERAL | N/A | N/A | N/A | N/A | | |
| PTLLL | CITY OF PT - LIBRARY LID LIFT | N/A | N/A | N/A | N/A | | |
| PTMVBOND | CITY OF PT MV BOND | N/A | N/A | N/A | N/A | | |
| HOSP2CASH | HOSP DIST #2 GENERAL | N/A | N/A | N/A | N/A | | |
| SCH50BOND | SCHOOL DIST #50 BOND 2016 | N/A | N/A | N/A | N/A | | |
| SCH50CP | SCHOOL DIST #50 CAP PROJ | N/A | N/A | N/A | N/A | | |
| SCH50MO | SCHOOL DIST #50 EP & O | N/A | N/A | N/A | N/A | | |
| CONSERVE | CONSERVATION FUTURES | N/A | N/A | N/A | N/A | | |
| EMS1 | FIRE DIST #1 EMS | N/A | N/A | N/A | N/A | | |
| FD1 | FIRE DIST #1 GENERAL | N/A | N/A | N/A | N/A | | |
| PORTPT | PORT OF PT GENERAL | N/A | N/A | N/A | N/A | | |
| PORTPTIDD | PORT OF PT IDD 2019 | N/A | N/A | N/A | N/A | | |
| PUD1 | PUD #1 GENERAL | N/A | N/A | N/A | N/A | | |
| STATE | STATE SCHOOL PART 1 | N/A | N/A | N/A | N/A | | |
| STATE2 | STATE SCHOOL PART 2 | N/A | N/A | N/A | N/A | | |
| | Total Tax Rate: | N/A | | | | | |
| | | | | Taxes w/Current Exemptions: | N/A | | |
| | | | | Taxes w/o Exemptions: | N/A | | |
Improvement / Building
| Improvement #1: | Residential Bldg | State Code: | 11 | 2585.9 sqft | Value: | $1,045,253 |
| Bathrooms (#): | 2 (FULL) | Bathrooms (#): | 1 (HALF) | | Bedrooms (#): | 3 | Exterior Wall: | SI/ST | | Fireplace: | PROPS-GOOD | Floor Construction: | FRAME | | Foundation: | CONPR | Heating/Cooling: | HPUMP | | Roof Cover: | COMP |   |   |
|
| | Type | Description | Class CD | Sub Class CD | Year Built | Area |
| | MA | Main Area | 6 | 15SF | 2018 | 1685.9 |
| | MA2 | Second Floor Main Area | 6 | 15SF | 2018 | 900.0 |
| | GATT | House Attached Garage | 6 | 15SF | 2018 | 650.0 |
| | HDECK | House Deck | 6 | * | 2018 | 574.8 |
| | HWPOR | House Wood Porch | 6 | * | 2018 | 126.0 |
| | CONCD | Concrete Drive | 5 | * | 2018 | 1368.0 |
Sketch
Property Image
Land
| 1 | 6100-1375S | Terr View Bldg Sites 1+/- Acre in size | 0.0000 | 0.00 | 0.00 | 0.00 | 1.00 | $190,000 | $0 |
| 2 | 6100-1178L | Terr View Lots Undeveloped Access | 0.0000 | 0.00 | 0.00 | 0.00 | 3.00 | $28,500 | $0 |
Roll Value History
| 2025 | N/A | N/A | N/A | N/A | N/A |
| 2024 | $987,479 | $217,350 | $0 | $1,204,829 | $1,204,829 |
| 2023 | $944,545 | $202,000 | $0 | $1,146,545 | $1,146,545 |
| 2022 | $944,545 | $197,000 | $0 | $1,141,545 | $1,141,545 |
| 2021 | $781,261 | $178,200 | $0 | $959,461 | $959,461 |
Deed and Sales History
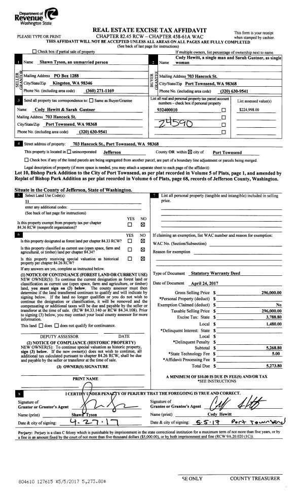
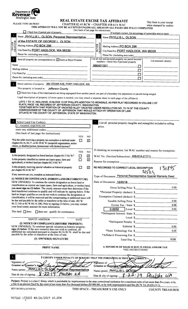
| 1 | 10/19/2017 | SWD | Statutory Warranty Deed | DAVID T SCHLOESSER | HILLARY R & ANDREW G BENEDICT | | | $300,000.00 | 128923 | |
|   | |
| 2 | 10/27/2016 | QCD | Quit Claim Deed | | | | | | 128922 | |
| 3 | 01/23/2006 | SWD | Statutory Warranty Deed | BRAMHALL, CLARENCE D/MARI | SCHLOESSER, DAVID T/JANET S | 0 | 0 | $225,000.00 | 105932 | 0 |
|   | |
Payout Agreement
| No payout information available.. |