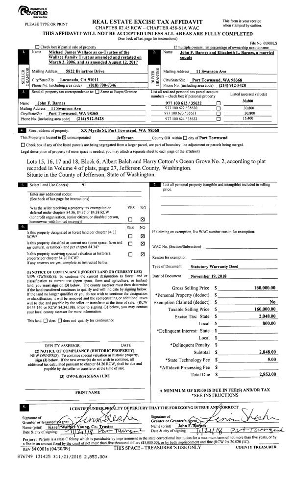
Property
Account |
| Property ID: | 34268 | Abbreviated Legal Description: | LITTLEFIELD'S ADDITION BLK 3 LOTS 13 THRU 16 |
| Parcel # / Geo ID: | 968100301 | Agent Code: | |
| Type: | Real | | |
| Tax Area: | 0110 - C-50F1E1H2 | Land Use Code | 11 |
| Open Space: | N | DFL | N |
| Historic Property: | N | Remodel Property: | N |
| Multi-Family Redevelopment: | N | | |
| Township: | 30N | Section: | 3 |
| Range: | 1W |
Location |
| Address: | 456 UMATILLA ST PORT TOWNSEND, WA 98368 | Mapsco: | 077/10A |
| Neighborhood: | LITTLEFIELD,MOORES,PT ECO,ROSEWIND,TIBBALS 2ND,WAYSONS+SP AC | Map ID: | |
| Neighborhood CD: | 6090 |
Owner |
| Name: | SUSAN C SCALF | Owner ID: | 92086 |
| Mailing Address: | 456 UMATILLA ST PORT TOWNSEND, WA 98368-5036 | % Ownership: | 100.0000000000% |
| | | Exemptions: | SNR/DSBL |
Pay Tax Due
There is currently No Amount Due on this property.
Taxes and Assessment Details
Property Tax Information as of
10/24/2025
Click on "Statement Details" to expand or collapse a tax statement.
* Please enter a valid date ** Please enter a valid date *
Statement Details |
| | TOTAL: | $0.00 | $0.00 | $0.00 | $0.00 | $0.00 | $0.00 |
|
| | $0.00 | $0.00 | $0.00 | $0.00 | $0.00 | $0.00 |
Values
| (+) Improvement Homesite Value: | + | $316,375 | |
| (+) Improvement Non-Homesite Value: | + | $0 | |
| (+) Land Homesite Value: | + | $232,000 | |
| (+) Land Non-Homesite Value: | + | $0 | |
| (+) Curr Use (HS): | + | $0 | $0 |
| (+) Curr Use (NHS): | + | $0 | $0 |
| | | -------------------------- | |
| (=) Market Value: | = | $548,375 | |
| (–) Productivity Loss: | – | $0 | |
| | | -------------------------- | |
| (=) Subtotal: | = | $548,375 | |
| (+) Senior Appraised Value: | + | $273,148 | |
| (+) Non-Senior Appraised Value: | + | $0 | |
| | | -------------------------- | |
| (=) Total Appraised Value: | = | $273,148 | |
| (–) Senior Exemption Loss: | – | $163,889 | |
| (–) Exemption Loss: | – | $0 | |
| | | -------------------------- | |
| (=) Taxable Value: | = | $109,259 | |
Taxing Jurisdiction
| Owner: | SUSAN C SCALF | | |
| % Ownership: | 100.0000000000% | | |
| Total Value: | N/A | | |
| Tax Area: | 0110 - C-50F1E1H2 |
| CE | COUNTY CURRENT EXPENSE | N/A | N/A | N/A | N/A | | |
| CNTYDD | DEVELOPMENTAL DISABILITIES | N/A | N/A | N/A | N/A | | |
| CNTYVET | VETERANS RELIEF | N/A | N/A | N/A | N/A | | |
| MENTAL | MENTAL HEALTH | N/A | N/A | N/A | N/A | | |
| PTGEN | CITY OF PT GENERAL | N/A | N/A | N/A | N/A | | |
| PTLLL | CITY OF PT - LIBRARY LID LIFT | N/A | N/A | N/A | N/A | | |
| PTMVBOND | CITY OF PT MV BOND | N/A | N/A | N/A | N/A | | |
| HOSP2CASH | HOSP DIST #2 GENERAL | N/A | N/A | N/A | N/A | | |
| SCH50BOND | SCHOOL DIST #50 BOND 2016 | N/A | N/A | N/A | N/A | | |
| SCH50CP | SCHOOL DIST #50 CAP PROJ | N/A | N/A | N/A | N/A | | |
| SCH50MO | SCHOOL DIST #50 EP & O | N/A | N/A | N/A | N/A | | |
| CONSERVE | CONSERVATION FUTURES | N/A | N/A | N/A | N/A | | |
| EMS1 | FIRE DIST #1 EMS | N/A | N/A | N/A | N/A | | |
| FD1 | FIRE DIST #1 GENERAL | N/A | N/A | N/A | N/A | | |
| PORTPT | PORT OF PT GENERAL | N/A | N/A | N/A | N/A | | |
| PORTPTIDD | PORT OF PT IDD 2019 | N/A | N/A | N/A | N/A | | |
| PUD1 | PUD #1 GENERAL | N/A | N/A | N/A | N/A | | |
| STATE | STATE SCHOOL PART 1 | N/A | N/A | N/A | N/A | | |
| STATE2 | STATE SCHOOL PART 2 | N/A | N/A | N/A | N/A | | |
| | Total Tax Rate: | N/A | | | | | |
| | | | | Taxes w/Current Exemptions: | N/A | | |
| | | | | Taxes w/o Exemptions: | N/A | | |
Improvement / Building
| Improvement #1: | Residential Bldg | State Code: | 11 | 1110.0 sqft | Value: | $316,375 |
| Bathrooms (#): | 2 (FULL) | Bedrooms (#): | 2 | | Exterior Wall: | SI/ST | Floor Construction: | FRAME | | Foundation: | CONPR | Heating/Cooling: | HPUMP | | Roof Cover: | METAL |   |   |
|
| | Type | Description | Class CD | Sub Class CD | Year Built | Area |
| | MA | Main Area | 3+ | 1S | 1992 | 1110.0 |
| | HWPOR | House Wood Porch | 3 | * | 1992 | 99.0 |
| | HDECK | House Deck | 3 | * | 1992 | 433.0 |
| | GATT | House Attached Garage | 4 | 1S | 1992 | 529.0 |
| | GARAG | Garage (Table Not Dep) | 4 | * | 1992 | 868.0 |
| | CONCD | Concrete Drive | 3 | * | 1992 | 600.0 |
| | PATIO | House Patio | 3 | * | 1992 | 476.6 |
| | SHED | Shed (Table Not Dep) | 4 | * | 1992 | 30.0 |
| | SHED | Shed (Table Not Dep) | 4 | * | 1992 | 33.0 |
Sketch
Property Image
Land
| 1 | 6090-1176L | Multiple Lot Site (2+/-) with Access/Utilities | 0.0000 | 0.00 | 0.00 | 0.00 | 2.00 | $190,000 | $0 |
| 2 | 6090-1177L | XS Lots for Sites | 0.0000 | 0.00 | 0.00 | 0.00 | 2.00 | $42,000 | $0 |
Roll Value History
| 2025 | N/A | N/A | N/A | N/A | N/A |
| 2024 | $302,394 | $231,000 | $0 | $533,394 | $109,259 |
| 2023 | $277,195 | $215,000 | $0 | $492,195 | $109,259 |
| 2022 | $277,194 | $210,000 | $0 | $487,194 | $109,259 |
| 2021 | $229,275 | $191,400 | $0 | $420,675 | $109,259 |
Deed and Sales History
| 1 | 04/07/2005 | QCD | Quit Claim Deed | SCALF, ROBERT E | SCALF, ROBERT E/SUSAN C | | | $0.00 | 103158 | 0 |
Payout Agreement
| No payout information available.. |