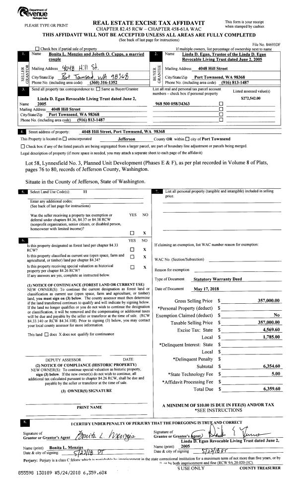
Property
Account |
| Property ID: | 34288 | Abbreviated Legal Description: | LITTLEFIELD'S ADDITION BLK 6 LOT 4(TAX 106) BND TGTH BY LLA#116945 |
| Parcel # / Geo ID: | 968100604 | Agent Code: | |
| Type: | Real | | |
| Tax Area: | 0110 - C-50F1E1H2 | Land Use Code | 11 |
| Open Space: | N | DFL | N |
| Historic Property: | N | Remodel Property: | N |
| Multi-Family Redevelopment: | N | | |
| Township: | 30N | Section: | 3 |
| Range: | 1W |
Location |
| Address: | 3082 ALDER ST 3088 PORT TOWNSEND, WA 98368 | Mapsco: | 077/033 |
| Neighborhood: | LITTLEFIELD,MOORES,PT ECO,ROSEWIND,TIBBALS 2ND,WAYSONS+SP AC | Map ID: | |
| Neighborhood CD: | 6090 |
Owner |
| Name: | NOCK JOINT REVOCABLE TRUST | Owner ID: | 68576 |
| Mailing Address: | WILLIAM NOCK TRUSTEE DAWNE NOCK TRUSTEE 7047 VESUVIO PLACE BOYNTON BEACH, FL 33437 | % Ownership: | 100.0000000000% |
| | | Exemptions: | |
Pay Tax Due
There is currently No Amount Due on this property.
Taxes and Assessment Details
Property Tax Information as of
10/24/2025
Click on "Statement Details" to expand or collapse a tax statement.
* Please enter a valid date ** Please enter a valid date *
Statement Details |
| | TOTAL: | $0.00 | $0.00 | $0.00 | $0.00 | $0.00 | $0.00 |
|
| | $0.00 | $0.00 | $0.00 | $0.00 | $0.00 | $0.00 |
Values
| (+) Improvement Homesite Value: | + | $0 | |
| (+) Improvement Non-Homesite Value: | + | $179,678 | |
| (+) Land Homesite Value: | + | $0 | |
| (+) Land Non-Homesite Value: | + | $202,310 | |
| (+) Curr Use (HS): | + | $0 | $0 |
| (+) Curr Use (NHS): | + | $0 | $0 |
| | | -------------------------- | |
| (=) Market Value: | = | $381,988 | |
| (–) Productivity Loss: | – | $0 | |
| | | -------------------------- | |
| (=) Subtotal: | = | $381,988 | |
| (+) Senior Appraised Value: | + | $0 | |
| (+) Non-Senior Appraised Value: | + | $381,988 | |
| | | -------------------------- | |
| (=) Total Appraised Value: | = | $381,988 | |
| (–) Senior Exemption Loss: | – | $0 | |
| (–) Exemption Loss: | – | $0 | |
| | | -------------------------- | |
| (=) Taxable Value: | = | $381,988 | |
Taxing Jurisdiction
| Owner: | NOCK JOINT REVOCABLE TRUST | | |
| % Ownership: | 100.0000000000% | | |
| Total Value: | N/A | | |
| Tax Area: | 0110 - C-50F1E1H2 |
| CE | COUNTY CURRENT EXPENSE | N/A | N/A | N/A | N/A | | |
| CNTYDD | DEVELOPMENTAL DISABILITIES | N/A | N/A | N/A | N/A | | |
| CNTYVET | VETERANS RELIEF | N/A | N/A | N/A | N/A | | |
| MENTAL | MENTAL HEALTH | N/A | N/A | N/A | N/A | | |
| PTGEN | CITY OF PT GENERAL | N/A | N/A | N/A | N/A | | |
| PTLLL | CITY OF PT - LIBRARY LID LIFT | N/A | N/A | N/A | N/A | | |
| PTMVBOND | CITY OF PT MV BOND | N/A | N/A | N/A | N/A | | |
| HOSP2CASH | HOSP DIST #2 GENERAL | N/A | N/A | N/A | N/A | | |
| SCH50BOND | SCHOOL DIST #50 BOND 2016 | N/A | N/A | N/A | N/A | | |
| SCH50CP | SCHOOL DIST #50 CAP PROJ | N/A | N/A | N/A | N/A | | |
| SCH50MO | SCHOOL DIST #50 EP & O | N/A | N/A | N/A | N/A | | |
| CONSERVE | CONSERVATION FUTURES | N/A | N/A | N/A | N/A | | |
| EMS1 | FIRE DIST #1 EMS | N/A | N/A | N/A | N/A | | |
| FD1 | FIRE DIST #1 GENERAL | N/A | N/A | N/A | N/A | | |
| PORTPT | PORT OF PT GENERAL | N/A | N/A | N/A | N/A | | |
| PORTPTIDD | PORT OF PT IDD 2019 | N/A | N/A | N/A | N/A | | |
| PUD1 | PUD #1 GENERAL | N/A | N/A | N/A | N/A | | |
| STATE | STATE SCHOOL PART 1 | N/A | N/A | N/A | N/A | | |
| STATE2 | STATE SCHOOL PART 2 | N/A | N/A | N/A | N/A | | |
| | Total Tax Rate: | N/A | | | | | |
| | | | | Taxes w/Current Exemptions: | N/A | | |
| | | | | Taxes w/o Exemptions: | N/A | | |
Improvement / Building
| Improvement #1: | Manufactured Home | State Code: | 11 | 504.0 sqft | Value: | $89,839 |
| Bathrooms (#): | 1 (FULL) | Bedrooms (#): | 1 | | Exterior Wall: | SI/ST | Fireplace: | WD ST-GOOD | | Floor Construction: | FRAME | Foundation: | CONPR | | Heating/Cooling: | F/A | Roof Cover: | COMP |
|
| | Type | Description | Class CD | Sub Class CD | Year Built | Area |
| | MA | Main Area | 5 | MSG | 2003 | 504.0 |
| | MDECK | MH Deck | 5 | * | 2003 | 204.0 |
| | SHED | Shed (Table Not Dep) | 3 | * | 2003 | 64.0 |
| Improvement #2: | Manufactured Home | State Code: | 11 | 504.0 sqft | Value: | $89,839 |
| Bathrooms (#): | 1 (FULL) | Bedrooms (#): | 1 | | Exterior Wall: | SI/ST | Fireplace: | WD ST-GOOD | | Floor Construction: | FRAME | Foundation: | CONPR | | Heating/Cooling: | F/A | Roof Cover: | COMP |
|
| | Type | Description | Class CD | Sub Class CD | Year Built | Area |
| | MA | Main Area | 5 | MSG | 2003 | 504.0 |
| | MDECK | MH Deck | 5 | * | 2003 | 204.0 |
| | SHED | Shed (Table Not Dep) | 3 | * | 2003 | 64.0 |
Sketch
Property Image
Land
| 1 | 6090-1176L | Multiple Lot Site (2+/-) with Access/Utilities | 0.0000 | 0.00 | 0.00 | 0.00 | 2.00 | $200,000 | $0 |
| 2 | 6090-1177L | XS Lots for Sites | 0.0000 | 0.00 | 0.00 | 0.00 | 1.00 | $2,310 | $0 |
Roll Value History
| 2025 | N/A | N/A | N/A | N/A | N/A |
| 2024 | $170,818 | $201,810 | $0 | $372,628 | $372,628 |
| 2023 | $156,582 | $187,200 | $0 | $343,782 | $343,782 |
| 2022 | $156,582 | $182,200 | $0 | $338,782 | $338,782 |
| 2021 | $129,514 | $167,057 | $0 | $296,571 | $296,571 |
Deed and Sales History
| 1 | 06/01/2016 | QCD | Quit Claim Deed | WILLIAM H NOCK | NOCK JOINT REVOCABLE TRUST | | | | 125544 | |
| 2 | 12/10/2011 | SWD | Statutory Warranty Deed | NOCK, WILLIAM H, STANTON | BENSON, ANDREW/NOCK JOHNSON, | 0 | 0 | $0.00 | 117124 | 0 |
| 3 | 12/10/2011 | SWD | Statutory Warranty Deed | NOCK, WILIAM H/DAWNE | BENSON, KIMBERLY/ANDREW | 0 | 0 | $0.00 | 117286 | 0 |
| 4 | 07/08/2005 | SWD | Statutory Warranty Deed | GARRISON TRTEE, VERNON I | NOCK, WILLIAM H/DAWNE STANTON | | | $142,500.00 | 104112 | 0 |
| 5 | 11/18/2002 | QCD | Quit Claim Deed | LITTLE, SHIRLEY MARIE | GARRISON, VERNON I | 0 | 0 | $0.00 | 96121 | 0 |
| 6 | 02/10/1999 | QCD | Quit Claim Deed | GARRISON, VERNON I | GARRISON, VERNON I/TRUST | 0 | 0 | $0.00 | 86285 | 0 |
| 7 | 06/26/1998 | SWD | Statutory Warranty Deed | MINISH, JOSPEH/TRUST | GARRISON, VERNON | 0 | 0 | $15,000.00 | 84767 | 0 |
Payout Agreement
| No payout information available.. |