Property
Account |
| Property ID: | 34314 | Abbreviated Legal Description: | LYNNESFIELD PUD #2 LOT 7 |
| Parcel # / Geo ID: | 968500007 | Agent Code: | |
| Type: | Real | | |
| Tax Area: | 0110 - C-50F1E1H2 | Land Use Code | 11 |
| Open Space: | N | DFL | N |
| Historic Property: | N | Remodel Property: | N |
| Multi-Family Redevelopment: | N | | |
| Township: | 31N | Section: | 34 |
| Range: | 1W |
Location |
| Address: | 4095 HOLCOMB ST PORT TOWNSEND, WA 98368 | Mapsco: | 078/042 |
| Neighborhood: | LYNNSFIELD & ACREAGE ADJ/WEST OF SAN JUAN AVE & NORTH OF UMATILLA | Map ID: | |
| Neighborhood CD: | 6080 |
Owner |
| Name: | SHEILA MOSS | Owner ID: | 92811 |
| Mailing Address: | 4095 HOLCOMB ST PORT TOWNSEND, WA 98368-2152 | % Ownership: | 100.0000000000% |
| | | Exemptions: | |
Pay Tax Due
There is currently No Amount Due on this property.
Taxes and Assessment Details
Property Tax Information as of
10/24/2025
Click on "Statement Details" to expand or collapse a tax statement.
* Please enter a valid date ** Please enter a valid date *
Statement Details |
| | TOTAL: | $0.00 | $0.00 | $0.00 | $0.00 | $0.00 | $0.00 |
|
| | $0.00 | $0.00 | $0.00 | $0.00 | $0.00 | $0.00 |
Values
| (+) Improvement Homesite Value: | + | $0 | |
| (+) Improvement Non-Homesite Value: | + | $494,144 | |
| (+) Land Homesite Value: | + | $0 | |
| (+) Land Non-Homesite Value: | + | $144,000 | |
| (+) Curr Use (HS): | + | $0 | $0 |
| (+) Curr Use (NHS): | + | $0 | $0 |
| | | -------------------------- | |
| (=) Market Value: | = | $638,144 | |
| (–) Productivity Loss: | – | $0 | |
| | | -------------------------- | |
| (=) Subtotal: | = | $638,144 | |
| (+) Senior Appraised Value: | + | $0 | |
| (+) Non-Senior Appraised Value: | + | $638,144 | |
| | | -------------------------- | |
| (=) Total Appraised Value: | = | $638,144 | |
| (–) Senior Exemption Loss: | – | $0 | |
| (–) Exemption Loss: | – | $0 | |
| | | -------------------------- | |
| (=) Taxable Value: | = | $638,144 | |
Taxing Jurisdiction
| Owner: | SHEILA MOSS | | |
| % Ownership: | 100.0000000000% | | |
| Total Value: | N/A | | |
| Tax Area: | 0110 - C-50F1E1H2 |
| CE | COUNTY CURRENT EXPENSE | N/A | N/A | N/A | N/A | | |
| CNTYDD | DEVELOPMENTAL DISABILITIES | N/A | N/A | N/A | N/A | | |
| CNTYVET | VETERANS RELIEF | N/A | N/A | N/A | N/A | | |
| MENTAL | MENTAL HEALTH | N/A | N/A | N/A | N/A | | |
| PTGEN | CITY OF PT GENERAL | N/A | N/A | N/A | N/A | | |
| PTLLL | CITY OF PT - LIBRARY LID LIFT | N/A | N/A | N/A | N/A | | |
| PTMVBOND | CITY OF PT MV BOND | N/A | N/A | N/A | N/A | | |
| HOSP2CASH | HOSP DIST #2 GENERAL | N/A | N/A | N/A | N/A | | |
| SCH50BOND | SCHOOL DIST #50 BOND 2016 | N/A | N/A | N/A | N/A | | |
| SCH50CP | SCHOOL DIST #50 CAP PROJ | N/A | N/A | N/A | N/A | | |
| SCH50MO | SCHOOL DIST #50 EP & O | N/A | N/A | N/A | N/A | | |
| CONSERVE | CONSERVATION FUTURES | N/A | N/A | N/A | N/A | | |
| EMS1 | FIRE DIST #1 EMS | N/A | N/A | N/A | N/A | | |
| FD1 | FIRE DIST #1 GENERAL | N/A | N/A | N/A | N/A | | |
| PORTPT | PORT OF PT GENERAL | N/A | N/A | N/A | N/A | | |
| PORTPTIDD | PORT OF PT IDD 2019 | N/A | N/A | N/A | N/A | | |
| PUD1 | PUD #1 GENERAL | N/A | N/A | N/A | N/A | | |
| STATE | STATE SCHOOL PART 1 | N/A | N/A | N/A | N/A | | |
| STATE2 | STATE SCHOOL PART 2 | N/A | N/A | N/A | N/A | | |
| | Total Tax Rate: | N/A | | | | | |
| | | | | Taxes w/Current Exemptions: | N/A | | |
| | | | | Taxes w/o Exemptions: | N/A | | |
Improvement / Building
| Improvement #1: | Residential Bldg | State Code: | 11 | 1684.0 sqft | Value: | $494,144 |
| Bathrooms (#): | 2 (FULL) | Bedrooms (#): | 3 | | Exterior Wall: | SI/ST | Fireplace: | SIN 1-GOOD | | Floor Construction: | FRAME | Foundation: | CONPR | | Heating/Cooling: | ELBB | Roof Cover: | COMP |
|
| | Type | Description | Class CD | Sub Class CD | Year Built | Area |
| | MA | Main Area | 4+ | 1S | 2004 | 1684.0 |
| | HWPOR | House Wood Porch | 4 | * | 2004 | 272.0 |
| | GATT | House Attached Garage | 4 | 1S | 2004 | 576.0 |
| | CONCD | Concrete Drive | 4 | * | 2004 | 2100.0 |
| | PATIO | House Patio | 4 | * | 2004 | 62.4 |
| | HDECK | House Deck | 4 | * | 2004 | 40.0 |
Sketch
Property Image
Land
| 1 | 6080-1275S | Lynnsfield Single Family Sites | 0.0000 | 0.00 | 0.00 | 0.00 | 1.00 | $144,000 | $0 |
Roll Value History
| 2025 | N/A | N/A | N/A | N/A | N/A |
| 2024 | $430,895 | $144,900 | $0 | $575,795 | $575,795 |
| 2023 | $412,160 | $133,000 | $0 | $545,160 | $545,160 |
| 2022 | $412,160 | $128,000 | $0 | $540,160 | $540,160 |
| 2021 | $344,615 | $112,470 | $0 | $457,085 | $457,085 |
Deed and Sales History
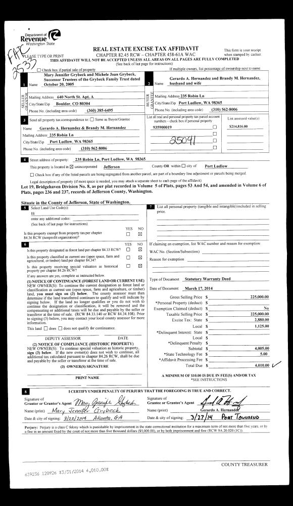
| 1 | 11/04/2014 | SWD | Statutory Warranty Deed | RICHARD D ROBERTS | SHEILA MOSS | | | $309,000.00 | 122239 | |
| 2 | 01/13/2005 | SWD | Statutory Warranty Deed | WILFONG, STEPHEN W/AMY M | ROBERTS, RICHARD D/LAURIE | 0 | 0 | $313,000.00 | 102566 | 0 |
| 3 | 04/29/2004 | SWD | Statutory Warranty Deed | BLESSING, KAREN | WILFONG, STEPHEN W/AMY M | 0 | 0 | $45,000.00 | 100117 | 0 |
| 4 | 05/15/2002 | SWD | Statutory Warranty Deed | LLOY R/LYNNETTE CAMPBELL | KAREN BLESSING | 0 | 0 | $30,000.00 | 94663 | 0 |
Payout Agreement
| No payout information available.. |