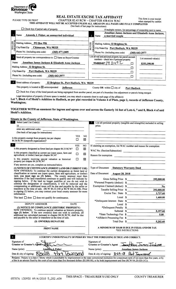
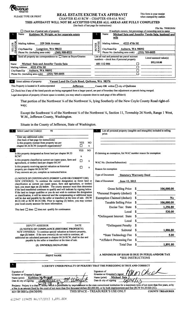
Property
Account |
| Property ID: | 34362 | Abbreviated Legal Description: | LYNNSFIELD PUD #3 LOT 57 |
| Parcel # / Geo ID: | 968500057 | Agent Code: | |
| Type: | Real | | |
| Tax Area: | 0110 - C-50F1E1H2 | Land Use Code | 11 |
| Open Space: | N | DFL | N |
| Historic Property: | N | Remodel Property: | N |
| Multi-Family Redevelopment: | N | | |
| Township: | 31N | Section: | 34 |
| Range: | 1W |
Location |
| Address: | 4024 HILL ST PORT TOWNSEND, WA 98368 | Mapsco: | 079/023 |
| Neighborhood: | LYNNSFIELD & ACREAGE ADJ/WEST OF SAN JUAN AVE & NORTH OF UMATILLA | Map ID: | |
| Neighborhood CD: | 6080 |
Owner |
| Name: | GLENDA TAVERNAKIS | Owner ID: | 92229 |
| Mailing Address: | SOPHIA TAVERNAKIS 4024 HILL ST PORT TOWNSEND, WA 98368-2127 | % Ownership: | 100.0000000000% |
| | | Exemptions: | |
Pay Tax Due
There is currently No Amount Due on this property.
Taxes and Assessment Details
Property Tax Information as of
10/24/2025
Click on "Statement Details" to expand or collapse a tax statement.
* Please enter a valid date ** Please enter a valid date *
Statement Details |
| | TOTAL: | $0.00 | $0.00 | $0.00 | $0.00 | $0.00 | $0.00 |
|
| | $0.00 | $0.00 | $0.00 | $0.00 | $0.00 | $0.00 |
Values
| (+) Improvement Homesite Value: | + | $0 | |
| (+) Improvement Non-Homesite Value: | + | $378,551 | |
| (+) Land Homesite Value: | + | $0 | |
| (+) Land Non-Homesite Value: | + | $125,000 | |
| (+) Curr Use (HS): | + | $0 | $0 |
| (+) Curr Use (NHS): | + | $0 | $0 |
| | | -------------------------- | |
| (=) Market Value: | = | $503,551 | |
| (–) Productivity Loss: | – | $0 | |
| | | -------------------------- | |
| (=) Subtotal: | = | $503,551 | |
| (+) Senior Appraised Value: | + | $0 | |
| (+) Non-Senior Appraised Value: | + | $503,551 | |
| | | -------------------------- | |
| (=) Total Appraised Value: | = | $503,551 | |
| (–) Senior Exemption Loss: | – | $0 | |
| (–) Exemption Loss: | – | $0 | |
| | | -------------------------- | |
| (=) Taxable Value: | = | $503,551 | |
Taxing Jurisdiction
| Owner: | GLENDA TAVERNAKIS | | |
| % Ownership: | 100.0000000000% | | |
| Total Value: | N/A | | |
| Tax Area: | 0110 - C-50F1E1H2 |
| CE | COUNTY CURRENT EXPENSE | N/A | N/A | N/A | N/A | | |
| CNTYDD | DEVELOPMENTAL DISABILITIES | N/A | N/A | N/A | N/A | | |
| CNTYVET | VETERANS RELIEF | N/A | N/A | N/A | N/A | | |
| MENTAL | MENTAL HEALTH | N/A | N/A | N/A | N/A | | |
| PTGEN | CITY OF PT GENERAL | N/A | N/A | N/A | N/A | | |
| PTLLL | CITY OF PT - LIBRARY LID LIFT | N/A | N/A | N/A | N/A | | |
| PTMVBOND | CITY OF PT MV BOND | N/A | N/A | N/A | N/A | | |
| HOSP2CASH | HOSP DIST #2 GENERAL | N/A | N/A | N/A | N/A | | |
| SCH50BOND | SCHOOL DIST #50 BOND 2016 | N/A | N/A | N/A | N/A | | |
| SCH50CP | SCHOOL DIST #50 CAP PROJ | N/A | N/A | N/A | N/A | | |
| SCH50MO | SCHOOL DIST #50 EP & O | N/A | N/A | N/A | N/A | | |
| CONSERVE | CONSERVATION FUTURES | N/A | N/A | N/A | N/A | | |
| EMS1 | FIRE DIST #1 EMS | N/A | N/A | N/A | N/A | | |
| FD1 | FIRE DIST #1 GENERAL | N/A | N/A | N/A | N/A | | |
| PORTPT | PORT OF PT GENERAL | N/A | N/A | N/A | N/A | | |
| PORTPTIDD | PORT OF PT IDD 2019 | N/A | N/A | N/A | N/A | | |
| PUD1 | PUD #1 GENERAL | N/A | N/A | N/A | N/A | | |
| STATE | STATE SCHOOL PART 1 | N/A | N/A | N/A | N/A | | |
| STATE2 | STATE SCHOOL PART 2 | N/A | N/A | N/A | N/A | | |
| | Total Tax Rate: | N/A | | | | | |
| | | | | Taxes w/Current Exemptions: | N/A | | |
| | | | | Taxes w/o Exemptions: | N/A | | |
Improvement / Building
| Improvement #1: | Residential Bldg | State Code: | 11 | 1379.0 sqft | Value: | $378,551 |
| Bathrooms (#): | 2 (FULL) | Bedrooms (#): | 2 | | Exterior Wall: | SI/ST | Floor Construction: | FRAME | | Foundation: | CONPR | Heating/Cooling: | F/A | | Roof Cover: | COMP |   |   |
|
| | Type | Description | Class CD | Sub Class CD | Year Built | Area |
| | MA | Main Area | 4 | 1S | 2008 | 1379.0 |
| | HWPOR | House Wood Porch | 4 | * | 2008 | 116.0 |
| | HDECK | House Deck | 4 | * | 2008 | 200.0 |
| | GATT | House Attached Garage | 4 | 1S | 2008 | 420.0 |
| | CONCD | Concrete Drive | 4 | * | 2008 | 525.0 |
| | PATIO | House Patio | 4 | * | 2008 | 280.0 |
Sketch
Property Image
Land
| 1 | 6080-1275S | Lynnsfield Single Family Sites | 0.0000 | 0.00 | 0.00 | 0.00 | 1.00 | $125,000 | $0 |
Roll Value History
| 2025 | N/A | N/A | N/A | N/A | N/A |
| 2024 | $326,935 | $126,000 | $0 | $452,935 | $452,935 |
| 2023 | $312,720 | $115,000 | $0 | $427,720 | $427,720 |
| 2022 | $312,720 | $110,000 | $0 | $422,720 | $422,720 |
| 2021 | $261,472 | $96,600 | $0 | $358,072 | $358,072 |
Deed and Sales History
| 1 | 07/15/2014 | QCD | Quit Claim Deed | | | | | | 121564 | |
| 2 | 07/15/2014 | REC | Real Estate Contract | LLOYD R CAMPBELL | GLENDA TAVERNAKIS | | | $225,000.00 | 121562 | |
| 3 | 07/09/2014 | QCD | Quit Claim Deed | | | | | | 121511 | |
| 4 | 11/19/2008 | SWD | Statutory Warranty Deed | CAMPBELL, JOE | CAMPBELL, JOE, CAMPBELL SR, LL | 0 | 0 | $0.00 | 112200 | 0 |
| 5 | 07/18/2007 | SWD | Statutory Warranty Deed | CAMPBELL, LYNNETTE/LLOYD | CAMPBELL, JOE | | | $75,000.00 | 109683 | 0 |
Payout Agreement
| No payout information available.. |