Property
Account |
| Property ID: | 34470 | Abbreviated Legal Description: | LUDLOW COVE DIVISION 1 PHASE 2 LOT 10 TGTH W/UND INT IN TR F,G&H SUBJ TO EASE |
| Parcel # / Geo ID: | 968800010 | Agent Code: | |
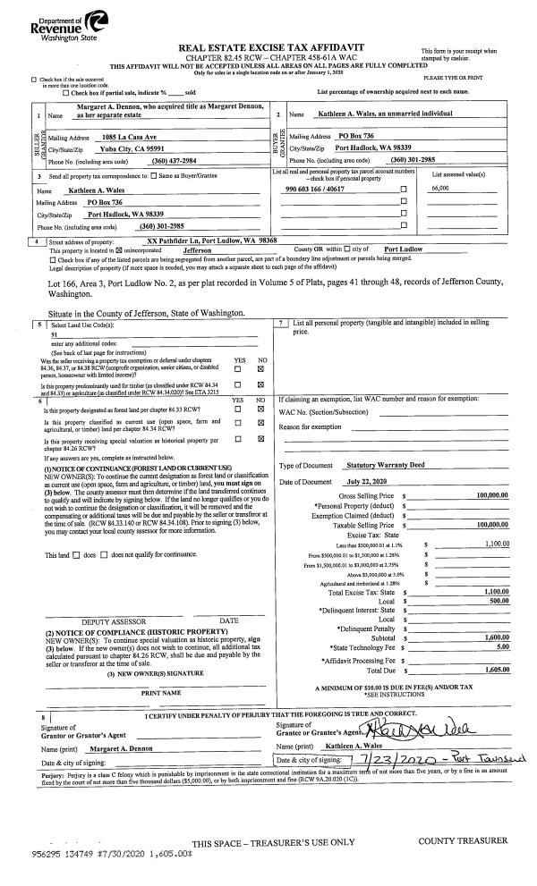
| Type: | Real | | |
| Tax Area: | 0213 - 1-49F1E1H2L1 | Land Use Code | 11 |
| Open Space: | N | DFL | N |
| Historic Property: | N | Remodel Property: | N |
| Multi-Family Redevelopment: | N | | |
| Township: | 28N | Section: | 17 |
| Range: | 1E |
Location |
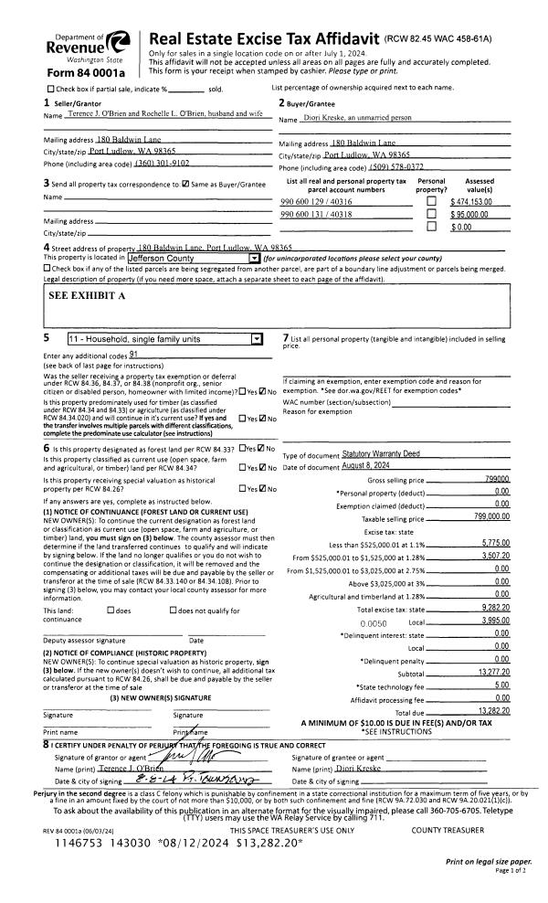
| Address: | 72 EBB TIDE CT PORT LUDLOW, WA 98365 | Mapsco: | 062/014 |
| Neighborhood: | S9& N1/2 16,T28R1E,LUDLOW BAY VILL,+SP | Map ID: | |
| Neighborhood CD: | 3338 |
Owner |
| Name: | CAREY R & MARILYN A ARON TRUST | Owner ID: | 104091 |
| Mailing Address: | CARET R ARON TRUSTEE MARILYN A ARON TRUSTEE 72 EBB TIDE CT PORT LUDLOW, WA 98365-8283 | % Ownership: | 100.0000000000% |
| | | Exemptions: | |
Pay Tax Due
There is currently No Amount Due on this property.
Taxes and Assessment Details
Property Tax Information as of
10/24/2025
Click on "Statement Details" to expand or collapse a tax statement.
* Please enter a valid date ** Please enter a valid date *
Statement Details |
| | TOTAL: | $0.00 | $0.00 | $0.00 | $0.00 | $0.00 | $0.00 |
|
| | $0.00 | $0.00 | $0.00 | $0.00 | $0.00 | $0.00 |
Values
| (+) Improvement Homesite Value: | + | $0 | |
| (+) Improvement Non-Homesite Value: | + | $775,518 | |
| (+) Land Homesite Value: | + | $0 | |
| (+) Land Non-Homesite Value: | + | $203,500 | |
| (+) Curr Use (HS): | + | $0 | $0 |
| (+) Curr Use (NHS): | + | $0 | $0 |
| | | -------------------------- | |
| (=) Market Value: | = | $979,018 | |
| (–) Productivity Loss: | – | $0 | |
| | | -------------------------- | |
| (=) Subtotal: | = | $979,018 | |
| (+) Senior Appraised Value: | + | $0 | |
| (+) Non-Senior Appraised Value: | + | $979,018 | |
| | | -------------------------- | |
| (=) Total Appraised Value: | = | $979,018 | |
| (–) Senior Exemption Loss: | – | $0 | |
| (–) Exemption Loss: | – | $0 | |
| | | -------------------------- | |
| (=) Taxable Value: | = | $979,018 | |
Taxing Jurisdiction
| Owner: | CAREY R & MARILYN A ARON TRUST | | |
| % Ownership: | 100.0000000000% | | |
| Total Value: | N/A | | |
| Tax Area: | 0213 - 1-49F1E1H2L1 |
| CE | COUNTY CURRENT EXPENSE | N/A | N/A | N/A | N/A | | |
| CNTYDD | DEVELOPMENTAL DISABILITIES | N/A | N/A | N/A | N/A | | |
| CNTYVET | VETERANS RELIEF | N/A | N/A | N/A | N/A | | |
| MENTAL | MENTAL HEALTH | N/A | N/A | N/A | N/A | | |
| ROADS | COUNTY ROADS | N/A | N/A | N/A | N/A | | |
| ROADSCU | COUNTY ROADS TO CUR EXP | N/A | N/A | N/A | N/A | | |
| HOSP2CASH | HOSP DIST #2 GENERAL | N/A | N/A | N/A | N/A | | |
| SCH49CP | SCHOOL DIST #49 CAP PROJ | N/A | N/A | N/A | N/A | | |
| SCH49MO | SCHOOL DIST #49 EP & O | N/A | N/A | N/A | N/A | | |
| CONSERVE | CONSERVATION FUTURES | N/A | N/A | N/A | N/A | | |
| EMS1 | FIRE DIST #1 EMS | N/A | N/A | N/A | N/A | | |
| FD1 | FIRE DIST #1 GENERAL | N/A | N/A | N/A | N/A | | |
| LIB1 | LIBRARY DIST #1 GENERAL | N/A | N/A | N/A | N/A | | |
| PORTPT | PORT OF PT GENERAL | N/A | N/A | N/A | N/A | | |
| PORTPTIDD | PORT OF PT IDD 2019 | N/A | N/A | N/A | N/A | | |
| PUD1 | PUD #1 GENERAL | N/A | N/A | N/A | N/A | | |
| STATE | STATE SCHOOL PART 1 | N/A | N/A | N/A | N/A | | |
| STATE2 | STATE SCHOOL PART 2 | N/A | N/A | N/A | N/A | | |
| | Total Tax Rate: | N/A | | | | | |
| | | | | Taxes w/Current Exemptions: | N/A | | |
| | | | | Taxes w/o Exemptions: | N/A | | |
Improvement / Building
| Improvement #1: | Residential Bldg | State Code: | 11 | 1479.0 sqft | Value: | $775,518 |
| Bathrooms (#): | 3 (FULL) | Bedrooms (#): | 2 | | Exterior Wall: | SI/ST | Fireplace: | WD ST-GOOD | | Floor Construction: | FRAME | Foundation: | CONPR | | Heating/Cooling: | HPUMP | Roof Cover: | METAL |
|
| | Type | Description | Class CD | Sub Class CD | Year Built | Area |
| | MA | Main Area | 5+ | 15SF | 2019 | 1479.0 |
| | GATT | House Attached Garage | 6 | 15SF | 2019 | 915.0 |
| | BSMTF | House basement finished | 6 | 15SF | 2019 | 609.0 |
| | HDECK | House Deck | 6 | 15SF | 2019 | 744.0 |
| | CONCD | Concrete Drive | 6 | 15SF | 2019 | 650.0 |
| | PATIO | House Patio | 6 | 15SF | 2019 | 6468.0 |
Sketch
Property Image
Land
| 1 | 3338-1255L | Avg Wtr View Lots Ludlow Cove 1 | 0.0000 | 0.00 | 0.00 | 0.00 | 1.00 | $203,500 | $0 |
Roll Value History
| 2025 | N/A | N/A | N/A | N/A | N/A |
| 2024 | $743,205 | $185,000 | $0 | $928,205 | $928,205 |
| 2023 | $743,205 | $180,000 | $0 | $923,205 | $923,205 |
| 2022 | $710,891 | $175,000 | $0 | $885,891 | $885,891 |
| 2021 | $640,129 | $162,500 | $0 | $802,629 | $802,629 |
Deed and Sales History
| 1 | 01/26/2021 | SWD | Statutory Warranty Deed | GARY WEBB & ANN ROWE | CAREY R & MARILYN A ARON TRUST | | | $849,000.00 | 136042 | |
| 2 | 02/20/2018 | SWD | Statutory Warranty Deed | PORT LUDLOW ASSOCIATES LLC | GARY WEBB & ANN ROWE | | | $80,000.00 | 129608 | |
Payout Agreement
| No payout information available.. |