Property
Account |
| Property ID: | 34521 | Abbreviated Legal Description: | LUDLOW POINT TRACTS 13 AND 14 W/ TIDELANDS ADJ BND BY BLA#644891 |
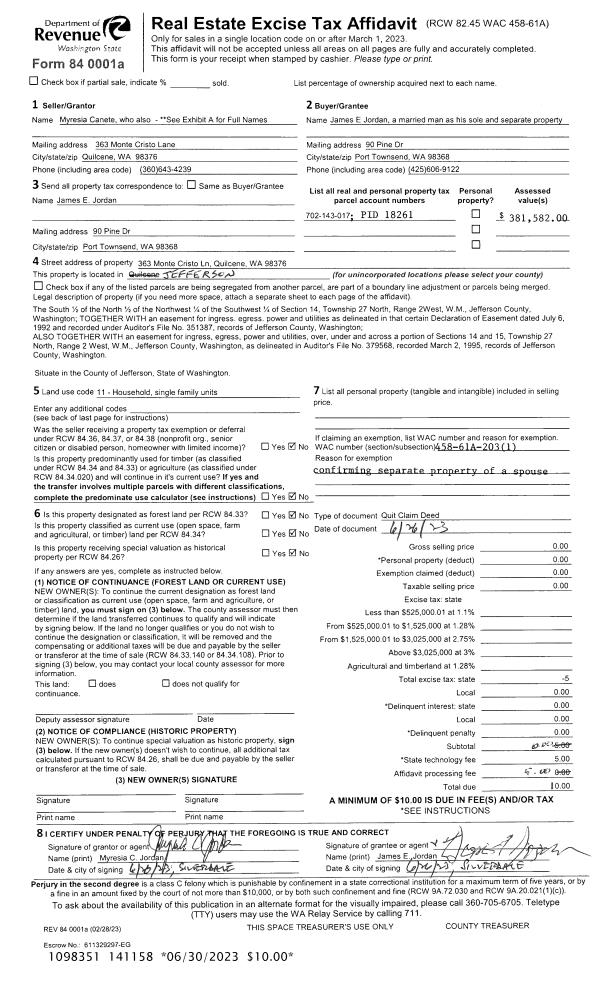
| Parcel # / Geo ID: | 969300010 | Agent Code: | |
| Type: | Real | | |
| Tax Area: | 0213 - 1-49F1E1H2L1 | Land Use Code | 11 |
| Open Space: | N | DFL | N |
| Historic Property: | N | Remodel Property: | N |
| Multi-Family Redevelopment: | N | | |
| Township: | 28N | Section: | 16 |
| Range: | 1E |
Location |
| Address: | 378 SOUTH BAY LN PORT LUDLOW, WA 98365 | Mapsco: | 060/011 |
| Neighborhood: | LUDLOW POINT TRACTS; LUDLOW POINT VILLAGE #1 | Map ID: | |
| Neighborhood CD: | 3345 |
Owner |
| Name: | MARGUERITA CONTI & RENELLE D RISLEY | Owner ID: | 104487 |
| Mailing Address: | 378 S BAY LN PORT LUDLOW, WA 98365-8785 | % Ownership: | 100.0000000000% |
| | | Exemptions: | |
Pay Tax Due
There is currently No Amount Due on this property.
Taxes and Assessment Details
Property Tax Information as of
10/24/2025
Click on "Statement Details" to expand or collapse a tax statement.
* Please enter a valid date ** Please enter a valid date *
Statement Details |
| | TOTAL: | $0.00 | $0.00 | $0.00 | $0.00 | $0.00 | $0.00 |
|
| | $0.00 | $0.00 | $0.00 | $0.00 | $0.00 | $0.00 |
Values
| (+) Improvement Homesite Value: | + | $0 | |
| (+) Improvement Non-Homesite Value: | + | $1,407,943 | |
| (+) Land Homesite Value: | + | $0 | |
| (+) Land Non-Homesite Value: | + | $561,173 | |
| (+) Curr Use (HS): | + | $0 | $0 |
| (+) Curr Use (NHS): | + | $0 | $0 |
| | | -------------------------- | |
| (=) Market Value: | = | $1,969,116 | |
| (–) Productivity Loss: | – | $0 | |
| | | -------------------------- | |
| (=) Subtotal: | = | $1,969,116 | |
| (+) Senior Appraised Value: | + | $0 | |
| (+) Non-Senior Appraised Value: | + | $1,969,116 | |
| | | -------------------------- | |
| (=) Total Appraised Value: | = | $1,969,116 | |
| (–) Senior Exemption Loss: | – | $0 | |
| (–) Exemption Loss: | – | $0 | |
| | | -------------------------- | |
| (=) Taxable Value: | = | $1,969,116 | |
Taxing Jurisdiction
| Owner: | MARGUERITA CONTI & RENELLE D RISLEY | | |
| % Ownership: | 100.0000000000% | | |
| Total Value: | N/A | | |
| Tax Area: | 0213 - 1-49F1E1H2L1 |
| CE | COUNTY CURRENT EXPENSE | N/A | N/A | N/A | N/A | | |
| CNTYDD | DEVELOPMENTAL DISABILITIES | N/A | N/A | N/A | N/A | | |
| CNTYVET | VETERANS RELIEF | N/A | N/A | N/A | N/A | | |
| MENTAL | MENTAL HEALTH | N/A | N/A | N/A | N/A | | |
| ROADS | COUNTY ROADS | N/A | N/A | N/A | N/A | | |
| ROADSCU | COUNTY ROADS TO CUR EXP | N/A | N/A | N/A | N/A | | |
| HOSP2CASH | HOSP DIST #2 GENERAL | N/A | N/A | N/A | N/A | | |
| SCH49CP | SCHOOL DIST #49 CAP PROJ | N/A | N/A | N/A | N/A | | |
| SCH49MO | SCHOOL DIST #49 EP & O | N/A | N/A | N/A | N/A | | |
| CONSERVE | CONSERVATION FUTURES | N/A | N/A | N/A | N/A | | |
| EMS1 | FIRE DIST #1 EMS | N/A | N/A | N/A | N/A | | |
| FD1 | FIRE DIST #1 GENERAL | N/A | N/A | N/A | N/A | | |
| LIB1 | LIBRARY DIST #1 GENERAL | N/A | N/A | N/A | N/A | | |
| PORTPT | PORT OF PT GENERAL | N/A | N/A | N/A | N/A | | |
| PORTPTIDD | PORT OF PT IDD 2019 | N/A | N/A | N/A | N/A | | |
| PUD1 | PUD #1 GENERAL | N/A | N/A | N/A | N/A | | |
| STATE | STATE SCHOOL PART 1 | N/A | N/A | N/A | N/A | | |
| STATE2 | STATE SCHOOL PART 2 | N/A | N/A | N/A | N/A | | |
| | Total Tax Rate: | N/A | | | | | |
| | | | | Taxes w/Current Exemptions: | N/A | | |
| | | | | Taxes w/o Exemptions: | N/A | | |
Improvement / Building
| Improvement #1: | Residential Bldg | State Code: | 11 | 2756.0 sqft | Value: | $1,202,069 |
| Bathrooms (#): | 2 (FULL) | Bedrooms (#): | 3 | | Exterior Wall: | SI/ST | Foundation: | CONPR | | Heating/Cooling: | HPUMP | Roof Cover: | COMP |
|
| | Type | Description | Class CD | Sub Class CD | Year Built | Area |
| | MA | Main Area | 6 | 1S | 2023 | 2756.0 |
| | GATT | House Attached Garage | 6 | 1S | 2023 | 1104.0 |
| | PATIO | House Patio | 6 | 1S | 2023 | 988.0 |
| Improvement #2: | Residential Bldg | State Code: | 11 | 804.0 sqft | Value: | $205,874 |
| Bathrooms (#): | 1 (FULL) | Exterior Wall: | SI/ST | | Foundation: | CONPR | Heating/Cooling: | HPUMP | | Roof Cover: | COMP |   |   |
|
| | Type | Description | Class CD | Sub Class CD | Year Built | Area |
| | MA | Main Area | 5 | ADU | 2023 | 804.0 |
| | HCPOR | House Concrete Porch | 5 | ADU | 2023 | 100.0 |
| | PATIO | House Patio | 5 | ADU | 2023 | 188.0 |
Sketch
| No sketches available for this property. |
Property Image
Land
| 1 | 3345-1135L | Waterfront Lots East/West Facing Ludlow Point | 0.0000 | 0.00 | 0.00 | 0.00 | 1.00 | $556,500 | $0 |
| 2 | 9301F | Tidelands | 0.0000 | 0.00 | 89.00 | 0.00 | 0.00 | $4,673 | $0 |
Roll Value History
| 2025 | N/A | N/A | N/A | N/A | N/A |
| 2024 | $1,407,943 | $561,173 | $0 | $1,969,116 | $1,969,116 |
| 2023 | $983,608 | $504,700 | $0 | $1,488,308 | $1,488,308 |
| 2022 | $0 | $474,700 | $0 | $474,700 | $474,700 |
| 2021 | $0 | $394,628 | $0 | $394,628 | $394,628 |
Deed and Sales History
| 1 | 03/30/2021 | SWD | Statutory Warranty Deed | JOHN W GILL | MARGUERITA CONTI & RENELLE D RISLEY | | | $600,000.00 | 136460 | |
| 2 | 09/30/1998 | SWD | Statutory Warranty Deed | HARRIS, JUNE/HARRIS INVES | GILL, JOHN W/MARDEL M | 0 | 0 | $0.00 | 85454 | 0 |
| 3 | 07/06/1998 | QCD | Quit Claim Deed | HARRIS INVESTMENTS LLC | HARRIS, JUNE | 0 | 0 | $0.00 | 84806 | 0 |
| 4 | 11/24/1997 | SWD | Statutory Warranty Deed | HARRIS, RAY E/JUNE | HARRIS INVESTMENTS LLC | 0 | 0 | $0.00 | 83302 | 0 |
Payout Agreement
| No payout information available.. |