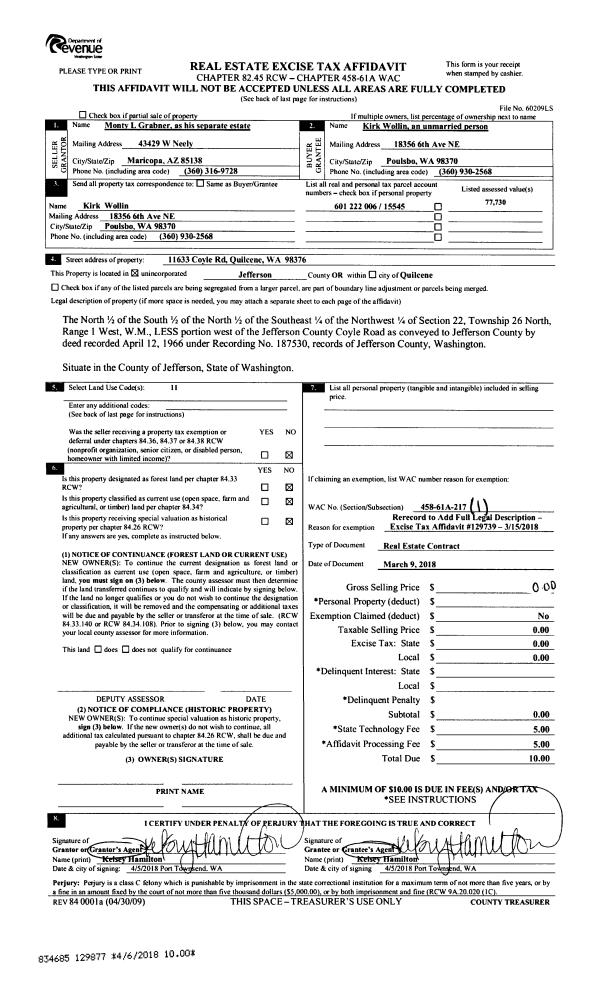
Property
Account |
| Property ID: | 34605 | Abbreviated Legal Description: | LUDLOW POINT VILLAGE DIV 3 LOT 19 |
| Parcel # / Geo ID: | 969700019 | Agent Code: | |
| Type: | Real | | |
| Tax Area: | 0213 - 1-49F1E1H2L1 | Land Use Code | 11 |
| Open Space: | N | DFL | N |
| Historic Property: | N | Remodel Property: | N |
| Multi-Family Redevelopment: | N | | |
| Township: | 28N | Section: | 17 |
| Range: | 1E |
Location |
| Address: | 343 CAMBER LN PORT LUDLOW, WA 98365 | Mapsco: | 064/037 |
| Neighborhood: | S17T28R1E IN MPR; LUDLOW PT#2-4 & TIMBERTON VIL;RV PK;OSPREY | Map ID: | |
| Neighborhood CD: | 3340 |
Owner |
| Name: | ANNE L & LINDSAY R ASHMORE | Owner ID: | 99886 |
| Mailing Address: | 343 CAMBER LN PORT LUDLOW, WA 98365-9579 | % Ownership: | 100.0000000000% |
| | | Exemptions: | |
Pay Tax Due
There is currently No Amount Due on this property.
Taxes and Assessment Details
Property Tax Information as of
10/24/2025
Click on "Statement Details" to expand or collapse a tax statement.
* Please enter a valid date ** Please enter a valid date *
Statement Details |
| | TOTAL: | $0.00 | $0.00 | $0.00 | $0.00 | $0.00 | $0.00 |
|
| | $0.00 | $0.00 | $0.00 | $0.00 | $0.00 | $0.00 |
Values
| (+) Improvement Homesite Value: | + | $0 | |
| (+) Improvement Non-Homesite Value: | + | $392,497 | |
| (+) Land Homesite Value: | + | $0 | |
| (+) Land Non-Homesite Value: | + | $115,000 | |
| (+) Curr Use (HS): | + | $0 | $0 |
| (+) Curr Use (NHS): | + | $0 | $0 |
| | | -------------------------- | |
| (=) Market Value: | = | $507,497 | |
| (–) Productivity Loss: | – | $0 | |
| | | -------------------------- | |
| (=) Subtotal: | = | $507,497 | |
| (+) Senior Appraised Value: | + | $0 | |
| (+) Non-Senior Appraised Value: | + | $507,497 | |
| | | -------------------------- | |
| (=) Total Appraised Value: | = | $507,497 | |
| (–) Senior Exemption Loss: | – | $0 | |
| (–) Exemption Loss: | – | $0 | |
| | | -------------------------- | |
| (=) Taxable Value: | = | $507,497 | |
Taxing Jurisdiction
| Owner: | ANNE L & LINDSAY R ASHMORE | | |
| % Ownership: | 100.0000000000% | | |
| Total Value: | N/A | | |
| Tax Area: | 0213 - 1-49F1E1H2L1 |
| CE | COUNTY CURRENT EXPENSE | N/A | N/A | N/A | N/A | | |
| CNTYDD | DEVELOPMENTAL DISABILITIES | N/A | N/A | N/A | N/A | | |
| CNTYVET | VETERANS RELIEF | N/A | N/A | N/A | N/A | | |
| MENTAL | MENTAL HEALTH | N/A | N/A | N/A | N/A | | |
| ROADS | COUNTY ROADS | N/A | N/A | N/A | N/A | | |
| ROADSCU | COUNTY ROADS TO CUR EXP | N/A | N/A | N/A | N/A | | |
| HOSP2CASH | HOSP DIST #2 GENERAL | N/A | N/A | N/A | N/A | | |
| SCH49CP | SCHOOL DIST #49 CAP PROJ | N/A | N/A | N/A | N/A | | |
| SCH49MO | SCHOOL DIST #49 EP & O | N/A | N/A | N/A | N/A | | |
| CONSERVE | CONSERVATION FUTURES | N/A | N/A | N/A | N/A | | |
| EMS1 | FIRE DIST #1 EMS | N/A | N/A | N/A | N/A | | |
| FD1 | FIRE DIST #1 GENERAL | N/A | N/A | N/A | N/A | | |
| LIB1 | LIBRARY DIST #1 GENERAL | N/A | N/A | N/A | N/A | | |
| PORTPT | PORT OF PT GENERAL | N/A | N/A | N/A | N/A | | |
| PORTPTIDD | PORT OF PT IDD 2019 | N/A | N/A | N/A | N/A | | |
| PUD1 | PUD #1 GENERAL | N/A | N/A | N/A | N/A | | |
| STATE | STATE SCHOOL PART 1 | N/A | N/A | N/A | N/A | | |
| STATE2 | STATE SCHOOL PART 2 | N/A | N/A | N/A | N/A | | |
| | Total Tax Rate: | N/A | | | | | |
| | | | | Taxes w/Current Exemptions: | N/A | | |
| | | | | Taxes w/o Exemptions: | N/A | | |
Improvement / Building
| Improvement #1: | Residential Bldg | State Code: | 11 | 1684.0 sqft | Value: | $392,497 |
| Bathrooms (#): | 2 (FULL) | Bedrooms (#): | 3 | | Exterior Wall: | SI/ST | Fireplace: | SIN 1-GOOD | | Floor Construction: | FRAME | Foundation: | CONPR | | Heating/Cooling: | HPUMP | Inside Verify: | YES | | Roof Cover: | TILE |   |   |
|
| | Type | Description | Class CD | Sub Class CD | Year Built | Area |
| | MA | Main Area | 4- | 1S | 1994 | 1684.0 |
| | HDECK | House Deck | 4 | 1S | 1994 | 376.0 |
| | GATT | House Attached Garage | 4 | 1S | 1994 | 380.0 |
| | CONCD | Concrete Drive | 4 | 1S | 1994 | 765.0 |
Sketch
Property Image
Land
| 1 | 3340-1175L | Terr/Filtered View Lots Ludlow Point | 0.0000 | 0.00 | 0.00 | 0.00 | 1.00 | $115,000 | $0 |
Roll Value History
| 2025 | N/A | N/A | N/A | N/A | N/A |
| 2024 | $392,497 | $115,000 | $0 | $507,497 | $507,497 |
| 2023 | $392,497 | $110,000 | $0 | $502,497 | $502,497 |
| 2022 | $392,497 | $85,000 | $0 | $477,497 | $477,497 |
| 2021 | $285,454 | $78,000 | $0 | $363,454 | $363,454 |
Deed and Sales History
| 1 | 09/10/2018 | SWD | Statutory Warranty Deed | DUANE H PETERSON | ANNE L & LINDSAY R ASHMORE | | | $396,000.00 | 130974 | |
| 2 | 07/06/2012 | SWD | Statutory Warranty Deed | BROWN, KEITH/MARGARET | PETERSON, DUANE/SUZANNE | 0 | 0 | $247,500.00 | 117796 | 0 |
| 3 | 08/17/2009 | QCD | Quit Claim Deed | BROWN TRUSTEE, KEITH J | BROWN, KEITH J/MARGARET M | 0 | 0 | $0.00 | 113284 | 0 |
| 4 | 05/19/1997 | QCD | Quit Claim Deed | BROWN, KEITH J/MARGARET M | BROWN FAMILY TRUST | 0 | 0 | $0.00 | 81992 | 0 |
| 5 | 06/03/1994 | SWD | Statutory Warranty Deed | HALVORSON, BRUCE D/JUDITH | BROWN, KEITH J/MARGARET M | 0 | 0 | $184,500.00 | 74316 | 0 |
| 6 | 02/25/1993 | REC | Real Estate Contract | POPE RESOURCES | HALVORSON, BRUCE/JUDITH | 0 | 0 | $25,000.00 | 70624 | 0 |
Payout Agreement
| No payout information available.. |