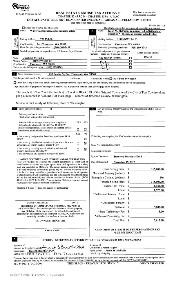
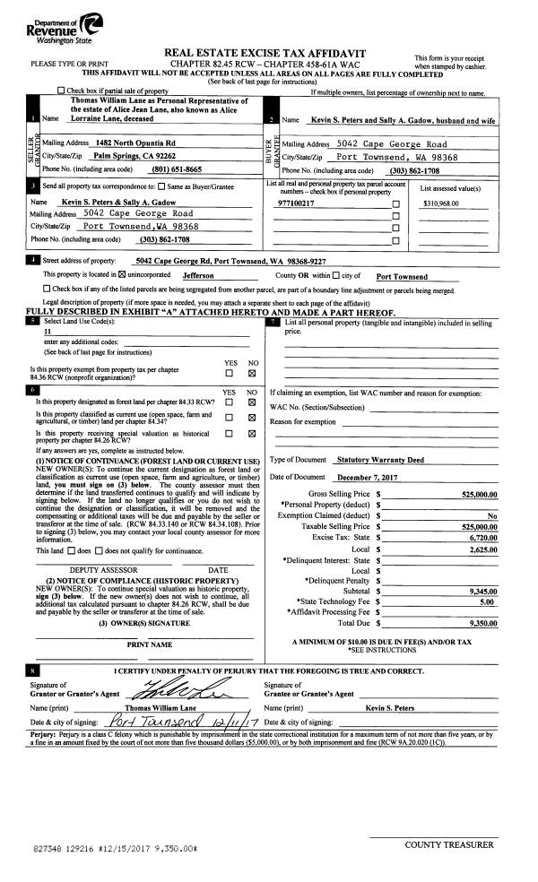
Property
Account |
| Property ID: | 34677 | Abbreviated Legal Description: | MAT'S LONG PLAT LOT G SUBJ/OPEN SPACE WITH EASE AFN#462588 |
| Parcel # / Geo ID: | 970600007 | Agent Code: | |
| Type: | Real | | |
| Tax Area: | 0111 - 1-50F1E1H2L1 | Land Use Code | 18 |
| Open Space: | N | DFL | N |
| Historic Property: | N | Remodel Property: | N |
| Multi-Family Redevelopment: | N | | |
| Township: | 30N | Section: | 7 |
| Range: | 1W |
Location |
| Address: | 15 HOPE LN PORT TOWNSEND, WA 98368 | Mapsco: | 057/096 |
| Neighborhood: | S18 T30 R1W, AUSTEN, MAGNOLIA PARK, GAGLIARDI | Map ID: | |
| Neighborhood CD: | 5335 |
Owner |
| Name: | CAPE GEORGE RECLAMATION LLC | Owner ID: | 91912 |
| Mailing Address: | 2281 HASTINGS AVE W PORT TOWNSEND, WA 98368-9639 | % Ownership: | 100.0000000000% |
| | | Exemptions: | |
Pay Tax Due
There is currently No Amount Due on this property.
Taxes and Assessment Details
Property Tax Information as of
10/24/2025
Click on "Statement Details" to expand or collapse a tax statement.
* Please enter a valid date ** Please enter a valid date *
Statement Details |
| | TOTAL: | $0.00 | $0.00 | $0.00 | $0.00 | $0.00 | $0.00 |
|
| | $0.00 | $0.00 | $0.00 | $0.00 | $0.00 | $0.00 |
Values
| (+) Improvement Homesite Value: | + | $0 | |
| (+) Improvement Non-Homesite Value: | + | $217,893 | |
| (+) Land Homesite Value: | + | $0 | |
| (+) Land Non-Homesite Value: | + | $245,691 | |
| (+) Curr Use (HS): | + | $0 | $0 |
| (+) Curr Use (NHS): | + | $0 | $0 |
| | | -------------------------- | |
| (=) Market Value: | = | $463,584 | |
| (–) Productivity Loss: | – | $0 | |
| | | -------------------------- | |
| (=) Subtotal: | = | $463,584 | |
| (+) Senior Appraised Value: | + | $0 | |
| (+) Non-Senior Appraised Value: | + | $463,584 | |
| | | -------------------------- | |
| (=) Total Appraised Value: | = | $463,584 | |
| (–) Senior Exemption Loss: | – | $0 | |
| (–) Exemption Loss: | – | $0 | |
| | | -------------------------- | |
| (=) Taxable Value: | = | $463,584 | |
Taxing Jurisdiction
| Owner: | CAPE GEORGE RECLAMATION LLC | | |
| % Ownership: | 100.0000000000% | | |
| Total Value: | N/A | | |
| Tax Area: | 0111 - 1-50F1E1H2L1 |
| CE | COUNTY CURRENT EXPENSE | N/A | N/A | N/A | N/A | | |
| CNTYDD | DEVELOPMENTAL DISABILITIES | N/A | N/A | N/A | N/A | | |
| CNTYVET | VETERANS RELIEF | N/A | N/A | N/A | N/A | | |
| MENTAL | MENTAL HEALTH | N/A | N/A | N/A | N/A | | |
| ROADS | COUNTY ROADS | N/A | N/A | N/A | N/A | | |
| ROADSCU | COUNTY ROADS TO CUR EXP | N/A | N/A | N/A | N/A | | |
| HOSP2CASH | HOSP DIST #2 GENERAL | N/A | N/A | N/A | N/A | | |
| SCH50BOND | SCHOOL DIST #50 BOND 2016 | N/A | N/A | N/A | N/A | | |
| SCH50CP | SCHOOL DIST #50 CAP PROJ | N/A | N/A | N/A | N/A | | |
| SCH50MO | SCHOOL DIST #50 EP & O | N/A | N/A | N/A | N/A | | |
| CONSERVE | CONSERVATION FUTURES | N/A | N/A | N/A | N/A | | |
| EMS1 | FIRE DIST #1 EMS | N/A | N/A | N/A | N/A | | |
| FD1 | FIRE DIST #1 GENERAL | N/A | N/A | N/A | N/A | | |
| LIB1 | LIBRARY DIST #1 GENERAL | N/A | N/A | N/A | N/A | | |
| PORTPT | PORT OF PT GENERAL | N/A | N/A | N/A | N/A | | |
| PORTPTIDD | PORT OF PT IDD 2019 | N/A | N/A | N/A | N/A | | |
| PUD1 | PUD #1 GENERAL | N/A | N/A | N/A | N/A | | |
| STATE | STATE SCHOOL PART 1 | N/A | N/A | N/A | N/A | | |
| STATE2 | STATE SCHOOL PART 2 | N/A | N/A | N/A | N/A | | |
| | Total Tax Rate: | N/A | | | | | |
| | | | | Taxes w/Current Exemptions: | N/A | | |
| | | | | Taxes w/o Exemptions: | N/A | | |
Improvement / Building
| Improvement #1: | Site Improvements | State Code: | 18 | 0.0 sqft | Value: | $101,240 |
| | Type | Description | Class CD | Sub Class CD | Year Built | Area |
| | GDET | Detached Garage | 2 | * | 2003 | 2400.0 |
| | ADDN-D | Addition (Table Depreciated) | 2 | * | 2003 | 0.0 |
| | CARPTN | Carport W/O Floor | 1 | * | 2003 | 800.0 |
| | CARPTN | Carport W/O Floor | 1 | * | 2003 | 288.0 |
| | SHED | Shed (Table Not Dep) | 5 | * | 2003 | 380.0 |
| | SHED | Shed (Table Not Dep) | 3 | * | 2003 | 180.0 |
| Improvement #2: | Residential Bldg | State Code: | 11 | 0.0 sqft | Value: | $116,653 |
| | Type | Description | Class CD | Sub Class CD | Year Built | Area |
| | ADDN-D | Addition (Table Depreciated) | 3 | 1S | 2018 | 1085.0 |
| | ADDN-D | Addition (Table Depreciated) | 3 | 1S | 2024 | 720.0 |
Sketch
| No sketches available for this property. |
Property Image
Land
| 1 | 5335-1373S | Terr/No View Sites Good Topo 1+/- Acre | 1.0000 | 43560.00 | 0.00 | 0.00 | 1.00 | $165,000 | $0 |
| 2 | 5335-1671A | No/Terr View 6-15 Acres in size | 5.2400 | 228254.40 | 0.00 | 0.00 | 0.00 | $48,994 | $0 |
| 3 | 5335-1671A | No/Terr View 6-15 Acres in size | 3.3900 | 147668.40 | 0.00 | 0.00 | 0.00 | $31,697 | $0 |
Roll Value History
| 2025 | N/A | N/A | N/A | N/A | N/A |
| 2024 | $208,815 | $245,691 | $0 | $454,506 | $454,506 |
| 2023 | $96,253 | $224,023 | $0 | $320,276 | $320,276 |
| 2022 | $87,503 | $194,725 | $0 | $282,228 | $282,228 |
| 2021 | $66,290 | $150,346 | $0 | $216,636 | $216,636 |
Deed and Sales History
| 1 | 05/19/2014 | QCD | Quit Claim Deed | TIM THOMAS JR | CAPE GEORGE RECLAMATION LLC | | | | 121200 | |
| 2 | 06/29/2009 | QCD | Quit Claim Deed | WIDELL, GERALDINE | WIDELL, KEVIN | | | $0.00 | 113054 | 0 |
| 3 | 06/29/2009 | SWD | Statutory Warranty Deed | LINDSEY, JUDY E | THOMAS, TIM JR/WIDELL, KEVIN | | | $460,000.00 | 113053 | 0 |
| 4 | 06/25/2009 | QCD | Quit Claim Deed | THOMAS, DAWN | THOMAS, TIM | | | $0.00 | 113055 | 0 |
| 5 | 06/16/2008 | QCD | Quit Claim Deed | LINDSEY, JERRY/JUDY | LINDSEY LIVING TRUST | | | $0.00 | 111576 | 0 |
| 6 | 09/29/1999 | QCD | Quit Claim Deed | PIERCE, DANIEL & SARAH | LINDSEY, JERRY R & JUDY | 0 | 0 | $0.00 | 87998 | 0 |
Payout Agreement
| No payout information available.. |