Property
Account |
| Property ID: | 34689 | Abbreviated Legal Description: | MATS VIEW MEADOWS LOT 9(PARCEL D V28/P60) BND TGTH BY BLA#103016 |
| Parcel # / Geo ID: | 970800009 | Agent Code: | |
| Type: | Real | | |
| Tax Area: | 0213 - 1-49F1E1H2L1 | Land Use Code | 11 |
| Open Space: | N | DFL | N |
| Historic Property: | N | Remodel Property: | N |
| Multi-Family Redevelopment: | N | | |
| Township: | 28N | Section: | 5 |
| Range: | 1E |
Location |
| Address: | 120 MARIANNE MEADOW PORT LUDLOW, WA 98365 | Mapsco: | 067/009 |
| Neighborhood: | S4&5 T28N R1E INC MATS VIEW TERRACE, OLYMPUS BCH & HOLTH SP | Map ID: | |
| Neighborhood CD: | 3312 |
Owner |
| Name: | NATHAN & SUSAN WHITMIRE | Owner ID: | 30368 |
| Mailing Address: | 120 MARIANNE MEADOW PORT LUDLOW, WA 98365 | % Ownership: | 100.0000000000% |
| | | Exemptions: | |
Pay Tax Due
There is currently No Amount Due on this property.
Taxes and Assessment Details
Property Tax Information as of
10/24/2025
Click on "Statement Details" to expand or collapse a tax statement.
* Please enter a valid date ** Please enter a valid date *
Statement Details |
| | TOTAL: | $0.00 | $0.00 | $0.00 | $0.00 | $0.00 | $0.00 |
|
| | $0.00 | $0.00 | $0.00 | $0.00 | $0.00 | $0.00 |
Values
| (+) Improvement Homesite Value: | + | $0 | |
| (+) Improvement Non-Homesite Value: | + | $657,886 | |
| (+) Land Homesite Value: | + | $0 | |
| (+) Land Non-Homesite Value: | + | $176,813 | |
| (+) Curr Use (HS): | + | $0 | $0 |
| (+) Curr Use (NHS): | + | $0 | $0 |
| | | -------------------------- | |
| (=) Market Value: | = | $834,699 | |
| (–) Productivity Loss: | – | $0 | |
| | | -------------------------- | |
| (=) Subtotal: | = | $834,699 | |
| (+) Senior Appraised Value: | + | $0 | |
| (+) Non-Senior Appraised Value: | + | $834,699 | |
| | | -------------------------- | |
| (=) Total Appraised Value: | = | $834,699 | |
| (–) Senior Exemption Loss: | – | $0 | |
| (–) Exemption Loss: | – | $0 | |
| | | -------------------------- | |
| (=) Taxable Value: | = | $834,699 | |
Taxing Jurisdiction
| Owner: | NATHAN & SUSAN WHITMIRE | | |
| % Ownership: | 100.0000000000% | | |
| Total Value: | N/A | | |
| Tax Area: | 0213 - 1-49F1E1H2L1 |
| CE | COUNTY CURRENT EXPENSE | N/A | N/A | N/A | N/A | | |
| CNTYDD | DEVELOPMENTAL DISABILITIES | N/A | N/A | N/A | N/A | | |
| CNTYVET | VETERANS RELIEF | N/A | N/A | N/A | N/A | | |
| MENTAL | MENTAL HEALTH | N/A | N/A | N/A | N/A | | |
| ROADS | COUNTY ROADS | N/A | N/A | N/A | N/A | | |
| ROADSCU | COUNTY ROADS TO CUR EXP | N/A | N/A | N/A | N/A | | |
| HOSP2CASH | HOSP DIST #2 GENERAL | N/A | N/A | N/A | N/A | | |
| SCH49CP | SCHOOL DIST #49 CAP PROJ | N/A | N/A | N/A | N/A | | |
| SCH49MO | SCHOOL DIST #49 EP & O | N/A | N/A | N/A | N/A | | |
| CONSERVE | CONSERVATION FUTURES | N/A | N/A | N/A | N/A | | |
| EMS1 | FIRE DIST #1 EMS | N/A | N/A | N/A | N/A | | |
| FD1 | FIRE DIST #1 GENERAL | N/A | N/A | N/A | N/A | | |
| LIB1 | LIBRARY DIST #1 GENERAL | N/A | N/A | N/A | N/A | | |
| PORTPT | PORT OF PT GENERAL | N/A | N/A | N/A | N/A | | |
| PORTPTIDD | PORT OF PT IDD 2019 | N/A | N/A | N/A | N/A | | |
| PUD1 | PUD #1 GENERAL | N/A | N/A | N/A | N/A | | |
| STATE | STATE SCHOOL PART 1 | N/A | N/A | N/A | N/A | | |
| STATE2 | STATE SCHOOL PART 2 | N/A | N/A | N/A | N/A | | |
| | Total Tax Rate: | N/A | | | | | |
| | | | | Taxes w/Current Exemptions: | N/A | | |
| | | | | Taxes w/o Exemptions: | N/A | | |
Improvement / Building
| Improvement #1: | Residential Bldg | State Code: | 11 | 2304.0 sqft | Value: | $657,886 |
| Bathrooms (#): | 2 (FULL) | Bedrooms (#): | 3 | | Exterior Wall: | SI/ST | Foundation: | CONPR | | Roof Cover: | COMP |   |   |
|
| | Type | Description | Class CD | Sub Class CD | Year Built | Area |
| | MA | Main Area | 5- | 1S | 2021 | 2304.0 |
| | GATT | House Attached Garage | 4 | 1S | 2021 | 1098.0 |
| | HWPOR | House Wood Porch | 4 | 1S | 2021 | 228.0 |
| | HDECK | House Deck | 4 | 1S | 2021 | 288.0 |
| | HCPOR | House Concrete Porch | 4 | 1S | 2021 | 220.0 |
| | CONCD | Concrete Drive | 3 | 1S | 2021 | 500.0 |
Sketch
Property Image
Land
| 1 | 3312-1143L | Good to Excel Views Mats View Meadows / Terrace | 1.0000 | 43560.00 | 0.00 | 0.00 | 1.00 | $176,813 | $0 |
Roll Value History
| 2025 | N/A | N/A | N/A | N/A | N/A |
| 2024 | $630,474 | $169,125 | $0 | $799,599 | $799,599 |
| 2023 | $603,062 | $148,750 | $0 | $751,812 | $751,812 |
| 2022 | $575,650 | $143,750 | $0 | $719,400 | $719,400 |
| 2021 | $148,549 | $131,250 | $0 | $279,799 | $279,799 |
Deed and Sales History
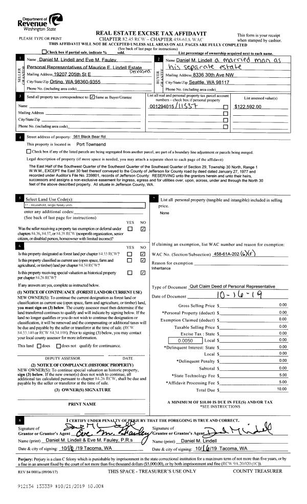
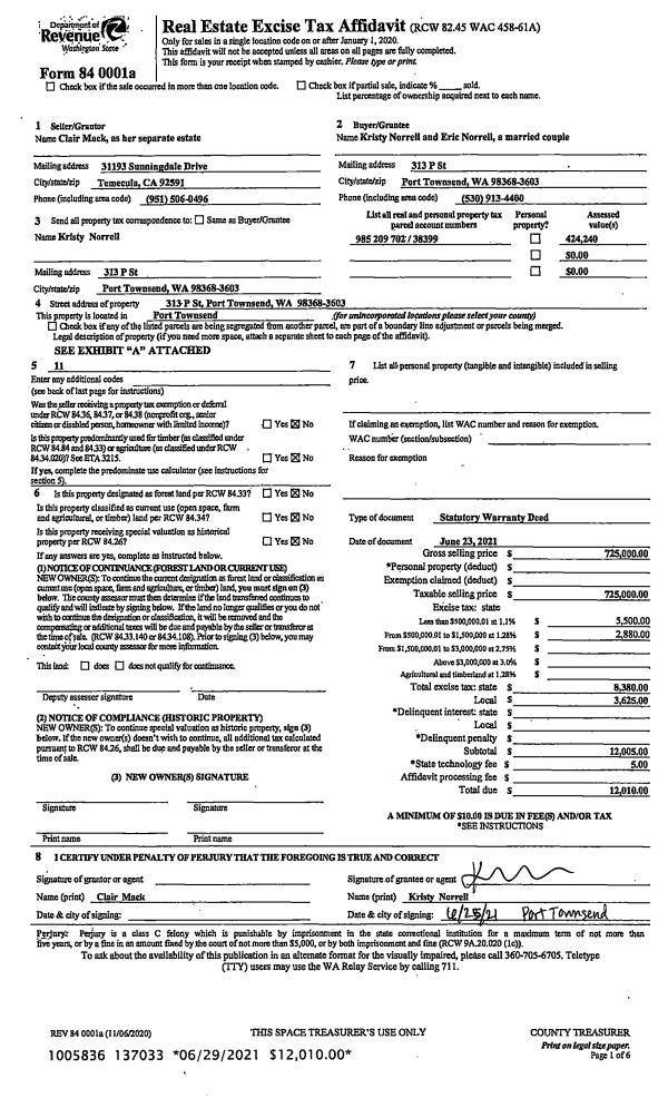
| 1 | 07/29/2020 | SWD | Statutory Warranty Deed | JOHN T BASSETT TRUSTEE | NATHAN & SUSAN WHITMIRE | | | $110,000.00 | 134792 | |
| 2 | 06/20/2005 | SWD | Statutory Warranty Deed | JEFFCO JOINT VENTURE LLC, | BASSETT, JOHN & SUSAN/TRUSTEE | | | $126,500.00 | 103923 | 0 |
Payout Agreement
| No payout information available.. |