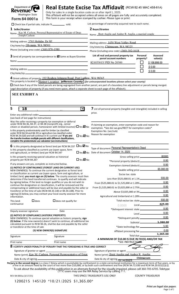
Property
Account |
| Property ID: | 34788 | Abbreviated Legal Description: | MARSHALL ADDITION BLK 3 LOT 16 |
| Parcel # / Geo ID: | 971100317 | Agent Code: | |
| Type: | Real | | |
| Tax Area: | 0441 - 1-46F4E4H2C1L1P2 | Land Use Code | 91 |
| Open Space: | N | DFL | N |
| Historic Property: | N | Remodel Property: | N |
| Multi-Family Redevelopment: | N | | |
| Township: | 25N | Section: | 31 |
| Range: | 2W |
Location |
| Address: | 41 CEDAR PL BRINNON, WA 98320 | Mapsco: | 010/023 |
| Neighborhood: | MARSHALL & WILLIAMS ADDITON | Map ID: | |
| Neighborhood CD: | 1295 |
Owner |
| Name: | BRIAN & ANDREA FISHER | Owner ID: | 110364 |
| Mailing Address: | 3810 VICTORIA LN CT PUYALLUP, WA 98372-5023 | % Ownership: | 100.0000000000% |
| | | Exemptions: | |
Pay Tax Due
There is currently No Amount Due on this property.
Taxes and Assessment Details
Property Tax Information as of
10/24/2025
Click on "Statement Details" to expand or collapse a tax statement.
* Please enter a valid date ** Please enter a valid date *
Statement Details |
| | TOTAL: | $0.00 | $0.00 | $0.00 | $0.00 | $0.00 | $0.00 |
|
| | $0.00 | $0.00 | $0.00 | $0.00 | $0.00 | $0.00 |
Values
| (+) Improvement Homesite Value: | + | $0 | |
| (+) Improvement Non-Homesite Value: | + | $0 | |
| (+) Land Homesite Value: | + | $0 | |
| (+) Land Non-Homesite Value: | + | $77,625 | |
| (+) Curr Use (HS): | + | $0 | $0 |
| (+) Curr Use (NHS): | + | $0 | $0 |
| | | -------------------------- | |
| (=) Market Value: | = | $77,625 | |
| (–) Productivity Loss: | – | $0 | |
| | | -------------------------- | |
| (=) Subtotal: | = | $77,625 | |
| (+) Senior Appraised Value: | + | $0 | |
| (+) Non-Senior Appraised Value: | + | $77,625 | |
| | | -------------------------- | |
| (=) Total Appraised Value: | = | $77,625 | |
| (–) Senior Exemption Loss: | – | $0 | |
| (–) Exemption Loss: | – | $0 | |
| | | -------------------------- | |
| (=) Taxable Value: | = | $77,625 | |
Taxing Jurisdiction
| Owner: | BRIAN & ANDREA FISHER | | |
| % Ownership: | 100.0000000000% | | |
| Total Value: | N/A | | |
| Tax Area: | 0441 - 1-46F4E4H2C1L1P2 |
| CE | COUNTY CURRENT EXPENSE | N/A | N/A | N/A | N/A | | |
| CNTYDD | DEVELOPMENTAL DISABILITIES | N/A | N/A | N/A | N/A | | |
| CNTYVET | VETERANS RELIEF | N/A | N/A | N/A | N/A | | |
| MENTAL | MENTAL HEALTH | N/A | N/A | N/A | N/A | | |
| ROADS | COUNTY ROADS | N/A | N/A | N/A | N/A | | |
| ROADSCU | COUNTY ROADS TO CUR EXP | N/A | N/A | N/A | N/A | | |
| HOSP2CASH | HOSP DIST #2 GENERAL | N/A | N/A | N/A | N/A | | |
| SCH46MO | SCHOOL DIST #46 EP & O | N/A | N/A | N/A | N/A | | |
| CEM1 | CEMETERY DIST #1 GENERAL | N/A | N/A | N/A | N/A | | |
| CONSERVE | CONSERVATION FUTURES | N/A | N/A | N/A | N/A | | |
| EMS4 | FIRE DIST #4 EMS | N/A | N/A | N/A | N/A | | |
| FD4 | FIRE DIST #4 GENERAL | N/A | N/A | N/A | N/A | | |
| FD4BOND | FIRE DIST #4 BOND 2019 | N/A | N/A | N/A | N/A | | |
| LIB1 | LIBRARY DIST #1 GENERAL | N/A | N/A | N/A | N/A | | |
| PORTPT | PORT OF PT GENERAL | N/A | N/A | N/A | N/A | | |
| PORTPTIDD | PORT OF PT IDD 2019 | N/A | N/A | N/A | N/A | | |
| PUD1 | PUD #1 GENERAL | N/A | N/A | N/A | N/A | | |
| STATE | STATE SCHOOL PART 1 | N/A | N/A | N/A | N/A | | |
| STATE2 | STATE SCHOOL PART 2 | N/A | N/A | N/A | N/A | | |
| | Total Tax Rate: | N/A | | | | | |
| | | | | Taxes w/Current Exemptions: | N/A | | |
| | | | | Taxes w/o Exemptions: | N/A | | |
Improvement / Building
Sketch
| No sketches available for this property. |
Property Image
Land
| 1 | 1295-1145L | Good to pos. Good View Lot | 0.0000 | 0.00 | 0.00 | 0.00 | 1.00 | $77,625 | $0 |
Roll Value History
| 2025 | N/A | N/A | N/A | N/A | N/A |
| 2024 | $0 | $70,875 | $0 | $70,875 | $70,875 |
| 2023 | $0 | $35,000 | $0 | $35,000 | $35,000 |
| 2022 | $0 | $35,000 | $0 | $35,000 | $35,000 |
| 2021 | $0 | $32,400 | $0 | $32,400 | $32,400 |
Deed and Sales History
| 1 | 02/09/2024 | SWD | Statutory Warranty Deed | MEGHAN L DODD | BRIAN & ANDREA FISHER | | | $90,000.00 | 142212 | |
| 2 | 09/14/2020 | SWD | Statutory Warranty Deed | ALLEN & NICOLA SIMMONS | MEGHAN L DODD | | | $50,000.00 | 135147 | |
| 3 | 05/25/2018 | SWD | Statutory Warranty Deed | KEVIN R & SANDY L ISDELL | ALLEN & NICOLA SIMMONS | | | $13,000.00 | 130221 | |
| 4 | 08/06/2004 | SWD | Statutory Warranty Deed | WOLT, MARY & DEPAQUALE ET | ISDELL, KEVIN R/SANDY | 0 | 0 | $20,000.00 | 101172 | 0 |
Payout Agreement
| No payout information available.. |