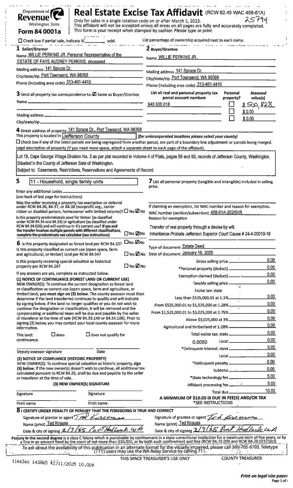
Property
Account |
| Property ID: | 34873 | Abbreviated Legal Description: | MONOGRAM ADDITION BLK 4 LOTS 5 & 6 W/ALL VAC LOGAN ST ADJ SUBJ/20' EASE |
| Parcel # / Geo ID: | 972600401 | Agent Code: | |
| Type: | Real | | |
| Tax Area: | 0110 - C-50F1E1H2 | Land Use Code | 11 |
| Open Space: | N | DFL | N |
| Historic Property: | N | Remodel Property: | N |
| Multi-Family Redevelopment: | N | | |
| Township: | 30N | Section: | 3 |
| Range: | 1W |
Location |
| Address: | 1920 31ST ST PORT TOWNSEND, WA 98368 | Mapsco: | 080/075 |
| Neighborhood: | MONOGRAM & WHITTLESEY PLATS | Map ID: | |
| Neighborhood CD: | 6072 |
Owner |
| Name: | STEVEN Z KENNEL | Owner ID: | 19722 |
| Mailing Address: | N LEIGH KENNEL PO BOX 1861 PORT TOWNSEND, WA 98368-0058 | % Ownership: | 100.0000000000% |
| | | Exemptions: | |
Pay Tax Due
There is currently No Amount Due on this property.
Taxes and Assessment Details
Property Tax Information as of
10/24/2025
Click on "Statement Details" to expand or collapse a tax statement.
* Please enter a valid date ** Please enter a valid date *
Statement Details |
| | TOTAL: | $0.00 | $0.00 | $0.00 | $0.00 | $0.00 | $0.00 |
|
| | $0.00 | $0.00 | $0.00 | $0.00 | $0.00 | $0.00 |
Values
| (+) Improvement Homesite Value: | + | $0 | |
| (+) Improvement Non-Homesite Value: | + | $386,957 | |
| (+) Land Homesite Value: | + | $0 | |
| (+) Land Non-Homesite Value: | + | $191,200 | |
| (+) Curr Use (HS): | + | $0 | $0 |
| (+) Curr Use (NHS): | + | $0 | $0 |
| | | -------------------------- | |
| (=) Market Value: | = | $578,157 | |
| (–) Productivity Loss: | – | $0 | |
| | | -------------------------- | |
| (=) Subtotal: | = | $578,157 | |
| (+) Senior Appraised Value: | + | $0 | |
| (+) Non-Senior Appraised Value: | + | $578,157 | |
| | | -------------------------- | |
| (=) Total Appraised Value: | = | $578,157 | |
| (–) Senior Exemption Loss: | – | $0 | |
| (–) Exemption Loss: | – | $0 | |
| | | -------------------------- | |
| (=) Taxable Value: | = | $578,157 | |
Taxing Jurisdiction
| Owner: | STEVEN Z KENNEL | | |
| % Ownership: | 100.0000000000% | | |
| Total Value: | N/A | | |
| Tax Area: | 0110 - C-50F1E1H2 |
| CE | COUNTY CURRENT EXPENSE | N/A | N/A | N/A | N/A | | |
| CNTYDD | DEVELOPMENTAL DISABILITIES | N/A | N/A | N/A | N/A | | |
| CNTYVET | VETERANS RELIEF | N/A | N/A | N/A | N/A | | |
| MENTAL | MENTAL HEALTH | N/A | N/A | N/A | N/A | | |
| PTGEN | CITY OF PT GENERAL | N/A | N/A | N/A | N/A | | |
| PTLLL | CITY OF PT - LIBRARY LID LIFT | N/A | N/A | N/A | N/A | | |
| PTMVBOND | CITY OF PT MV BOND | N/A | N/A | N/A | N/A | | |
| HOSP2CASH | HOSP DIST #2 GENERAL | N/A | N/A | N/A | N/A | | |
| SCH50BOND | SCHOOL DIST #50 BOND 2016 | N/A | N/A | N/A | N/A | | |
| SCH50CP | SCHOOL DIST #50 CAP PROJ | N/A | N/A | N/A | N/A | | |
| SCH50MO | SCHOOL DIST #50 EP & O | N/A | N/A | N/A | N/A | | |
| CONSERVE | CONSERVATION FUTURES | N/A | N/A | N/A | N/A | | |
| EMS1 | FIRE DIST #1 EMS | N/A | N/A | N/A | N/A | | |
| FD1 | FIRE DIST #1 GENERAL | N/A | N/A | N/A | N/A | | |
| PORTPT | PORT OF PT GENERAL | N/A | N/A | N/A | N/A | | |
| PORTPTIDD | PORT OF PT IDD 2019 | N/A | N/A | N/A | N/A | | |
| PUD1 | PUD #1 GENERAL | N/A | N/A | N/A | N/A | | |
| STATE | STATE SCHOOL PART 1 | N/A | N/A | N/A | N/A | | |
| STATE2 | STATE SCHOOL PART 2 | N/A | N/A | N/A | N/A | | |
| | Total Tax Rate: | N/A | | | | | |
| | | | | Taxes w/Current Exemptions: | N/A | | |
| | | | | Taxes w/o Exemptions: | N/A | | |
Improvement / Building
| Improvement #1: | Residential Bldg | State Code: | 11 | 1216.0 sqft | Value: | $386,957 |
| Bathrooms (#): | 1 (FULL) | Bedrooms (#): | 1 | | Exterior Wall: | SI/ST | Floor Construction: | CONCR | | Foundation: | CONPR | Heating/Cooling: | ELBB | | Roof Cover: | COMP |   |   |
|
| | Type | Description | Class CD | Sub Class CD | Year Built | Area |
| | MA | Main Area | 4 | 2S | 2001 | 384.0 |
| | GBLTIN | Builtin Garage | 4 | 2S | 2001 | 384.0 |
| | MA2 | Second Floor Main Area | 4 | 2S | 2001 | 832.0 |
| | HDECK | House Deck | 4 | * | 2014 | 100.0 |
| | ADDN | Addition (Table Not Dep) | 4 | 1S | 2001 | 587.0 |
| | SHED | Shed (Table Not Dep) | 5 | * | 2012 | 120.0 |
| | CONCD | Concrete Drive | 4 | * | 2001 | 1000.0 |
Sketch
Property Image
Land
| 1 | 6072-1175L | Standard Lot (Fair) | 0.0000 | 0.00 | 0.00 | 0.00 | 1.00 | $110,000 | $0 |
| 2 | 6072-1185L | Standard Lot (No View) | 0.0000 | 0.00 | 0.00 | 0.00 | 1.00 | $81,200 | $0 |
Roll Value History
| 2025 | N/A | N/A | N/A | N/A | N/A |
| 2024 | $285,328 | $175,980 | $0 | $461,308 | $461,308 |
| 2023 | $272,922 | $162,600 | $0 | $435,522 | $435,522 |
| 2022 | $272,922 | $142,400 | $0 | $415,322 | $415,322 |
| 2021 | $228,196 | $124,945 | $0 | $353,141 | $353,141 |
Deed and Sales History
| 1 | 04/09/2009 | SWD | Statutory Warranty Deed | JUBIE, ALFRED/KATHLEEN | KENNEL, STEVEN/N. LEIGH | | | $210,000.00 | 112744 | 0 |
| 2 | 09/17/2001 | QCD | Quit Claim Deed | JUBJE, ALFRED I CONST INC | JUBIE, ALFRED/KATHLEEN | 0 | 0 | $0.00 | 93073 | 0 |
| 3 | 10/03/2000 | SWD | Statutory Warranty Deed | DEERING, DAVID R | JUBIE, ALFRED I CONSTRUCTION | 0 | 0 | $17,000.00 | 90736 | 0 |
| 4 | 02/28/1997 | QCD | Quit Claim Deed | DEERING, JOAN L | DEERING, DAVID R | 0 | 0 | $0.00 | 81545 | 0 |
| 5 | 08/30/1993 | REC | Real Estate Contract | ADDIE, J WALTER | DEERING, DAVID R/JOAN L | 0 | 0 | $0.00 | 72124 | 0 |
Payout Agreement
| No payout information available.. |