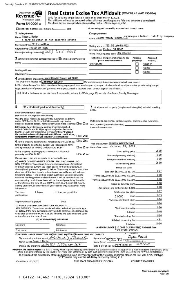
Property
Account |
| Property ID: | 34894 | Abbreviated Legal Description: | MONTANA ADDITION BLK 2 LOTS 1-6(LS W25'OF 5&6 EA) |
| Parcel # / Geo ID: | 972900201 | Agent Code: | |
| Type: | Real | | |
| Tax Area: | 0110 - C-50F1E1H2 | Land Use Code | 11 |
| Open Space: | N | DFL | N |
| Historic Property: | N | Remodel Property: | N |
| Multi-Family Redevelopment: | N | | |
| Township: | 31N | Section: | 34 |
| Range: | 1W |
Location |
| Address: | 916 49TH ST PORT TOWNSEND, WA 98368 | Mapsco: | 081/003 |
| Neighborhood: | MONTANA ADDITION | Map ID: | |
| Neighborhood CD: | 6030 |
Owner |
| Name: | EUGENE YOCUM | Owner ID: | 109156 |
| Mailing Address: | MARK YOCUM PO BOX 503 PORT TOWNSEND, WA 98368-0503 | % Ownership: | 100.0000000000% |
| | | Exemptions: | |
Pay Tax Due
There is currently No Amount Due on this property.
Taxes and Assessment Details
Property Tax Information as of
10/24/2025
Click on "Statement Details" to expand or collapse a tax statement.
* Please enter a valid date ** Please enter a valid date *
Statement Details |
| | TOTAL: | $0.00 | $0.00 | $0.00 | $0.00 | $0.00 | $0.00 |
|
| | $0.00 | $0.00 | $0.00 | $0.00 | $0.00 | $0.00 |
Values
| (+) Improvement Homesite Value: | + | $168,380 | |
| (+) Improvement Non-Homesite Value: | + | $25,326 | |
| (+) Land Homesite Value: | + | $267,225 | |
| (+) Land Non-Homesite Value: | + | $0 | |
| (+) Curr Use (HS): | + | $0 | $0 |
| (+) Curr Use (NHS): | + | $0 | $0 |
| | | -------------------------- | |
| (=) Market Value: | = | $460,931 | |
| (–) Productivity Loss: | – | $0 | |
| | | -------------------------- | |
| (=) Subtotal: | = | $460,931 | |
| (+) Senior Appraised Value: | + | $0 | |
| (+) Non-Senior Appraised Value: | + | $460,931 | |
| | | -------------------------- | |
| (=) Total Appraised Value: | = | $460,931 | |
| (–) Senior Exemption Loss: | – | $0 | |
| (–) Exemption Loss: | – | $0 | |
| | | -------------------------- | |
| (=) Taxable Value: | = | $460,931 | |
Taxing Jurisdiction
| Owner: | EUGENE YOCUM | | |
| % Ownership: | 100.0000000000% | | |
| Total Value: | N/A | | |
| Tax Area: | 0110 - C-50F1E1H2 |
| CE | COUNTY CURRENT EXPENSE | N/A | N/A | N/A | N/A | | |
| CNTYDD | DEVELOPMENTAL DISABILITIES | N/A | N/A | N/A | N/A | | |
| CNTYVET | VETERANS RELIEF | N/A | N/A | N/A | N/A | | |
| MENTAL | MENTAL HEALTH | N/A | N/A | N/A | N/A | | |
| PTGEN | CITY OF PT GENERAL | N/A | N/A | N/A | N/A | | |
| PTLLL | CITY OF PT - LIBRARY LID LIFT | N/A | N/A | N/A | N/A | | |
| PTMVBOND | CITY OF PT MV BOND | N/A | N/A | N/A | N/A | | |
| HOSP2CASH | HOSP DIST #2 GENERAL | N/A | N/A | N/A | N/A | | |
| SCH50BOND | SCHOOL DIST #50 BOND 2016 | N/A | N/A | N/A | N/A | | |
| SCH50CP | SCHOOL DIST #50 CAP PROJ | N/A | N/A | N/A | N/A | | |
| SCH50MO | SCHOOL DIST #50 EP & O | N/A | N/A | N/A | N/A | | |
| CONSERVE | CONSERVATION FUTURES | N/A | N/A | N/A | N/A | | |
| EMS1 | FIRE DIST #1 EMS | N/A | N/A | N/A | N/A | | |
| FD1 | FIRE DIST #1 GENERAL | N/A | N/A | N/A | N/A | | |
| PORTPT | PORT OF PT GENERAL | N/A | N/A | N/A | N/A | | |
| PORTPTIDD | PORT OF PT IDD 2019 | N/A | N/A | N/A | N/A | | |
| PUD1 | PUD #1 GENERAL | N/A | N/A | N/A | N/A | | |
| STATE | STATE SCHOOL PART 1 | N/A | N/A | N/A | N/A | | |
| STATE2 | STATE SCHOOL PART 2 | N/A | N/A | N/A | N/A | | |
| | Total Tax Rate: | N/A | | | | | |
| | | | | Taxes w/Current Exemptions: | N/A | | |
| | | | | Taxes w/o Exemptions: | N/A | | |
Improvement / Building
| Improvement #1: | Residential Bldg | State Code: | 11 | 780.0 sqft | Value: | $168,380 |
| Bathrooms (#): | 1 (FULL) | Bedrooms (#): | 2 | | Exterior Wall: | SI/ST | Fireplace: | WD ST-GOOD | | Floor Construction: | FRAME | Foundation: | CONPR | | Heating/Cooling: | F/A | Roof Cover: | COMP |
|
| | Type | Description | Class CD | Sub Class CD | Year Built | Area |
| | MA | Main Area | 3 | 1S | 1943 | 780.0 |
| | HCPOR | House Concrete Porch | 3 | * | 1943 | 96.0 |
| | HENCL | House Enclosure | 3 | * | 1943 | 144.0 |
| | GATT | House Attached Garage | 3 | 1S | 1943 | 240.0 |
| | SHED | Shed (Table Not Dep) | 2 | * | 1943 | 80.0 |
| Improvement #2: | Residential Bldg | State Code: | 11 | 0.0 sqft | Value: | $25,326 |
| | Type | Description | Class CD | Sub Class CD | Year Built | Area |
| | ADDN-D | Addition (Table Depreciated) | 4 | ADU | 2020 | 144.0 |
| | HDECK | House Deck | 3 | ADU | 2020 | 179.0 |
Sketch
Property Image
Land
| 1 | 6030-1175L | Terr View/Good Qual Lots | 0.0000 | 0.00 | 0.00 | 0.00 | 1.00 | $130,000 | $0 |
| 2 | 6030-1185L | No View Lots | 0.0000 | 0.00 | 0.00 | 0.00 | 1.00 | $55,000 | $0 |
| 3 | 6030-1179L | Terr View XS Lots Limited Access | 0.0000 | 0.00 | 0.00 | 0.00 | 1.00 | $82,225 | $0 |
Roll Value History
| 2025 | N/A | N/A | N/A | N/A | N/A |
| 2024 | $123,807 | $269,225 | $0 | $393,032 | $393,032 |
| 2023 | $118,424 | $239,750 | $0 | $358,174 | $358,174 |
| 2022 | $118,424 | $234,750 | $0 | $353,174 | $212,712 |
| 2021 | $97,952 | $200,473 | $0 | $298,425 | $212,712 |
Deed and Sales History
| 1 | 06/16/2023 | SWD | Statutory Warranty Deed | KRISTINA J RAY | EUGENE YOCUM | | | $390,000.00 | 141113 | |
| 2 | 06/26/2023 | LOP | Lack of Probate | GLENN A OMAN | KRISTINA J RAY | | | | 0 | 661011 |
| 3 | 10/15/2004 | SWD | Statutory Warranty Deed | MATHEWS, JANICE F ESTATE | OMAN, GLENN A | 0 | 0 | $80,000.00 | 101732 | 0 |
| 4 | 06/08/1995 | BLA | Boundary Line Adjustment | MATHEWS, JANICE F | MATHEWS, JANICE F | 0 | 0 | $0.00 | 77084 | 0 |
| 5 | 06/13/1993 | QCD | Quit Claim Deed | CARROLL, HJ | MATTHEWS, JANICE | 0 | 0 | $0.00 | 101588 | 0 |
Payout Agreement
| No payout information available.. |