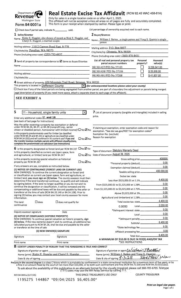
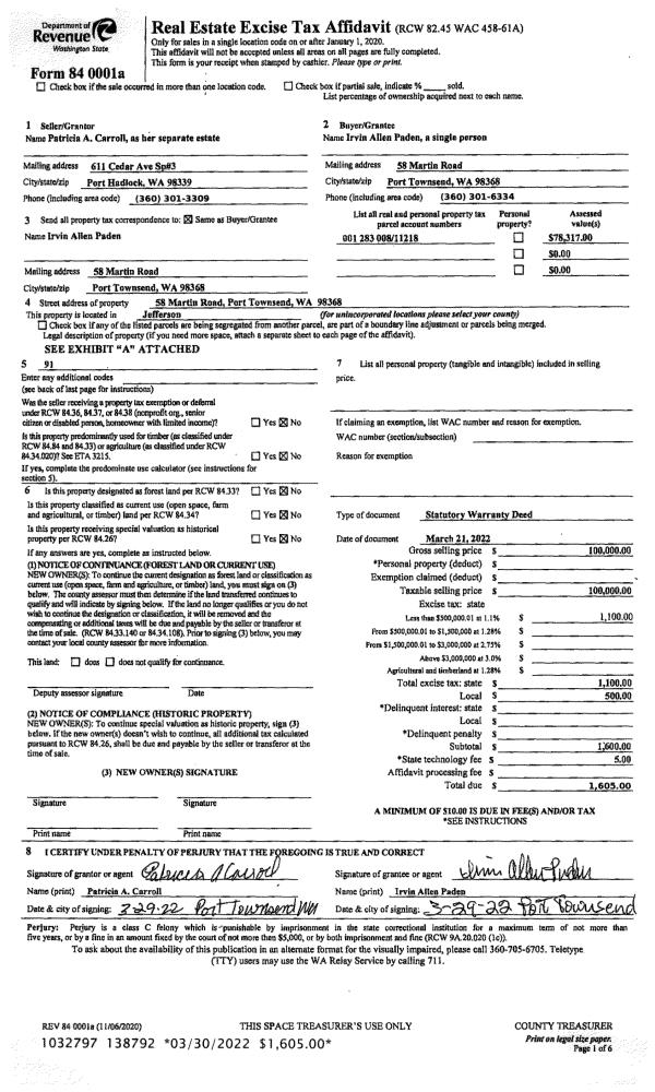
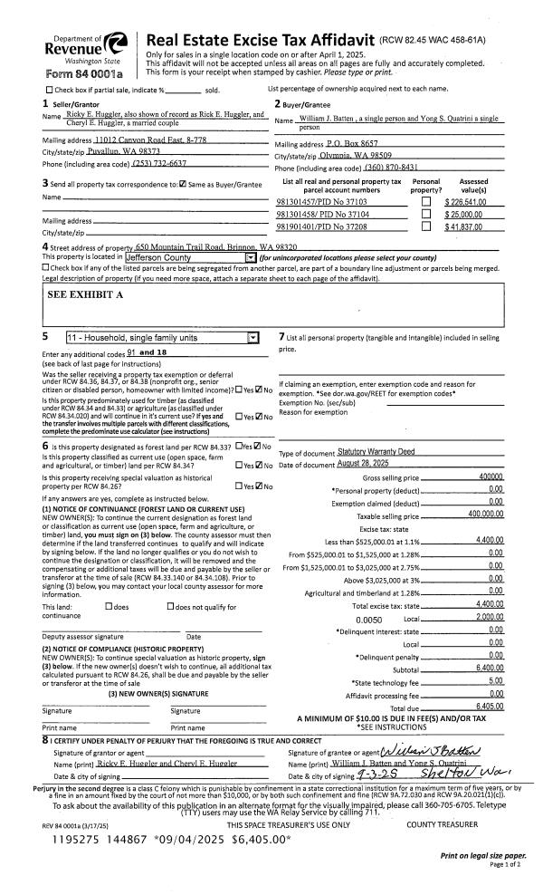
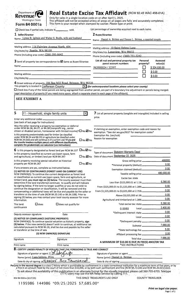
Property
Account |
| Property ID: | 34928 | Abbreviated Legal Description: | MONTANA ADDITION BLK 15 LOTS 1 TO 8 SUBJ TO REST COVT AFN#437935 |
| Parcel # / Geo ID: | 972901501 | Agent Code: | |
| Type: | Real | | |
| Tax Area: | 0110 - C-50F1E1H2 | Land Use Code | 11 |
| Open Space: | N | DFL | N |
| Historic Property: | N | Remodel Property: | N |
| Multi-Family Redevelopment: | N | | |
| Township: | 31N | Section: | 34 |
| Range: | 1W |
Location |
| Address: | 1020 51ST ST PORT TOWNSEND, WA 98368 | Mapsco: | 081/058 |
| Neighborhood: | MONTANA ADDITION | Map ID: | |
| Neighborhood CD: | 6030 |
Owner |
| Name: | ANNE E WARING | Owner ID: | 29919 |
| Mailing Address: | SEAN W KOOMEN JTWROS 1020 51ST ST PORT TOWNSEND, WA 98368 | % Ownership: | 100.0000000000% |
| | | Exemptions: | |
Pay Tax Due
There is currently No Amount Due on this property.
Taxes and Assessment Details
Property Tax Information as of
10/24/2025
Click on "Statement Details" to expand or collapse a tax statement.
* Please enter a valid date ** Please enter a valid date *
Statement Details |
| | TOTAL: | $0.00 | $0.00 | $0.00 | $0.00 | $0.00 | $0.00 |
|
| | $0.00 | $0.00 | $0.00 | $0.00 | $0.00 | $0.00 |
Values
| (+) Improvement Homesite Value: | + | $0 | |
| (+) Improvement Non-Homesite Value: | + | $617,640 | |
| (+) Land Homesite Value: | + | $0 | |
| (+) Land Non-Homesite Value: | + | $237,450 | |
| (+) Curr Use (HS): | + | $0 | $0 |
| (+) Curr Use (NHS): | + | $0 | $0 |
| | | -------------------------- | |
| (=) Market Value: | = | $855,090 | |
| (–) Productivity Loss: | – | $0 | |
| | | -------------------------- | |
| (=) Subtotal: | = | $855,090 | |
| (+) Senior Appraised Value: | + | $0 | |
| (+) Non-Senior Appraised Value: | + | $855,090 | |
| | | -------------------------- | |
| (=) Total Appraised Value: | = | $855,090 | |
| (–) Senior Exemption Loss: | – | $0 | |
| (–) Exemption Loss: | – | $0 | |
| | | -------------------------- | |
| (=) Taxable Value: | = | $855,090 | |
Taxing Jurisdiction
| Owner: | ANNE E WARING | | |
| % Ownership: | 100.0000000000% | | |
| Total Value: | N/A | | |
| Tax Area: | 0110 - C-50F1E1H2 |
| CE | COUNTY CURRENT EXPENSE | N/A | N/A | N/A | N/A | | |
| CNTYDD | DEVELOPMENTAL DISABILITIES | N/A | N/A | N/A | N/A | | |
| CNTYVET | VETERANS RELIEF | N/A | N/A | N/A | N/A | | |
| MENTAL | MENTAL HEALTH | N/A | N/A | N/A | N/A | | |
| PTGEN | CITY OF PT GENERAL | N/A | N/A | N/A | N/A | | |
| PTLLL | CITY OF PT - LIBRARY LID LIFT | N/A | N/A | N/A | N/A | | |
| PTMVBOND | CITY OF PT MV BOND | N/A | N/A | N/A | N/A | | |
| HOSP2CASH | HOSP DIST #2 GENERAL | N/A | N/A | N/A | N/A | | |
| SCH50BOND | SCHOOL DIST #50 BOND 2016 | N/A | N/A | N/A | N/A | | |
| SCH50CP | SCHOOL DIST #50 CAP PROJ | N/A | N/A | N/A | N/A | | |
| SCH50MO | SCHOOL DIST #50 EP & O | N/A | N/A | N/A | N/A | | |
| CONSERVE | CONSERVATION FUTURES | N/A | N/A | N/A | N/A | | |
| EMS1 | FIRE DIST #1 EMS | N/A | N/A | N/A | N/A | | |
| FD1 | FIRE DIST #1 GENERAL | N/A | N/A | N/A | N/A | | |
| PORTPT | PORT OF PT GENERAL | N/A | N/A | N/A | N/A | | |
| PORTPTIDD | PORT OF PT IDD 2019 | N/A | N/A | N/A | N/A | | |
| PUD1 | PUD #1 GENERAL | N/A | N/A | N/A | N/A | | |
| STATE | STATE SCHOOL PART 1 | N/A | N/A | N/A | N/A | | |
| STATE2 | STATE SCHOOL PART 2 | N/A | N/A | N/A | N/A | | |
| | Total Tax Rate: | N/A | | | | | |
| | | | | Taxes w/Current Exemptions: | N/A | | |
| | | | | Taxes w/o Exemptions: | N/A | | |
Improvement / Building
| Improvement #1: | Residential Bldg | State Code: | 11 | 829.0 sqft | Value: | $617,640 |
| Bathrooms (#): | 3 (FULL) | Bedrooms (#): | 3 | | Exterior Wall: | PL/T1 | Floor Construction: | FRAME | | Foundation: | CONPR | Heating/Cooling: | ELBB | | Roof Cover: | METAL |   |   |
|
| | Type | Description | Class CD | Sub Class CD | Year Built | Area |
| | MA | Main Area | 4+ | 1S | 2014 | 829.0 |
| | HLOFT | House Loft | 5 | 1S | 2014 | 376.0 |
| | GDET | Detached Garage | 4 | * | 2014 | 648.0 |
| | ADDN-D | Addition (Table Depreciated) | 3 | * | 2014 | 648.0 |
| | HWPOR | House Wood Porch | 4 | * | 2014 | 77.0 |
| | HDECK | House Deck | 4 | * | 2014 | 59.5 |
| | ADDN-D | Addition (Table Depreciated) | 3 | * | 2018 | 168.0 |
| | HDECK | House Deck | 2 | * | 2018 | 125.0 |
| | HWPOR | House Wood Porch | 2 | * | 2018 | 648.0 |
| | SHED | Shed (Table Not Dep) | 4 | * | 2014 | 90.0 |
| | HADDN | House Addition | 4 | 1S | 2021 | 640.0 |
| | HWPOR | House Wood Porch | 4 | * | 2020 | 72.0 |
| | HDECK | House Deck | 4 | * | 2020 | 329.0 |
Sketch
Property Image
Land
| 1 | 6030-1175L | Terr View/Good Qual Lots | 0.0000 | 0.00 | 0.00 | 0.00 | 1.00 | $130,000 | $0 |
| 2 | 6030-1189L | Lots Impacted by Wetlands/Drainage Corridor | 0.0000 | 0.00 | 0.00 | 0.00 | 1.00 | $24,950 | $0 |
| 3 | 6030-1185L | No View Lots | 0.0000 | 0.00 | 0.00 | 0.00 | 1.00 | $55,000 | $0 |
| 4 | 6030-1179L | Terr View XS Lots Limited Access | 0.0000 | 0.00 | 0.00 | 0.00 | 1.00 | $27,500 | $0 |
Roll Value History
| 2025 | N/A | N/A | N/A | N/A | N/A |
| 2024 | $613,848 | $239,201 | $0 | $853,049 | $853,049 |
| 2023 | $587,159 | $212,455 | $0 | $799,614 | $799,614 |
| 2022 | $587,159 | $207,455 | $0 | $794,614 | $794,614 |
| 2021 | $457,636 | $180,395 | $0 | $638,031 | $638,031 |
Deed and Sales History
| 1 | 04/12/2010 | SWD | Statutory Warranty Deed | CAIRNS JR, ALBERT | WARING, ANNE E/KOOMEN, SEAN W | | | $175,000.00 | 114286 | 0 |
| 2 | 01/03/2000 | SWD | Statutory Warranty Deed | SULLIVAN, DENNIS/JR | CAIRNS, ALBERT JR | 0 | 0 | $42,000.00 | 88734 | 0 |
Payout Agreement
| No payout information available.. |