Property
Account |
| Property ID: | 35027 | Abbreviated Legal Description: | MONTANA ADDITION BLK 46 LOT 5 CITY LETTER LUP18-022 |
| Parcel # / Geo ID: | 972904601 | Agent Code: | |
| Type: | Real | | |
| Tax Area: | 0110 - C-50F1E1H2 | Land Use Code | 18 |
| Open Space: | N | DFL | N |
| Historic Property: | N | Remodel Property: | N |
| Multi-Family Redevelopment: | N | | |
| Township: | 31N | Section: | 34 |
| Range: | 1W |
Location |
| Address: | 1086 56TH ST PORT TOWNSEND, WA 98368 | Mapsco: | 083/044 |
| Neighborhood: | MONTANA ADDITION | Map ID: | |
| Neighborhood CD: | 6030 |
Owner |
| Name: | 1086 56TH ST LLC | Owner ID: | 112034 |
| Mailing Address: | 5510 WILSON ST PORT TOWNSEND, WA 98368-1236 | % Ownership: | 100.0000000000% |
| | | Exemptions: | |
Pay Tax Due
There is currently No Amount Due on this property.
Taxes and Assessment Details
Property Tax Information as of
10/24/2025
Click on "Statement Details" to expand or collapse a tax statement.
* Please enter a valid date ** Please enter a valid date *
Statement Details |
| | TOTAL: | $0.00 | $0.00 | $0.00 | $0.00 | $0.00 | $0.00 |
|
| | $0.00 | $0.00 | $0.00 | $0.00 | $0.00 | $0.00 |
Values
| (+) Improvement Homesite Value: | + | $0 | |
| (+) Improvement Non-Homesite Value: | + | $52,764 | |
| (+) Land Homesite Value: | + | $0 | |
| (+) Land Non-Homesite Value: | + | $105,000 | |
| (+) Curr Use (HS): | + | $0 | $0 |
| (+) Curr Use (NHS): | + | $0 | $0 |
| | | -------------------------- | |
| (=) Market Value: | = | $157,764 | |
| (–) Productivity Loss: | – | $0 | |
| | | -------------------------- | |
| (=) Subtotal: | = | $157,764 | |
| (+) Senior Appraised Value: | + | $0 | |
| (+) Non-Senior Appraised Value: | + | $157,764 | |
| | | -------------------------- | |
| (=) Total Appraised Value: | = | $157,764 | |
| (–) Senior Exemption Loss: | – | $0 | |
| (–) Exemption Loss: | – | $0 | |
| | | -------------------------- | |
| (=) Taxable Value: | = | $157,764 | |
Taxing Jurisdiction
| Owner: | 1086 56TH ST LLC | | |
| % Ownership: | 100.0000000000% | | |
| Total Value: | N/A | | |
| Tax Area: | 0110 - C-50F1E1H2 |
| CE | COUNTY CURRENT EXPENSE | N/A | N/A | N/A | N/A | | |
| CNTYDD | DEVELOPMENTAL DISABILITIES | N/A | N/A | N/A | N/A | | |
| CNTYVET | VETERANS RELIEF | N/A | N/A | N/A | N/A | | |
| MENTAL | MENTAL HEALTH | N/A | N/A | N/A | N/A | | |
| PTGEN | CITY OF PT GENERAL | N/A | N/A | N/A | N/A | | |
| PTLLL | CITY OF PT - LIBRARY LID LIFT | N/A | N/A | N/A | N/A | | |
| PTMVBOND | CITY OF PT MV BOND | N/A | N/A | N/A | N/A | | |
| HOSP2CASH | HOSP DIST #2 GENERAL | N/A | N/A | N/A | N/A | | |
| SCH50BOND | SCHOOL DIST #50 BOND 2016 | N/A | N/A | N/A | N/A | | |
| SCH50CP | SCHOOL DIST #50 CAP PROJ | N/A | N/A | N/A | N/A | | |
| SCH50MO | SCHOOL DIST #50 EP & O | N/A | N/A | N/A | N/A | | |
| CONSERVE | CONSERVATION FUTURES | N/A | N/A | N/A | N/A | | |
| EMS1 | FIRE DIST #1 EMS | N/A | N/A | N/A | N/A | | |
| FD1 | FIRE DIST #1 GENERAL | N/A | N/A | N/A | N/A | | |
| PORTPT | PORT OF PT GENERAL | N/A | N/A | N/A | N/A | | |
| PORTPTIDD | PORT OF PT IDD 2019 | N/A | N/A | N/A | N/A | | |
| PUD1 | PUD #1 GENERAL | N/A | N/A | N/A | N/A | | |
| STATE | STATE SCHOOL PART 1 | N/A | N/A | N/A | N/A | | |
| STATE2 | STATE SCHOOL PART 2 | N/A | N/A | N/A | N/A | | |
| | Total Tax Rate: | N/A | | | | | |
| | | | | Taxes w/Current Exemptions: | N/A | | |
| | | | | Taxes w/o Exemptions: | N/A | | |
Improvement / Building
| Improvement #1: | Site Improvements | State Code: | 18 | 0.0 sqft | Value: | $52,764 |
| | Type | Description | Class CD | Sub Class CD | Year Built | Area |
| | GDET | Detached Garage | 3 | * | 2020 | 576.0 |
| | HDECK | House Deck | 3 | * | 2020 | 35.0 |
| | ADDN-D | Addition (Table Depreciated) | 2 | ADU | 2020 | 240.0 |
Sketch
Property Image
Land
| 1 | 6030-1175L | Terr View/Good Qual Lots | 0.1146 | 4992.00 | 0.00 | 0.00 | 1.00 | $105,000 | $0 |
Roll Value History
| 2025 | N/A | N/A | N/A | N/A | N/A |
| 2024 | $34,121 | $104,500 | $0 | $138,621 | $138,621 |
| 2023 | $32,637 | $95,000 | $0 | $127,637 | $127,637 |
| 2022 | $32,637 | $94,000 | $0 | $126,637 | $126,637 |
| 2021 | $26,995 | $83,375 | $0 | $110,370 | $110,370 |
Deed and Sales History
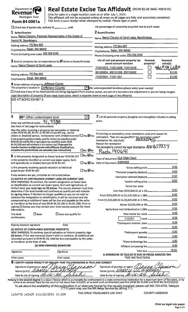
| 1 | 01/17/2025 | QCD | Quit Claim Deed | GREGORY ADAMS | 1086 56TH ST LLC | | | | 143774 | |
| 2 | 02/01/2021 | SWD | Statutory Warranty Deed | KAMPMANN HESSLER FAMILY TRUST | GREGORY ADAMS | | | $438,500.00 | 136091 | |
|   | |
| 3 | 06/11/2019 | SWD | Statutory Warranty Deed | MAXWELL G SCHUSTER | KAMPMANN HESSLER FAMILY TRUST | | | $369,000.00 | 132556 | |
|   | |
| 4 | 02/06/2019 | QCD | Quit Claim Deed | HOMESTEAD PROPERTIES WEST INC | MAXWELL G SCHUSTER | | | | 131891 | |
| 5 | 02/26/2018 | SWD | Statutory Warranty Deed | DOUGLAS JACK CRUMLEY | HOMESTEAD PROPERTIES WEST INC | | | $102,000.00 | 129640 | |
| 6 | 09/15/1994 | SWD | Statutory Warranty Deed | SPENCER, GILLIAN | CRUMLEY, DOUGLAS JACK/INGRID H | 0 | 0 | $26,250.00 | 75199 | 0 |
Payout Agreement
| No payout information available.. |