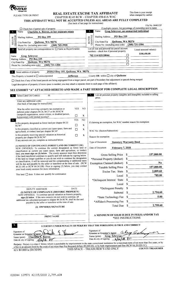
Property
Account |
| Property ID: | 35071 | Abbreviated Legal Description: | MOORE'S PLACE MOORE'S PLACE BLK 2 LOTS 7&8 BND BY LOT CERT LUP 21-078 #649577 |
| Parcel # / Geo ID: | 973200203 | Agent Code: | |
| Type: | Real | | |
| Tax Area: | 0110 - C-50F1E1H2 | Land Use Code | 11 |
| Open Space: | N | DFL | N |
| Historic Property: | N | Remodel Property: | N |
| Multi-Family Redevelopment: | N | | |
| Township: | 30N | Section: | 3 |
| Range: | 1W |
Location |
| Address: | 3506 HAINES ST PORT TOWNSEND, WA 98368 | Mapsco: | 084/019A |
| Neighborhood: | LITTLEFIELD,MOORES,PT ECO,ROSEWIND,TIBBALS 2ND,WAYSONS+SP AC | Map ID: | |
| Neighborhood CD: | 6090 |
Owner |
| Name: | ROBERTA N RILEY & PETER R MASON | Owner ID: | 106183 |
| Mailing Address: | 1116 GRAND AVE SEATTLE, WA 98122-3516 | % Ownership: | 100.0000000000% |
| | | Exemptions: | |
Pay Tax Due
There is currently No Amount Due on this property.
Taxes and Assessment Details
Property Tax Information as of
10/24/2025
Click on "Statement Details" to expand or collapse a tax statement.
* Please enter a valid date ** Please enter a valid date *
Statement Details |
| | TOTAL: | $0.00 | $0.00 | $0.00 | $0.00 | $0.00 | $0.00 |
|
| | $0.00 | $0.00 | $0.00 | $0.00 | $0.00 | $0.00 |
Values
| (+) Improvement Homesite Value: | + | $0 | |
| (+) Improvement Non-Homesite Value: | + | $727,348 | |
| (+) Land Homesite Value: | + | $0 | |
| (+) Land Non-Homesite Value: | + | $190,000 | |
| (+) Curr Use (HS): | + | $0 | $0 |
| (+) Curr Use (NHS): | + | $0 | $0 |
| | | -------------------------- | |
| (=) Market Value: | = | $917,348 | |
| (–) Productivity Loss: | – | $0 | |
| | | -------------------------- | |
| (=) Subtotal: | = | $917,348 | |
| (+) Senior Appraised Value: | + | $0 | |
| (+) Non-Senior Appraised Value: | + | $917,348 | |
| | | -------------------------- | |
| (=) Total Appraised Value: | = | $917,348 | |
| (–) Senior Exemption Loss: | – | $0 | |
| (–) Exemption Loss: | – | $0 | |
| | | -------------------------- | |
| (=) Taxable Value: | = | $917,348 | |
Taxing Jurisdiction
| Owner: | ROBERTA N RILEY & PETER R MASON | | |
| % Ownership: | 100.0000000000% | | |
| Total Value: | N/A | | |
| Tax Area: | 0110 - C-50F1E1H2 |
| CE | COUNTY CURRENT EXPENSE | N/A | N/A | N/A | N/A | | |
| CNTYDD | DEVELOPMENTAL DISABILITIES | N/A | N/A | N/A | N/A | | |
| CNTYVET | VETERANS RELIEF | N/A | N/A | N/A | N/A | | |
| MENTAL | MENTAL HEALTH | N/A | N/A | N/A | N/A | | |
| PTGEN | CITY OF PT GENERAL | N/A | N/A | N/A | N/A | | |
| PTLLL | CITY OF PT - LIBRARY LID LIFT | N/A | N/A | N/A | N/A | | |
| PTMVBOND | CITY OF PT MV BOND | N/A | N/A | N/A | N/A | | |
| HOSP2CASH | HOSP DIST #2 GENERAL | N/A | N/A | N/A | N/A | | |
| SCH50BOND | SCHOOL DIST #50 BOND 2016 | N/A | N/A | N/A | N/A | | |
| SCH50CP | SCHOOL DIST #50 CAP PROJ | N/A | N/A | N/A | N/A | | |
| SCH50MO | SCHOOL DIST #50 EP & O | N/A | N/A | N/A | N/A | | |
| CONSERVE | CONSERVATION FUTURES | N/A | N/A | N/A | N/A | | |
| EMS1 | FIRE DIST #1 EMS | N/A | N/A | N/A | N/A | | |
| FD1 | FIRE DIST #1 GENERAL | N/A | N/A | N/A | N/A | | |
| PORTPT | PORT OF PT GENERAL | N/A | N/A | N/A | N/A | | |
| PORTPTIDD | PORT OF PT IDD 2019 | N/A | N/A | N/A | N/A | | |
| PUD1 | PUD #1 GENERAL | N/A | N/A | N/A | N/A | | |
| STATE | STATE SCHOOL PART 1 | N/A | N/A | N/A | N/A | | |
| STATE2 | STATE SCHOOL PART 2 | N/A | N/A | N/A | N/A | | |
| | Total Tax Rate: | N/A | | | | | |
| | | | | Taxes w/Current Exemptions: | N/A | | |
| | | | | Taxes w/o Exemptions: | N/A | | |
Improvement / Building
| Improvement #1: | Residential Bldg | State Code: | 11 | 2360.0 sqft | Value: | $727,348 |
| Exterior Wall: | SI/ST | Floor Construction: | FRAME | | Foundation: | CONPR | Heating/Cooling: | HPUMP | | Roof Cover: | COMP |   |   |
|
| | Type | Description | Class CD | Sub Class CD | Year Built | Area |
| | MA | Main Area | 5+ | 2S | 1990 | 1700.0 |
| | MA2 | Second Floor Main Area | 5+ | 2S | 1990 | 660.0 |
| | PATIO | House Patio | 5 | * | 1990 | 569.3 |
| | HCPOR | House Concrete Porch | 5 | * | 1990 | 32.0 |
| | HDECK | House Deck | 5 | * | 1990 | 474.5 |
| | GBLTIN | Builtin Garage | 5 | 2S | 1990 | 308.0 |
| | CONCD | Concrete Drive | 5 | * | 1990 | 500.0 |
| | ASPHD | Asphalt Drive | 3 | 15SF | 1990 | 146.6 |
Sketch
Property Image
Land
| 1 | 6090-1176L | Multiple Lot Site (2+/-) with Access/Utilities | 0.0000 | 0.00 | 0.00 | 0.00 | 2.00 | $190,000 | $0 |
Roll Value History
| 2025 | N/A | N/A | N/A | N/A | N/A |
| 2024 | $704,636 | $189,000 | $0 | $893,636 | $893,636 |
| 2023 | $645,917 | $175,000 | $0 | $820,917 | $820,917 |
| 2022 | $645,917 | $170,000 | $0 | $815,917 | $815,917 |
| 2021 | $344,127 | $154,000 | $0 | $498,127 | $498,127 |
Deed and Sales History
| 1 | 12/20/2021 | SWD | Statutory Warranty Deed | IRENE GRABLE SURVIVORS TRUST | ROBERTA N RILEY & PETER R MASON | | | $850,000.00 | 138279 | |
| 2 | 12/17/2019 | BLA | Boundary Line Adjustment | IRENE GRABLE SURVIVORS TRUST | | | | | 133673 | |
| 3 | 09/10/2018 | TRED | Trustee Deed | ROBERT E GRABLE TRUSTEE | IRENE GRABLE SURVIVORS TRUST | | | | 131044 | |
| 4 | 10/04/1996 | QCD | Quit Claim Deed | GRABLE, ROBERT E & IRENE | GRABLE REVOCABLE LIVING TRUST | 0 | 0 | $0.00 | 80528 | 0 |
Payout Agreement
| No payout information available.. |