Property
Account |
| Property ID: | 35072 | Abbreviated Legal Description: | MOORE'S PLACE BLK 2 LOTS 3 & 4 BND BY LOT CERT LUP19-110 AF#629188 |
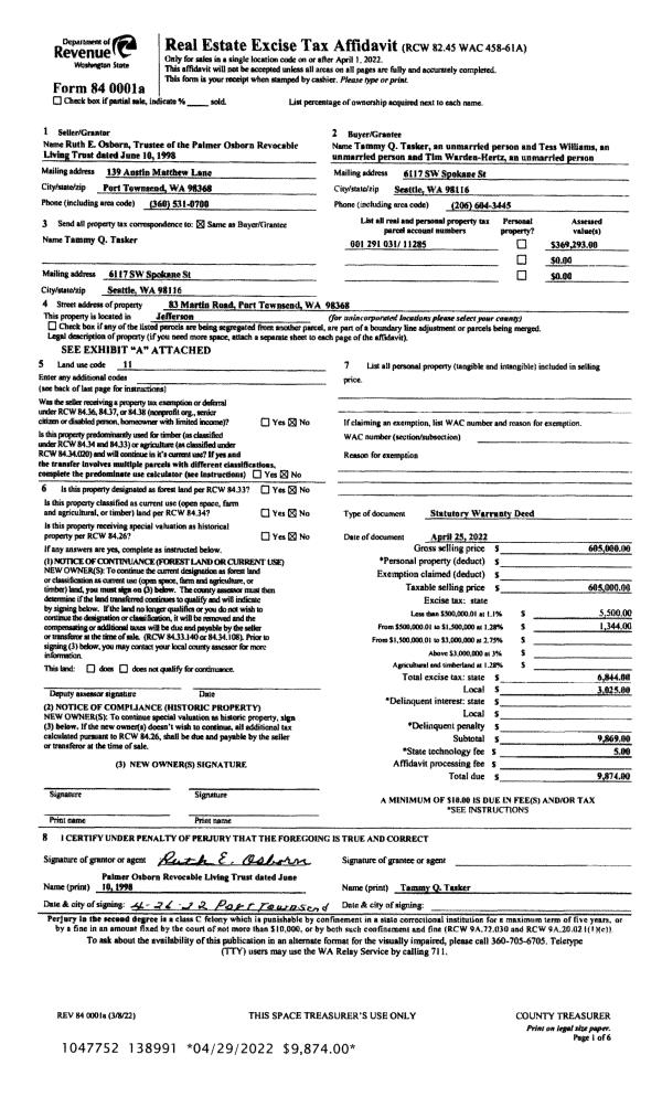
| Parcel # / Geo ID: | 973200204 | Agent Code: | |
| Type: | Real | | |
| Tax Area: | 0110 - C-50F1E1H2 | Land Use Code | 11 |
| Open Space: | N | DFL | N |
| Historic Property: | N | Remodel Property: | N |
| Multi-Family Redevelopment: | N | | |
| Township: | 30N | Section: | 3 |
| Range: | 1W |
Location |
| Address: | 3535 MCNEILL ST PORT TOWNSEND, WA 98368 | Mapsco: | 084/018 |
| Neighborhood: | LITTLEFIELD,MOORES,PT ECO,ROSEWIND,TIBBALS 2ND,WAYSONS+SP AC | Map ID: | |
| Neighborhood CD: | 6090 |
Owner |
| Name: | ABIGAIL L & SAMUEL A LITTLE | Owner ID: | 89736 |
| Mailing Address: | 3535 MCNEILL ST PORT TOWNSEND, WA 98368-5019 | % Ownership: | 100.0000000000% |
| | | Exemptions: | |
Pay Tax Due
There is currently No Amount Due on this property.
Taxes and Assessment Details
Property Tax Information as of
10/24/2025
Click on "Statement Details" to expand or collapse a tax statement.
* Please enter a valid date ** Please enter a valid date *
Statement Details |
| | TOTAL: | $0.00 | $0.00 | $0.00 | $0.00 | $0.00 | $0.00 |
|
| | $0.00 | $0.00 | $0.00 | $0.00 | $0.00 | $0.00 |
Values
| (+) Improvement Homesite Value: | + | $0 | |
| (+) Improvement Non-Homesite Value: | + | $677,819 | |
| (+) Land Homesite Value: | + | $0 | |
| (+) Land Non-Homesite Value: | + | $190,000 | |
| (+) Curr Use (HS): | + | $0 | $0 |
| (+) Curr Use (NHS): | + | $0 | $0 |
| | | -------------------------- | |
| (=) Market Value: | = | $867,819 | |
| (–) Productivity Loss: | – | $0 | |
| | | -------------------------- | |
| (=) Subtotal: | = | $867,819 | |
| (+) Senior Appraised Value: | + | $0 | |
| (+) Non-Senior Appraised Value: | + | $867,819 | |
| | | -------------------------- | |
| (=) Total Appraised Value: | = | $867,819 | |
| (–) Senior Exemption Loss: | – | $0 | |
| (–) Exemption Loss: | – | $0 | |
| | | -------------------------- | |
| (=) Taxable Value: | = | $867,819 | |
Taxing Jurisdiction
| Owner: | ABIGAIL L & SAMUEL A LITTLE | | |
| % Ownership: | 100.0000000000% | | |
| Total Value: | N/A | | |
| Tax Area: | 0110 - C-50F1E1H2 |
| CE | COUNTY CURRENT EXPENSE | N/A | N/A | N/A | N/A | | |
| CNTYDD | DEVELOPMENTAL DISABILITIES | N/A | N/A | N/A | N/A | | |
| CNTYVET | VETERANS RELIEF | N/A | N/A | N/A | N/A | | |
| MENTAL | MENTAL HEALTH | N/A | N/A | N/A | N/A | | |
| PTGEN | CITY OF PT GENERAL | N/A | N/A | N/A | N/A | | |
| PTLLL | CITY OF PT - LIBRARY LID LIFT | N/A | N/A | N/A | N/A | | |
| PTMVBOND | CITY OF PT MV BOND | N/A | N/A | N/A | N/A | | |
| HOSP2CASH | HOSP DIST #2 GENERAL | N/A | N/A | N/A | N/A | | |
| SCH50BOND | SCHOOL DIST #50 BOND 2016 | N/A | N/A | N/A | N/A | | |
| SCH50CP | SCHOOL DIST #50 CAP PROJ | N/A | N/A | N/A | N/A | | |
| SCH50MO | SCHOOL DIST #50 EP & O | N/A | N/A | N/A | N/A | | |
| CONSERVE | CONSERVATION FUTURES | N/A | N/A | N/A | N/A | | |
| EMS1 | FIRE DIST #1 EMS | N/A | N/A | N/A | N/A | | |
| FD1 | FIRE DIST #1 GENERAL | N/A | N/A | N/A | N/A | | |
| PORTPT | PORT OF PT GENERAL | N/A | N/A | N/A | N/A | | |
| PORTPTIDD | PORT OF PT IDD 2019 | N/A | N/A | N/A | N/A | | |
| PUD1 | PUD #1 GENERAL | N/A | N/A | N/A | N/A | | |
| STATE | STATE SCHOOL PART 1 | N/A | N/A | N/A | N/A | | |
| STATE2 | STATE SCHOOL PART 2 | N/A | N/A | N/A | N/A | | |
| | Total Tax Rate: | N/A | | | | | |
| | | | | Taxes w/Current Exemptions: | N/A | | |
| | | | | Taxes w/o Exemptions: | N/A | | |
Improvement / Building
| Improvement #1: | Residential Bldg | State Code: | 11 | 2367.0 sqft | Value: | $677,819 |
| Bathrooms (#): | 3 (FULL) | Bathrooms (#): | 1 (HALF) | | Bedrooms (#): | 4 | Exterior Wall: | SI/ST | | Floor Construction: | FRAME | Foundation: | CONPR | | Heating/Cooling: | HPUMP | Roof Cover: | COMP |
|
| | Type | Description | Class CD | Sub Class CD | Year Built | Area |
| | MA | Main Area | 4+ | 1S | 2022 | 2367.0 |
| | HCPOR | House Concrete Porch | 4 | 1S | 2022 | 80.0 |
| | GATT | House Attached Garage | 4 | 1S | 2022 | 562.0 |
| | HDECK | House Deck | 4 | 1S | 2022 | 481.0 |
| | CONCD | Concrete Drive | 4 | 1S | 2022 | 500.0 |
| | PATIO | House Patio | 4 | 1S | 2022 | 1060.0 |
Sketch
Property Image
Land
| 1 | 6090-1176L | Multiple Lot Site (2+/-) with Access/Utilities | 0.0000 | 0.00 | 0.00 | 0.00 | 2.00 | $190,000 | $0 |
Roll Value History
| 2025 | N/A | N/A | N/A | N/A | N/A |
| 2024 | $641,922 | $189,000 | $0 | $830,922 | $830,922 |
| 2023 | $588,429 | $170,000 | $0 | $758,429 | $758,429 |
| 2022 | $588,428 | $165,000 | $0 | $753,428 | $753,428 |
| 2021 | $0 | $137,500 | $0 | $137,500 | $137,500 |
Deed and Sales History
| 1 | 07/17/2020 | QCD | Quit Claim Deed | IRENE GRABLE SURVIVORS TRUST | ABIGAIL L & SAMUEL A LITTLE | | | $100,000.00 | 134683 | |
| 2 | 09/11/2019 | QCD | Quit Claim Deed | ROBERT L LITTLE JR | IRENE GRABLE SURVIVORS TRUST | | | $17,000.00 | 133671 | |
| 3 | 12/17/2019 | BLA | Boundary Line Adjustment | IRENE GRABLE SURVIVORS TRUST | | | | | 133673 | |
| 4 | 09/10/2018 | TRED | Trustee Deed | ROBERT E GRABLE TRUSTEE | IRENE GRABLE SURVIVORS TRUST | | | | 131044 | |
| 5 | 10/04/1996 | QCD | Quit Claim Deed | GRABLE, ROBERT E & IRENE | GRABLE REVOCABLE LIVING TRUST | 0 | 0 | $0.00 | 80531 | 0 |
| 6 | 08/29/1994 | QCD | Quit Claim Deed | LITTLE, ROBERT L/CHRISTIN | GRABLE, ROBERT E/IRENE | 0 | 0 | $0.00 | 75008 | 0 |
Payout Agreement
| No payout information available.. |