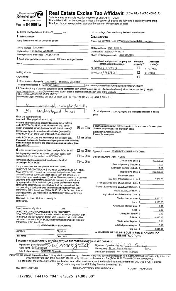
Property
Account |
| Property ID: | 35248 | Abbreviated Legal Description: | NATIONAL CITY #1 ADDITION BLK 1 LOTS 6(W30'), 7(ALL) W/EASE |
| Parcel # / Geo ID: | 974700104 | Agent Code: | |
| Type: | Real | | |
| Tax Area: | 0110 - C-50F1E1H2 | Land Use Code | 63 |
| Open Space: | N | DFL | N |
| Historic Property: | N | Remodel Property: | N |
| Multi-Family Redevelopment: | N | | |
| Township: | 30N | Section: | 9 |
| Range: | 1W |
Location |
| Address: | 2174 W SIMS WAY PORT TOWNSEND, WA 98368 | Mapsco: | 087/004 |
| Neighborhood: | SIMS WAY BY RAINIER ST / PT BUSINESS PARK COMMERCIAL | Map ID: | |
| Neighborhood CD: | 6190C |
Owner |
| Name: | WILLIAMS FAMILY TRUST | Owner ID: | 87298 |
| Mailing Address: | STEVEN WILLIAMS TRUSTEE CARRIE WILLIAMS TRUSTEE 1827 TERRACE HEIGHTS LN RENO, NV 89523 | % Ownership: | 100.0000000000% |
| | | Exemptions: | |
Pay Tax Due
There is currently No Amount Due on this property.
Taxes and Assessment Details
Property Tax Information as of
10/24/2025
Click on "Statement Details" to expand or collapse a tax statement.
* Please enter a valid date ** Please enter a valid date *
Statement Details |
| | TOTAL: | $0.00 | $0.00 | $0.00 | $0.00 | $0.00 | $0.00 |
|
| | $0.00 | $0.00 | $0.00 | $0.00 | $0.00 | $0.00 |
Values
| (+) Improvement Homesite Value: | + | $0 | |
| (+) Improvement Non-Homesite Value: | + | $84,244 | |
| (+) Land Homesite Value: | + | $0 | |
| (+) Land Non-Homesite Value: | + | $96,822 | |
| (+) Curr Use (HS): | + | $0 | $0 |
| (+) Curr Use (NHS): | + | $0 | $0 |
| | | -------------------------- | |
| (=) Market Value: | = | $181,066 | |
| (–) Productivity Loss: | – | $0 | |
| | | -------------------------- | |
| (=) Subtotal: | = | $181,066 | |
| (+) Senior Appraised Value: | + | $0 | |
| (+) Non-Senior Appraised Value: | + | $181,066 | |
| | | -------------------------- | |
| (=) Total Appraised Value: | = | $181,066 | |
| (–) Senior Exemption Loss: | – | $0 | |
| (–) Exemption Loss: | – | $0 | |
| | | -------------------------- | |
| (=) Taxable Value: | = | $181,066 | |
Taxing Jurisdiction
| Owner: | WILLIAMS FAMILY TRUST | | |
| % Ownership: | 100.0000000000% | | |
| Total Value: | N/A | | |
| Tax Area: | 0110 - C-50F1E1H2 |
| CE | COUNTY CURRENT EXPENSE | N/A | N/A | N/A | N/A | | |
| CNTYDD | DEVELOPMENTAL DISABILITIES | N/A | N/A | N/A | N/A | | |
| CNTYVET | VETERANS RELIEF | N/A | N/A | N/A | N/A | | |
| MENTAL | MENTAL HEALTH | N/A | N/A | N/A | N/A | | |
| PTGEN | CITY OF PT GENERAL | N/A | N/A | N/A | N/A | | |
| PTLLL | CITY OF PT - LIBRARY LID LIFT | N/A | N/A | N/A | N/A | | |
| PTMVBOND | CITY OF PT MV BOND | N/A | N/A | N/A | N/A | | |
| HOSP2CASH | HOSP DIST #2 GENERAL | N/A | N/A | N/A | N/A | | |
| SCH50BOND | SCHOOL DIST #50 BOND 2016 | N/A | N/A | N/A | N/A | | |
| SCH50CP | SCHOOL DIST #50 CAP PROJ | N/A | N/A | N/A | N/A | | |
| SCH50MO | SCHOOL DIST #50 EP & O | N/A | N/A | N/A | N/A | | |
| CONSERVE | CONSERVATION FUTURES | N/A | N/A | N/A | N/A | | |
| EMS1 | FIRE DIST #1 EMS | N/A | N/A | N/A | N/A | | |
| FD1 | FIRE DIST #1 GENERAL | N/A | N/A | N/A | N/A | | |
| PORTPT | PORT OF PT GENERAL | N/A | N/A | N/A | N/A | | |
| PORTPTIDD | PORT OF PT IDD 2019 | N/A | N/A | N/A | N/A | | |
| PUD1 | PUD #1 GENERAL | N/A | N/A | N/A | N/A | | |
| STATE | STATE SCHOOL PART 1 | N/A | N/A | N/A | N/A | | |
| STATE2 | STATE SCHOOL PART 2 | N/A | N/A | N/A | N/A | | |
| | Total Tax Rate: | N/A | | | | | |
| | | | | Taxes w/Current Exemptions: | N/A | | |
| | | | | Taxes w/o Exemptions: | N/A | | |
Improvement / Building
| Improvement #1: | Commercial/Industrial/Government Bldg | State Code: | 63 | 1020.0 sqft | Value: | $84,244 |
| Exterior Wall: | PL/T1 | Floor Construction: | CONCR | | Foundation: | CONPR | Interior Finish: | FIN | | Roof Cover: | BLTUP |   |   |
|
Sketch
Property Image
Land
| 1 | 6190-6272Q | Comm Land w/Utilities Good Access/Util | 0.1260 | 5490.00 | 0.00 | 0.00 | 0.00 | $96,822 | $0 |
Roll Value History
| 2025 | N/A | N/A | N/A | N/A | N/A |
| 2024 | $78,977 | $96,822 | $0 | $175,799 | $175,799 |
| 2023 | $78,977 | $91,822 | $0 | $170,799 | $170,799 |
| 2022 | $75,216 | $86,822 | $0 | $162,038 | $162,038 |
| 2021 | $68,685 | $74,410 | $0 | $143,095 | $143,095 |
Deed and Sales History
| 1 | 05/19/2016 | QCD | Quit Claim Deed | STEVEN K WILLIAMS | WILLIAMS FAMILY TRUST | | | | 125790 | |
| 2 | 09/14/2005 | SWD | Statutory Warranty Deed | BALDERAS, BRICIO J | WILLIAMS, STEVEN K & CARRIE | 0 | 0 | $150,000.00 | 104861 | 0 |
Payout Agreement
| No payout information available.. |