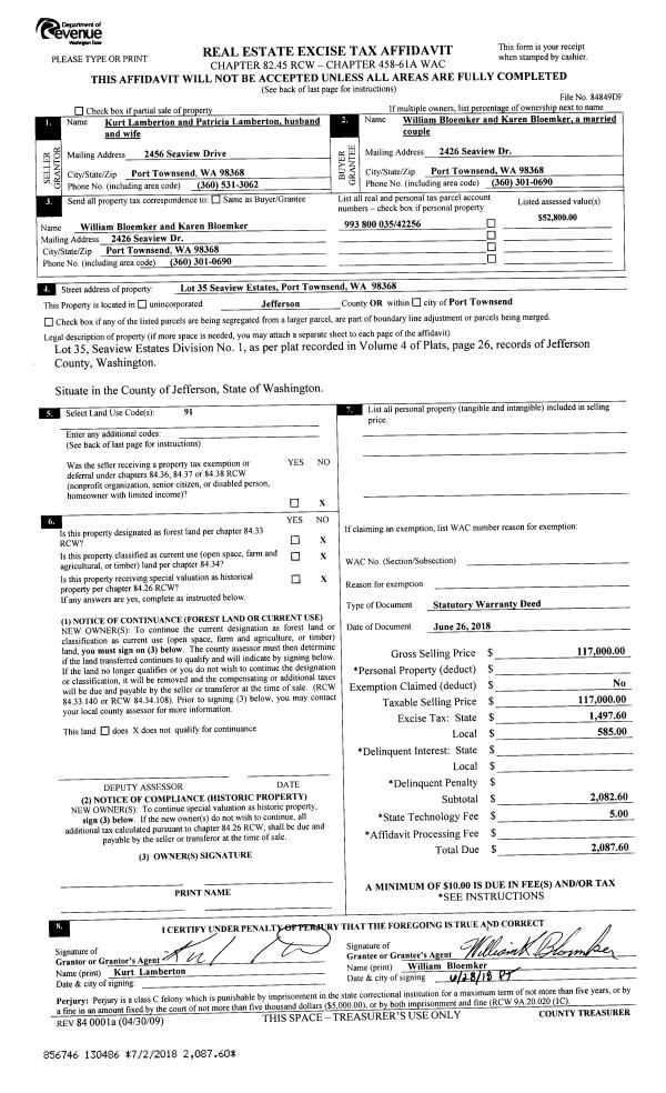
Property
Account |
| Property ID: | 35299 | Abbreviated Legal Description: | NOLTON'S 1ST TO PORT TOWNSEND LOT 1(ALL), 2(E20') |
| Parcel # / Geo ID: | 975300001 | Agent Code: | |
| Type: | Real | | |
| Tax Area: | 0110 - C-50F1E1H2 | Land Use Code | 51 |
| Open Space: | N | DFL | N |
| Historic Property: | N | Remodel Property: | N |
| Multi-Family Redevelopment: | N | | |
| Township: | 30N | Section: | 2 |
| Range: | 1W |
Location |
| Address: | 1030 LAWRENCE ST PORT TOWNSEND, WA 98368 | Mapsco: | 088/001 |
| Neighborhood: | PORT TOWNSEND UPTOWN COMMERCIAL DISTRICT | Map ID: | |
| Neighborhood CD: | 6280C |
Owner |
| Name: | ERIC DISHINGTON LLC | Owner ID: | 106342 |
| Mailing Address: | 50 MUMBY RD NORDLAND, WA 98358-9579 | % Ownership: | 100.0000000000% |
| | | Exemptions: | |
Pay Tax Due
There is currently No Amount Due on this property.
Taxes and Assessment Details
Property Tax Information as of
10/24/2025
Click on "Statement Details" to expand or collapse a tax statement.
* Please enter a valid date ** Please enter a valid date *
Statement Details |
| | TOTAL: | $0.00 | $0.00 | $0.00 | $0.00 | $0.00 | $0.00 |
|
| | $0.00 | $0.00 | $0.00 | $0.00 | $0.00 | $0.00 |
Values
| (+) Improvement Homesite Value: | + | $0 | |
| (+) Improvement Non-Homesite Value: | + | $407,581 | |
| (+) Land Homesite Value: | + | $0 | |
| (+) Land Non-Homesite Value: | + | $263,400 | |
| (+) Curr Use (HS): | + | $0 | $0 |
| (+) Curr Use (NHS): | + | $0 | $0 |
| | | -------------------------- | |
| (=) Market Value: | = | $670,981 | |
| (–) Productivity Loss: | – | $0 | |
| | | -------------------------- | |
| (=) Subtotal: | = | $670,981 | |
| (+) Senior Appraised Value: | + | $0 | |
| (+) Non-Senior Appraised Value: | + | $670,981 | |
| | | -------------------------- | |
| (=) Total Appraised Value: | = | $670,981 | |
| (–) Senior Exemption Loss: | – | $0 | |
| (–) Exemption Loss: | – | $0 | |
| | | -------------------------- | |
| (=) Taxable Value: | = | $670,981 | |
Taxing Jurisdiction
| Owner: | ERIC DISHINGTON LLC | | |
| % Ownership: | 100.0000000000% | | |
| Total Value: | N/A | | |
| Tax Area: | 0110 - C-50F1E1H2 |
| CE | COUNTY CURRENT EXPENSE | N/A | N/A | N/A | N/A | | |
| CNTYDD | DEVELOPMENTAL DISABILITIES | N/A | N/A | N/A | N/A | | |
| CNTYVET | VETERANS RELIEF | N/A | N/A | N/A | N/A | | |
| MENTAL | MENTAL HEALTH | N/A | N/A | N/A | N/A | | |
| PTGEN | CITY OF PT GENERAL | N/A | N/A | N/A | N/A | | |
| PTLLL | CITY OF PT - LIBRARY LID LIFT | N/A | N/A | N/A | N/A | | |
| PTMVBOND | CITY OF PT MV BOND | N/A | N/A | N/A | N/A | | |
| HOSP2CASH | HOSP DIST #2 GENERAL | N/A | N/A | N/A | N/A | | |
| SCH50BOND | SCHOOL DIST #50 BOND 2016 | N/A | N/A | N/A | N/A | | |
| SCH50CP | SCHOOL DIST #50 CAP PROJ | N/A | N/A | N/A | N/A | | |
| SCH50MO | SCHOOL DIST #50 EP & O | N/A | N/A | N/A | N/A | | |
| CONSERVE | CONSERVATION FUTURES | N/A | N/A | N/A | N/A | | |
| EMS1 | FIRE DIST #1 EMS | N/A | N/A | N/A | N/A | | |
| FD1 | FIRE DIST #1 GENERAL | N/A | N/A | N/A | N/A | | |
| PORTPT | PORT OF PT GENERAL | N/A | N/A | N/A | N/A | | |
| PORTPTIDD | PORT OF PT IDD 2019 | N/A | N/A | N/A | N/A | | |
| PUD1 | PUD #1 GENERAL | N/A | N/A | N/A | N/A | | |
| STATE | STATE SCHOOL PART 1 | N/A | N/A | N/A | N/A | | |
| STATE2 | STATE SCHOOL PART 2 | N/A | N/A | N/A | N/A | | |
| | Total Tax Rate: | N/A | | | | | |
| | | | | Taxes w/Current Exemptions: | N/A | | |
| | | | | Taxes w/o Exemptions: | N/A | | |
Improvement / Building
| Improvement #1: | Commercial/Industrial/Government Bldg | State Code: | 51 | 8635.0 sqft | Value: | $407,581 |
| Exterior Wall: | SI/ST | Floor Construction: | FRAME | | Foundation: | CONPR | Interior Finish: | FIN | | Roof Cover: | COMP |   |   |
|
Sketch
Property Image
Land
| 1 | 6280-6273Q | Commercial Retail Uptown on Lawrence St | 0.1225 | 5335.00 | 0.00 | 0.00 | 0.00 | $263,400 | $0 |
Roll Value History
| 2025 | N/A | N/A | N/A | N/A | N/A |
| 2024 | $398,731 | $263,400 | $0 | $662,131 | $662,131 |
| 2023 | $398,731 | $258,400 | $0 | $657,131 | $657,131 |
| 2022 | $379,744 | $253,400 | $0 | $633,144 | $633,144 |
| 2021 | $342,188 | $221,725 | $0 | $563,913 | $563,913 |
Deed and Sales History
| 1 | 03/03/2022 | QCD | Quit Claim Deed | ROBERT H DISHINGTON IRREVOCABLE TRUST | ERIC DISHINGTON LLC | | | | 138778 | |
| 2 | 03/08/2019 | QCD | Quit Claim Deed | ROBERT H DISHINGTON | ROBERT H DISHINGTON IRREVOCABLE TRUST | | | | 131952 | |
| 3 | 03/08/2019 | BSD | Bargain and Sale Deed | DISHINGTON FAMILY LIM PRTSHP 2 | ROBERT H DISHINGTON | | | | 136335 | |
| 4 | 02/11/2002 | SWD | Statutory Warranty Deed | RASMUSSEN, MARK C/MARSHA | DISHINGTON FAMILY LIMITED PART | 0 | 0 | $450,000.00 | 94058 | 0 |
|   | |
| 5 | 01/31/1995 | SWD | Statutory Warranty Deed | MARTIN, CARL J/SCHRADER, | RASMUSSEN, MARK C/MARSHA E | 0 | 0 | $370,000.00 | 76163 | 0 |
|   | |
Payout Agreement
| No payout information available.. |