Property
Account |
| Property ID: | 35312 | Abbreviated Legal Description: | NOLTON'S 2ND ADDITION BLK 1 LOTS 7 & 8 |
| Parcel # / Geo ID: | 975600106 | Agent Code: | |
| Type: | Real | | |
| Tax Area: | 0110 - C-50F1E1H2 | Land Use Code | 11 |
| Open Space: | N | DFL | N |
| Historic Property: | N | Remodel Property: | N |
| Multi-Family Redevelopment: | N | | |
| Township: | 30N | Section: | 2 |
| Range: | 1W |
Location |
| Address: | 308 E ST PORT TOWNSEND, WA 98368 | Mapsco: | 088/015 |
| Neighborhood: | BARTLETT,DENNYS,NOLTONS,LEARNEDS 1ST, POWER,WINSLOW & TX #'S | Map ID: | |
| Neighborhood CD: | 6360 |
Owner |
| Name: | CAROL GALLUP SUPPLEMENTAL NEEDS TRUST | Owner ID: | 112107 |
| Mailing Address: | JUDITH MOORE TRTEE 1631 HIDDEN VALLEY LN AUBURN, CA 95620 | % Ownership: | 100.0000000000% |
| | | Exemptions: | |
Pay Tax Due
There is currently No Amount Due on this property.
Taxes and Assessment Details
Property Tax Information as of
10/24/2025
Click on "Statement Details" to expand or collapse a tax statement.
* Please enter a valid date ** Please enter a valid date *
Statement Details |
| | TOTAL: | $0.00 | $0.00 | $0.00 | $0.00 | $0.00 | $0.00 |
|
| | $0.00 | $0.00 | $0.00 | $0.00 | $0.00 | $0.00 |
Values
| (+) Improvement Homesite Value: | + | $302,244 | |
| (+) Improvement Non-Homesite Value: | + | $0 | |
| (+) Land Homesite Value: | + | $225,000 | |
| (+) Land Non-Homesite Value: | + | $0 | |
| (+) Curr Use (HS): | + | $0 | $0 |
| (+) Curr Use (NHS): | + | $0 | $0 |
| | | -------------------------- | |
| (=) Market Value: | = | $527,244 | |
| (–) Productivity Loss: | – | $0 | |
| | | -------------------------- | |
| (=) Subtotal: | = | $527,244 | |
| (+) Senior Appraised Value: | + | $0 | |
| (+) Non-Senior Appraised Value: | + | $527,244 | |
| | | -------------------------- | |
| (=) Total Appraised Value: | = | $527,244 | |
| (–) Senior Exemption Loss: | – | $0 | |
| (–) Exemption Loss: | – | $0 | |
| | | -------------------------- | |
| (=) Taxable Value: | = | $527,244 | |
Taxing Jurisdiction
| Owner: | CAROL GALLUP SUPPLEMENTAL NEEDS TRUST | | |
| % Ownership: | 100.0000000000% | | |
| Total Value: | N/A | | |
| Tax Area: | 0110 - C-50F1E1H2 |
| CE | COUNTY CURRENT EXPENSE | N/A | N/A | N/A | N/A | | |
| CNTYDD | DEVELOPMENTAL DISABILITIES | N/A | N/A | N/A | N/A | | |
| CNTYVET | VETERANS RELIEF | N/A | N/A | N/A | N/A | | |
| MENTAL | MENTAL HEALTH | N/A | N/A | N/A | N/A | | |
| PTGEN | CITY OF PT GENERAL | N/A | N/A | N/A | N/A | | |
| PTLLL | CITY OF PT - LIBRARY LID LIFT | N/A | N/A | N/A | N/A | | |
| PTMVBOND | CITY OF PT MV BOND | N/A | N/A | N/A | N/A | | |
| HOSP2CASH | HOSP DIST #2 GENERAL | N/A | N/A | N/A | N/A | | |
| SCH50BOND | SCHOOL DIST #50 BOND 2016 | N/A | N/A | N/A | N/A | | |
| SCH50CP | SCHOOL DIST #50 CAP PROJ | N/A | N/A | N/A | N/A | | |
| SCH50MO | SCHOOL DIST #50 EP & O | N/A | N/A | N/A | N/A | | |
| CONSERVE | CONSERVATION FUTURES | N/A | N/A | N/A | N/A | | |
| EMS1 | FIRE DIST #1 EMS | N/A | N/A | N/A | N/A | | |
| FD1 | FIRE DIST #1 GENERAL | N/A | N/A | N/A | N/A | | |
| PORTPT | PORT OF PT GENERAL | N/A | N/A | N/A | N/A | | |
| PORTPTIDD | PORT OF PT IDD 2019 | N/A | N/A | N/A | N/A | | |
| PUD1 | PUD #1 GENERAL | N/A | N/A | N/A | N/A | | |
| STATE | STATE SCHOOL PART 1 | N/A | N/A | N/A | N/A | | |
| STATE2 | STATE SCHOOL PART 2 | N/A | N/A | N/A | N/A | | |
| | Total Tax Rate: | N/A | | | | | |
| | | | | Taxes w/Current Exemptions: | N/A | | |
| | | | | Taxes w/o Exemptions: | N/A | | |
Improvement / Building
| Improvement #1: | Residential Bldg | State Code: | 11 | 2158.0 sqft | Value: | $302,244 |
| Bathrooms (#): | 2 (FULL) | Bedrooms (#): | 3 | | Exterior Wall: | SI/ST | Fireplace: | WD ST-AVG | | Floor Construction: | FRAME | Foundation: | PO&BL | | Heating/Cooling: | WD/NO | Inside Verify: | YES-FIX | | Roof Cover: | COMP |   |   |
|
| | Type | Description | Class CD | Sub Class CD | Year Built | Area |
| | MA | Main Area | 3+ | 2S | 1894 | 1565.0 |
| | MA2 | Second Floor Main Area | 3+ | 2S | 1894 | 593.0 |
| | HWPOR | House Wood Porch | 3 | * | 1894 | 243.0 |
| | HATTIC | House Attic | 3 | * | 1894 | 224.0 |
Sketch
Property Image
Land
| 1 | 6360-1185L | Uptown Std Lot (Fair/No Views) | 0.0000 | 0.00 | 0.00 | 0.00 | 1.00 | $160,000 | $0 |
| 2 | 6360-1185L | Uptown Std Lot (Fair/No Views) | 0.0000 | 0.00 | 0.00 | 0.00 | 1.00 | $65,000 | $0 |
Roll Value History
| 2025 | N/A | N/A | N/A | N/A | N/A |
| 2024 | $301,550 | $220,500 | $0 | $522,050 | $522,050 |
| 2023 | $288,439 | $205,000 | $0 | $493,439 | $75,172 |
| 2022 | $288,439 | $200,000 | $0 | $488,439 | $75,172 |
| 2021 | $241,170 | $178,125 | $0 | $419,295 | $75,172 |
Deed and Sales History
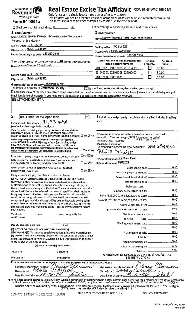
| 1 | 01/20/2025 | PRD | Personal Representatives Deed | ISSAC GARDINER | CAROL GALLUP SUPPLEMENTAL NEEDS TRUST | | | | 143771 | |
Payout Agreement
| No payout information available.. |