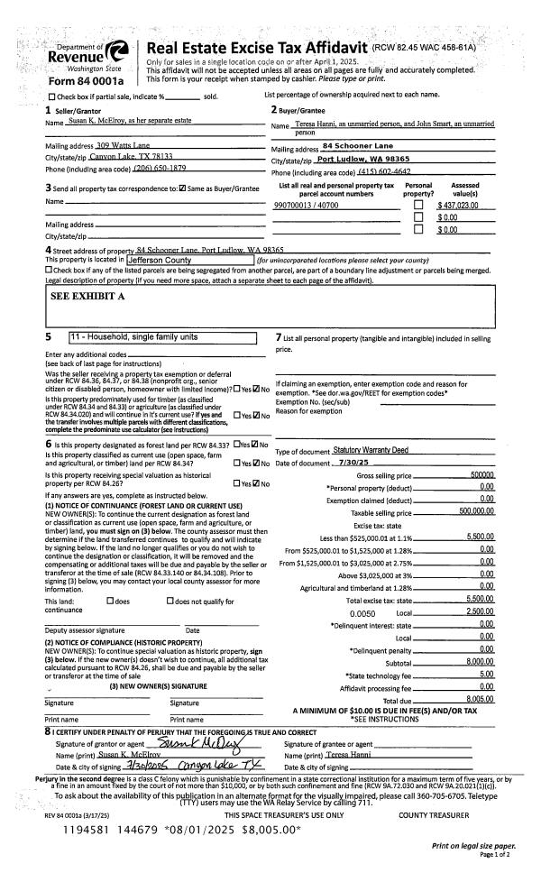
Property
Account |
| Property ID: | 35320 | Abbreviated Legal Description: | NOLTON'S E P T BLK 1 6 |
| Parcel # / Geo ID: | 975900105 | Agent Code: | |
| Type: | Real | | |
| Tax Area: | 0211 - 1-49F1E1H2L1 | Land Use Code | 91 |
| Open Space: | N | DFL | N |
| Historic Property: | N | Remodel Property: | N |
| Multi-Family Redevelopment: | N | | |
| Township: | 30N | Section: | 29 |
| Range: | 1E |
Location |
| Address: | | Mapsco: | 070/006 |
| Neighborhood: | NOLTONS EAST PORT TOWNSEND | Map ID: | |
| Neighborhood CD: | 4535 |
Owner |
| Name: | DENNIS DILLE | Owner ID: | 43763 |
| Mailing Address: | 8593 FLAGLER RD NORDLAND, WA 98358-9648 | % Ownership: | 100.0000000000% |
| | | Exemptions: | |
Pay Tax Due
There is currently No Amount Due on this property.
Taxes and Assessment Details
Property Tax Information as of
10/24/2025
Click on "Statement Details" to expand or collapse a tax statement.
* Please enter a valid date ** Please enter a valid date *
Statement Details |
| | TOTAL: | $0.00 | $0.00 | $0.00 | $0.00 | $0.00 | $0.00 |
|
| | $0.00 | $0.00 | $0.00 | $0.00 | $0.00 | $0.00 |
Values
| (+) Improvement Homesite Value: | + | $0 | |
| (+) Improvement Non-Homesite Value: | + | $0 | |
| (+) Land Homesite Value: | + | $0 | |
| (+) Land Non-Homesite Value: | + | $33,000 | |
| (+) Curr Use (HS): | + | $0 | $0 |
| (+) Curr Use (NHS): | + | $0 | $0 |
| | | -------------------------- | |
| (=) Market Value: | = | $33,000 | |
| (–) Productivity Loss: | – | $0 | |
| | | -------------------------- | |
| (=) Subtotal: | = | $33,000 | |
| (+) Senior Appraised Value: | + | $0 | |
| (+) Non-Senior Appraised Value: | + | $33,000 | |
| | | -------------------------- | |
| (=) Total Appraised Value: | = | $33,000 | |
| (–) Senior Exemption Loss: | – | $0 | |
| (–) Exemption Loss: | – | $0 | |
| | | -------------------------- | |
| (=) Taxable Value: | = | $33,000 | |
Taxing Jurisdiction
| Owner: | DENNIS DILLE | | |
| % Ownership: | 100.0000000000% | | |
| Total Value: | N/A | | |
| Tax Area: | 0211 - 1-49F1E1H2L1 |
| CE | COUNTY CURRENT EXPENSE | N/A | N/A | N/A | N/A | | |
| CNTYDD | DEVELOPMENTAL DISABILITIES | N/A | N/A | N/A | N/A | | |
| CNTYVET | VETERANS RELIEF | N/A | N/A | N/A | N/A | | |
| MENTAL | MENTAL HEALTH | N/A | N/A | N/A | N/A | | |
| ROADS | COUNTY ROADS | N/A | N/A | N/A | N/A | | |
| ROADSCU | COUNTY ROADS TO CUR EXP | N/A | N/A | N/A | N/A | | |
| HOSP2CASH | HOSP DIST #2 GENERAL | N/A | N/A | N/A | N/A | | |
| SCH49CP | SCHOOL DIST #49 CAP PROJ | N/A | N/A | N/A | N/A | | |
| SCH49MO | SCHOOL DIST #49 EP & O | N/A | N/A | N/A | N/A | | |
| CONSERVE | CONSERVATION FUTURES | N/A | N/A | N/A | N/A | | |
| EMS1 | FIRE DIST #1 EMS | N/A | N/A | N/A | N/A | | |
| FD1 | FIRE DIST #1 GENERAL | N/A | N/A | N/A | N/A | | |
| LIB1 | LIBRARY DIST #1 GENERAL | N/A | N/A | N/A | N/A | | |
| PORTPT | PORT OF PT GENERAL | N/A | N/A | N/A | N/A | | |
| PORTPTIDD | PORT OF PT IDD 2019 | N/A | N/A | N/A | N/A | | |
| PUD1 | PUD #1 GENERAL | N/A | N/A | N/A | N/A | | |
| STATE | STATE SCHOOL PART 1 | N/A | N/A | N/A | N/A | | |
| STATE2 | STATE SCHOOL PART 2 | N/A | N/A | N/A | N/A | | |
| | Total Tax Rate: | N/A | | | | | |
| | | | | Taxes w/Current Exemptions: | N/A | | |
| | | | | Taxes w/o Exemptions: | N/A | | |
Improvement / Building
Sketch
| No sketches available for this property. |
Property Image
Land
| 1 | 4535-1165L | Noltons East PT Lots Filtered Water Views | 0.0000 | 0.00 | 0.00 | 0.00 | 1.00 | $33,000 | $0 |
Roll Value History
| 2025 | N/A | N/A | N/A | N/A | N/A |
| 2024 | $0 | $31,500 | $0 | $31,500 | $31,500 |
| 2023 | $0 | $30,000 | $0 | $30,000 | $30,000 |
| 2022 | $0 | $30,000 | $0 | $30,000 | $30,000 |
| 2021 | $0 | $17,250 | $0 | $17,250 | $17,250 |
Deed and Sales History
| 1 | 08/22/2025 | QCD | Quit Claim Deed | DENNIS G DILLE IRREVOCABLE GIFTING TRUST | DENNIS DILLE | | | | 144792 | |
| 2 | 05/16/2023 | QCD | Quit Claim Deed | DENNIS DILLE | DENNIS G DILLE IRREVOCABLE GIFTING TRUST | | | | 140910 | |
| 3 | 08/04/2015 | SWD | Statutory Warranty Deed | DALLAS LUND | DENNIS DILLE | | | $125,000.00 | 123741 | |
|   | |
| 4 | 04/15/1993 | QCD | Quit Claim Deed | SNOOK, H JOHANNA | LUND, DALLAS | 0 | 0 | $0.00 | 70924 | 0 |
Payout Agreement
| No payout information available.. |