Property
Account |
| Property ID: | 35373 | Abbreviated Legal Description: | NORDLAND BLK 1 N 100' E OF CO RD |
| Parcel # / Geo ID: | 976200101 | Agent Code: | |
| Type: | Real | | |
| Tax Area: | 0211 - 1-49F1E1H2L1 | Land Use Code | 11 |
| Open Space: | N | DFL | N |
| Historic Property: | N | Remodel Property: | N |
| Multi-Family Redevelopment: | N | | |
| Township: | 30N | Section: | 33 |
| Range: | 1E |
Location |
| Address: | 2610 EAST MARROWSTONE RD NORDLAND, WA 98358 | Mapsco: | 071/001 |
| Neighborhood: | NORDLAND INCLUDES NORDBY SP & G NORDBY SP | Map ID: | |
| Neighborhood CD: | 4555 |
Owner |
| Name: | CHARLES H SPARKS & ANNE T O'REILLY | Owner ID: | 92340 |
| Mailing Address: | 3818 SE COOPER ST PORTLAND, OR 97202-7750 | % Ownership: | 100.0000000000% |
| | | Exemptions: | |
Pay Tax Due
There is currently No Amount Due on this property.
Taxes and Assessment Details
Property Tax Information as of
10/24/2025
Click on "Statement Details" to expand or collapse a tax statement.
* Please enter a valid date ** Please enter a valid date *
Statement Details |
| | TOTAL: | $0.00 | $0.00 | $0.00 | $0.00 | $0.00 | $0.00 |
|
| | $0.00 | $0.00 | $0.00 | $0.00 | $0.00 | $0.00 |
Values
| (+) Improvement Homesite Value: | + | $0 | |
| (+) Improvement Non-Homesite Value: | + | $285,893 | |
| (+) Land Homesite Value: | + | $0 | |
| (+) Land Non-Homesite Value: | + | $350,750 | |
| (+) Curr Use (HS): | + | $0 | $0 |
| (+) Curr Use (NHS): | + | $0 | $0 |
| | | -------------------------- | |
| (=) Market Value: | = | $636,643 | |
| (–) Productivity Loss: | – | $0 | |
| | | -------------------------- | |
| (=) Subtotal: | = | $636,643 | |
| (+) Senior Appraised Value: | + | $0 | |
| (+) Non-Senior Appraised Value: | + | $636,643 | |
| | | -------------------------- | |
| (=) Total Appraised Value: | = | $636,643 | |
| (–) Senior Exemption Loss: | – | $0 | |
| (–) Exemption Loss: | – | $0 | |
| | | -------------------------- | |
| (=) Taxable Value: | = | $636,643 | |
Taxing Jurisdiction
| Owner: | CHARLES H SPARKS & ANNE T O'REILLY | | |
| % Ownership: | 100.0000000000% | | |
| Total Value: | N/A | | |
| Tax Area: | 0211 - 1-49F1E1H2L1 |
| CE | COUNTY CURRENT EXPENSE | N/A | N/A | N/A | N/A | | |
| CNTYDD | DEVELOPMENTAL DISABILITIES | N/A | N/A | N/A | N/A | | |
| CNTYVET | VETERANS RELIEF | N/A | N/A | N/A | N/A | | |
| MENTAL | MENTAL HEALTH | N/A | N/A | N/A | N/A | | |
| ROADS | COUNTY ROADS | N/A | N/A | N/A | N/A | | |
| ROADSCU | COUNTY ROADS TO CUR EXP | N/A | N/A | N/A | N/A | | |
| HOSP2CASH | HOSP DIST #2 GENERAL | N/A | N/A | N/A | N/A | | |
| SCH49CP | SCHOOL DIST #49 CAP PROJ | N/A | N/A | N/A | N/A | | |
| SCH49MO | SCHOOL DIST #49 EP & O | N/A | N/A | N/A | N/A | | |
| CONSERVE | CONSERVATION FUTURES | N/A | N/A | N/A | N/A | | |
| EMS1 | FIRE DIST #1 EMS | N/A | N/A | N/A | N/A | | |
| FD1 | FIRE DIST #1 GENERAL | N/A | N/A | N/A | N/A | | |
| LIB1 | LIBRARY DIST #1 GENERAL | N/A | N/A | N/A | N/A | | |
| PORTPT | PORT OF PT GENERAL | N/A | N/A | N/A | N/A | | |
| PORTPTIDD | PORT OF PT IDD 2019 | N/A | N/A | N/A | N/A | | |
| PUD1 | PUD #1 GENERAL | N/A | N/A | N/A | N/A | | |
| STATE | STATE SCHOOL PART 1 | N/A | N/A | N/A | N/A | | |
| STATE2 | STATE SCHOOL PART 2 | N/A | N/A | N/A | N/A | | |
| | Total Tax Rate: | N/A | | | | | |
| | | | | Taxes w/Current Exemptions: | N/A | | |
| | | | | Taxes w/o Exemptions: | N/A | | |
Improvement / Building
| Improvement #1: | Residential Bldg | State Code: | 11 | 1750.0 sqft | Value: | $285,893 |
| Bathrooms (#): | 1 (FULL) | Bedrooms (#): | 2 | | Exterior Wall: | PL/T1 | Fireplace: | SIN 1-FAIR | | Floor Construction: | FRAME | Foundation: | CONBL | | Heating/Cooling: | HPUMP | Inside Verify: | YES-FIX | | Roof Cover: | METAL |   |   |
|
| | Type | Description | Class CD | Sub Class CD | Year Built | Area |
| | MA | Main Area | 3+ | 1S | 1968 | 1750.0 |
| | HDECK | House Deck | 3 | 1S | 1968 | 168.0 |
| | GATT | House Attached Garage | 3 | 1S | 1968 | 506.0 |
| | CARPTN | Carport W/O Floor | 3 | 1S | 1968 | 600.0 |
| | HWPOR | House Wood Porch | 3 | 1S | 1968 | 120.0 |
Sketch
Property Image
Land
| 1 | 4555-1535F | High Bank Waterfront Marrowstone | 0.0000 | 0.00 | 0.00 | 0.00 | 0.00 | $350,750 | $0 |
Roll Value History
| 2025 | N/A | N/A | N/A | N/A | N/A |
| 2024 | $262,068 | $320,250 | $0 | $582,318 | $582,318 |
| 2023 | $250,156 | $300,000 | $0 | $550,156 | $550,156 |
| 2022 | $219,847 | $295,000 | $0 | $514,847 | $514,847 |
| 2021 | $183,206 | $224,250 | $0 | $407,456 | $407,456 |
Deed and Sales History
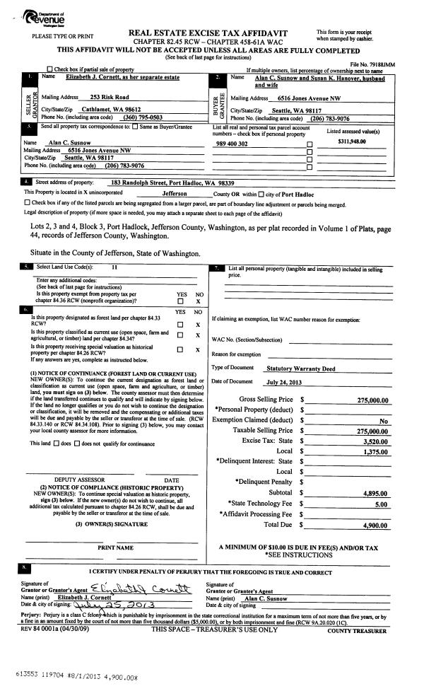
| 1 | 07/31/2014 | SWD | Statutory Warranty Deed | MARIAN F RICHEY TRUSTEE | CHARLES H SPARKS & ANNE T O'REILLY | | | $325,000.00 | 121708 | |
Payout Agreement
| No payout information available.. |