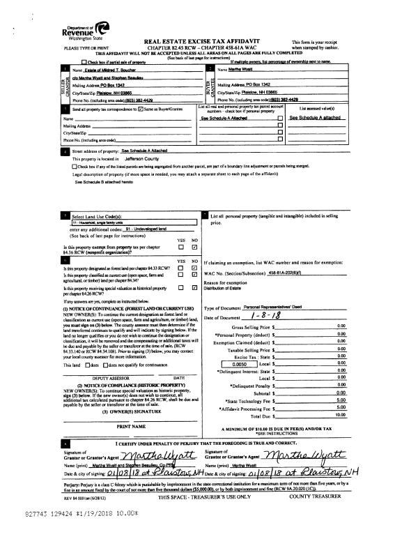
| 1 | 09/26/2017 | PRD | Personal Representatives Deed | | | | | | 130217 | |
| 2 | 03/07/2017 | QCD | Quit Claim Deed | | | | | | 127488 | |
| 3 | 05/08/2007 | SWD | Statutory Warranty Deed | REDLING, AUBREY C/CONSTAN | PARKER, WILLIAM/MERWIN,CAROLYN | | | $0.00 | 109369 | 0 |
| 4 | 05/08/2007 | SWD | Statutory Warranty Deed | REDLING, AUBREY C/CONSTAN | PARKER, WILLIAM/MERWIN,CAROLYN | | | $650,000.00 | 109220 | 0 |
| 5 | 04/06/1994 | QCD | Quit Claim Deed | REDLING, AUBREY C | REDLING, AUBREY & CONSTANCE/TR | 0 | 0 | $0.00 | 73792 | 0 |