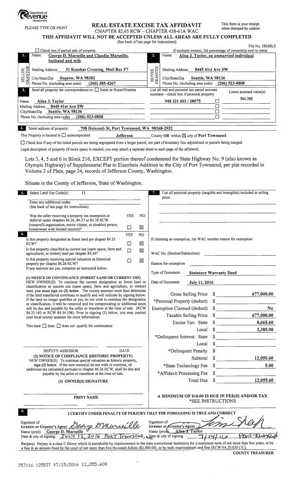
Property
Account |
| Property ID: | 35399 | Abbreviated Legal Description: | NORDLAND BLK 6 TAX 43 |
| Parcel # / Geo ID: | 976200601 | Agent Code: | |
| Type: | Real | | |
| Tax Area: | 0211 - 1-49F1E1H2L1 | Land Use Code | 11 |
| Open Space: | N | DFL | N |
| Historic Property: | N | Remodel Property: | N |
| Multi-Family Redevelopment: | N | | |
| Township: | 30N | Section: | 33 |
| Range: | 1E |
Location |
| Address: | 2480 EAST MARROWSTONE RD NORDLAND, WA 98358 | Mapsco: | 071/028 |
| Neighborhood: | NORDLAND INCLUDES NORDBY SP & G NORDBY SP | Map ID: | |
| Neighborhood CD: | 4555 |
Owner |
| Name: | LARRY A JONES DISCLAIMER TRUST | Owner ID: | 105373 |
| Mailing Address: | SUSAN DELANTY JONES TRUSTEE 900 UNIVERSITY ST APT 1101 SEATTLE, WA 98101-3723 | % Ownership: | 100.0000000000% |
| | | Exemptions: | |
Pay Tax Due
There is currently No Amount Due on this property.
Taxes and Assessment Details
Property Tax Information as of
10/24/2025
Click on "Statement Details" to expand or collapse a tax statement.
* Please enter a valid date ** Please enter a valid date *
Statement Details |
| | TOTAL: | $0.00 | $0.00 | $0.00 | $0.00 | $0.00 | $0.00 |
|
| | $0.00 | $0.00 | $0.00 | $0.00 | $0.00 | $0.00 |
Values
| (+) Improvement Homesite Value: | + | $0 | |
| (+) Improvement Non-Homesite Value: | + | $178,704 | |
| (+) Land Homesite Value: | + | $0 | |
| (+) Land Non-Homesite Value: | + | $287,500 | |
| (+) Curr Use (HS): | + | $0 | $0 |
| (+) Curr Use (NHS): | + | $0 | $0 |
| | | -------------------------- | |
| (=) Market Value: | = | $466,204 | |
| (–) Productivity Loss: | – | $0 | |
| | | -------------------------- | |
| (=) Subtotal: | = | $466,204 | |
| (+) Senior Appraised Value: | + | $0 | |
| (+) Non-Senior Appraised Value: | + | $466,204 | |
| | | -------------------------- | |
| (=) Total Appraised Value: | = | $466,204 | |
| (–) Senior Exemption Loss: | – | $0 | |
| (–) Exemption Loss: | – | $0 | |
| | | -------------------------- | |
| (=) Taxable Value: | = | $466,204 | |
Taxing Jurisdiction
| Owner: | LARRY A JONES DISCLAIMER TRUST | | |
| % Ownership: | 100.0000000000% | | |
| Total Value: | N/A | | |
| Tax Area: | 0211 - 1-49F1E1H2L1 |
| CE | COUNTY CURRENT EXPENSE | N/A | N/A | N/A | N/A | | |
| CNTYDD | DEVELOPMENTAL DISABILITIES | N/A | N/A | N/A | N/A | | |
| CNTYVET | VETERANS RELIEF | N/A | N/A | N/A | N/A | | |
| MENTAL | MENTAL HEALTH | N/A | N/A | N/A | N/A | | |
| ROADS | COUNTY ROADS | N/A | N/A | N/A | N/A | | |
| ROADSCU | COUNTY ROADS TO CUR EXP | N/A | N/A | N/A | N/A | | |
| HOSP2CASH | HOSP DIST #2 GENERAL | N/A | N/A | N/A | N/A | | |
| SCH49CP | SCHOOL DIST #49 CAP PROJ | N/A | N/A | N/A | N/A | | |
| SCH49MO | SCHOOL DIST #49 EP & O | N/A | N/A | N/A | N/A | | |
| CONSERVE | CONSERVATION FUTURES | N/A | N/A | N/A | N/A | | |
| EMS1 | FIRE DIST #1 EMS | N/A | N/A | N/A | N/A | | |
| FD1 | FIRE DIST #1 GENERAL | N/A | N/A | N/A | N/A | | |
| LIB1 | LIBRARY DIST #1 GENERAL | N/A | N/A | N/A | N/A | | |
| PORTPT | PORT OF PT GENERAL | N/A | N/A | N/A | N/A | | |
| PORTPTIDD | PORT OF PT IDD 2019 | N/A | N/A | N/A | N/A | | |
| PUD1 | PUD #1 GENERAL | N/A | N/A | N/A | N/A | | |
| STATE | STATE SCHOOL PART 1 | N/A | N/A | N/A | N/A | | |
| STATE2 | STATE SCHOOL PART 2 | N/A | N/A | N/A | N/A | | |
| | Total Tax Rate: | N/A | | | | | |
| | | | | Taxes w/Current Exemptions: | N/A | | |
| | | | | Taxes w/o Exemptions: | N/A | | |
Improvement / Building
| Improvement #1: | Residential Bldg | State Code: | 11 | 1504.0 sqft | Value: | $152,276 |
| Bathrooms (#): | 1 (FULL) | Bathrooms (#): | 1 (HALF) | | Bedrooms (#): | 2 | Exterior Wall: | BL/VE | | Fireplace: | WD ST-AVG | Floor Construction: | CONCR | | Foundation: | CONPR | Heating/Cooling: | WD/NO | | Roof Cover: | SHAKE |   |   |
|
| | Type | Description | Class CD | Sub Class CD | Year Built | Area |
| | MA | Main Area | 2+ | 2S | 1978 | 864.0 |
| | MA2 | Second Floor Main Area | 2+ | 2S | 1978 | 640.0 |
| | PATIO | House Patio | 2 | 2S | 1978 | 672.0 |
| | CARPTF | Carport W/Floor | 2 | 2S | 1978 | 576.0 |
| | SHED | Shed (Table Not Dep) | 4 | 2S | 1978 | 608.0 |
| Improvement #2: | Residential Bldg | State Code: | 11 | 520.0 sqft | Value: | $26,428 |
| Exterior Wall: | SI/ST | Fireplace: | WD ST-FAIR | | Floor Construction: | CONCR | Foundation: | CONPR | | Heating/Cooling: | WD/NO | Inside Verify: | YES-FIX | | Interior Finish: | FIN | Roof Cover: | COMP |
|
Sketch
Property Image
Land
| 1 | 4555-1535F | High Bank Waterfront Marrowstone | 0.0000 | 0.00 | 0.00 | 0.00 | 0.00 | $287,500 | $0 |
Roll Value History
| 2025 | N/A | N/A | N/A | N/A | N/A |
| 2024 | $163,812 | $262,500 | $0 | $426,312 | $426,312 |
| 2023 | $156,366 | $245,000 | $0 | $401,366 | $401,366 |
| 2022 | $140,005 | $240,000 | $0 | $380,005 | $380,005 |
| 2021 | $117,553 | $182,850 | $0 | $300,403 | $300,403 |
Deed and Sales History
| 1 | 07/23/2021 | PRD | Personal Representatives Deed | LARRY A JONES | LARRY A JONES DISCLAIMER TRUST | | | | 137405 | |
| 2 | 12/10/2009 | QCD | Quit Claim Deed | JONES, SUSAN DELANTY | JONES, LARRY AMOS | 0 | 0 | $0.00 | 113859 | 0 |
Payout Agreement
| No payout information available.. |