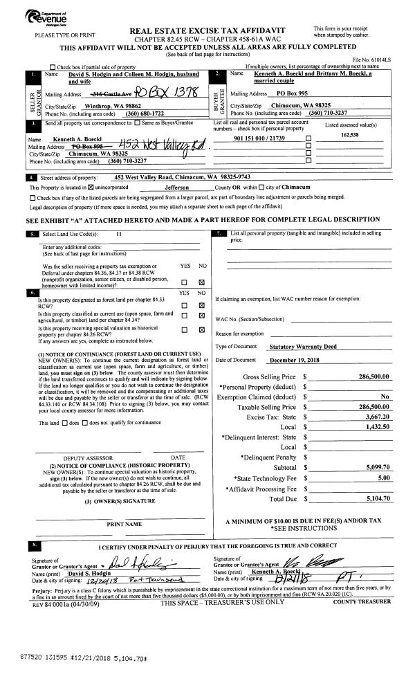
Property
Account |
| Property ID: | 35461 | Abbreviated Legal Description: | OAK BAY WATERFRONT TRACTS LOTS 10 & 11 |
| Parcel # / Geo ID: | 976800004 | Agent Code: | |
| Type: | Real | | |
| Tax Area: | 0213 - 1-49F1E1H2L1 | Land Use Code | 11 |
| Open Space: | N | DFL | N |
| Historic Property: | N | Remodel Property: | N |
| Multi-Family Redevelopment: | N | | |
| Township: | 29N | Section: | 29 |
| Range: | 1E |
Location |
| Address: | 346 N BAY WAY PORT LUDLOW, WA 98365 | Mapsco: | 074/006 |
| Neighborhood: | S28 & S29 T29N R1E & OAK BAY WTRF TRTS & OLELE POINT | Map ID: | |
| Neighborhood CD: | 3280 |
Owner |
| Name: | PAUL HANDEL TRUST & CAROLYN SMITH TRUST | Owner ID: | 17397 |
| Mailing Address: | PAUL HANDEL TRUSTEE CAROLYN A SMITH TRUSTEE 46 VILLAGE WAY UNIT 65134 PORT LUDLOW, WA 98365-3206 | % Ownership: | 100.0000000000% |
| | | Exemptions: | |
Pay Tax Due
There is currently No Amount Due on this property.
Taxes and Assessment Details
Property Tax Information as of
10/24/2025
Click on "Statement Details" to expand or collapse a tax statement.
* Please enter a valid date ** Please enter a valid date *
Statement Details |
| | TOTAL: | $0.00 | $0.00 | $0.00 | $0.00 | $0.00 | $0.00 |
|
| | $0.00 | $0.00 | $0.00 | $0.00 | $0.00 | $0.00 |
Values
| (+) Improvement Homesite Value: | + | $0 | |
| (+) Improvement Non-Homesite Value: | + | $888,832 | |
| (+) Land Homesite Value: | + | $0 | |
| (+) Land Non-Homesite Value: | + | $458,942 | |
| (+) Curr Use (HS): | + | $0 | $0 |
| (+) Curr Use (NHS): | + | $0 | $0 |
| | | -------------------------- | |
| (=) Market Value: | = | $1,347,774 | |
| (–) Productivity Loss: | – | $0 | |
| | | -------------------------- | |
| (=) Subtotal: | = | $1,347,774 | |
| (+) Senior Appraised Value: | + | $0 | |
| (+) Non-Senior Appraised Value: | + | $1,347,774 | |
| | | -------------------------- | |
| (=) Total Appraised Value: | = | $1,347,774 | |
| (–) Senior Exemption Loss: | – | $0 | |
| (–) Exemption Loss: | – | $0 | |
| | | -------------------------- | |
| (=) Taxable Value: | = | $1,347,774 | |
Taxing Jurisdiction
| Owner: | PAUL HANDEL TRUST & CAROLYN SMITH TRUST | | |
| % Ownership: | 100.0000000000% | | |
| Total Value: | N/A | | |
| Tax Area: | 0213 - 1-49F1E1H2L1 |
| CE | COUNTY CURRENT EXPENSE | N/A | N/A | N/A | N/A | | |
| CNTYDD | DEVELOPMENTAL DISABILITIES | N/A | N/A | N/A | N/A | | |
| CNTYVET | VETERANS RELIEF | N/A | N/A | N/A | N/A | | |
| MENTAL | MENTAL HEALTH | N/A | N/A | N/A | N/A | | |
| ROADS | COUNTY ROADS | N/A | N/A | N/A | N/A | | |
| ROADSCU | COUNTY ROADS TO CUR EXP | N/A | N/A | N/A | N/A | | |
| HOSP2CASH | HOSP DIST #2 GENERAL | N/A | N/A | N/A | N/A | | |
| SCH49CP | SCHOOL DIST #49 CAP PROJ | N/A | N/A | N/A | N/A | | |
| SCH49MO | SCHOOL DIST #49 EP & O | N/A | N/A | N/A | N/A | | |
| CONSERVE | CONSERVATION FUTURES | N/A | N/A | N/A | N/A | | |
| EMS1 | FIRE DIST #1 EMS | N/A | N/A | N/A | N/A | | |
| FD1 | FIRE DIST #1 GENERAL | N/A | N/A | N/A | N/A | | |
| LIB1 | LIBRARY DIST #1 GENERAL | N/A | N/A | N/A | N/A | | |
| PORTPT | PORT OF PT GENERAL | N/A | N/A | N/A | N/A | | |
| PORTPTIDD | PORT OF PT IDD 2019 | N/A | N/A | N/A | N/A | | |
| PUD1 | PUD #1 GENERAL | N/A | N/A | N/A | N/A | | |
| STATE | STATE SCHOOL PART 1 | N/A | N/A | N/A | N/A | | |
| STATE2 | STATE SCHOOL PART 2 | N/A | N/A | N/A | N/A | | |
| | Total Tax Rate: | N/A | | | | | |
| | | | | Taxes w/Current Exemptions: | N/A | | |
| | | | | Taxes w/o Exemptions: | N/A | | |
Improvement / Building
| Improvement #1: | Residential Bldg | State Code: | 11 | 720.0 sqft | Value: | $169,508 |
| Bathrooms (#): | 1 (FULL) | Bedrooms (#): | 1 | | Exterior Wall: | SI/ST | Floor Construction: | CONCR | | Foundation: | CONPR | Heating/Cooling: | OTHER | | Inside Verify: | YES-FIX | Roof Cover: | COMP |
|
| | Type | Description | Class CD | Sub Class CD | Year Built | Area |
| | MA | Main Area | 4 | 15SF | 1998 | 720.0 |
| | HCPOR | House Concrete Porch | 4 | * | 1998 | 48.0 |
| | GBLTIN | Builtin Garage | 3 | 15SF | 1998 | 720.0 |
| | CONCD | Concrete Drive | 3 | * | 1998 | 440.0 |
| Improvement #2: | Residential Bldg | State Code: | 11 | 2610.0 sqft | Value: | $719,324 |
| Bathrooms (#): | 3 (FULL) | Bedrooms (#): | 3 | | Exterior Wall: | SI/ST | Fireplace: | SIN 2-GOOD | | Floor Construction: | FRAME | Foundation: | CONPR | | Heating/Cooling: | HPUMP | Roof Cover: | COMP |
|
| | Type | Description | Class CD | Sub Class CD | Year Built | Area |
| | MA | Main Area | 5 | 2S | 2001 | 1546.0 |
| | MA2 | Second Floor Main Area | 5 | 2S | 2001 | 1064.0 |
| | HBAL | House Balcony | 5 | * | 2001 | 80.0 |
| | HCPOR | House Concrete Porch | 5 | * | 2001 | 335.0 |
| | HDECK | House Deck | 5 | * | 2001 | 562.0 |
| | HRPO | House Roof Patio | 5 | * | 2001 | 80.0 |
| | OTHER | Other | 3 | * | 2001 | 0.0 |
Sketch
Property Image
Land
| 1 | 3280-1135F | High Bank Wtrfrt along Oak Bay | 0.0000 | 0.00 | 0.00 | 0.00 | 0.00 | $402,500 | $0 |
| 2 | 3280-1135F | High Bank Wtrfrt along Oak Bay | 0.0000 | 0.00 | 0.00 | 0.00 | 0.00 | $52,992 | $0 |
| 3 | 9301F | Tidelands | 0.0000 | 0.00 | 0.00 | 0.00 | 0.00 | $3,450 | $0 |
Roll Value History
| 2025 | N/A | N/A | N/A | N/A | N/A |
| 2024 | $851,799 | $438,988 | $0 | $1,290,787 | $1,290,787 |
| 2023 | $814,764 | $394,080 | $0 | $1,208,844 | $1,208,844 |
| 2022 | $777,729 | $389,080 | $0 | $1,166,809 | $1,166,809 |
| 2021 | $612,748 | $322,050 | $0 | $934,798 | $934,798 |
Deed and Sales History
| 1 | 06/27/2019 | SWD | Statutory Warranty Deed | KENNETH E WOOD | PAUL HANDEL TRUST & CAROLYN SMITH TRUST | | | $950,000.00 | 132661 | |
| 2 | 07/13/2010 | QCD | Quit Claim Deed | GUNTER, LENAE M | GUNTER, JAMES G | 0 | 0 | $0.00 | 114735 | 0 |
| 3 | 07/13/2010 | SWD | Statutory Warranty Deed | GUNTER, JAMES G | WOOD, KENNETH/DIANA | 0 | 0 | $787,500.00 | 114736 | 0 |
| 4 | 07/31/2007 | QCD | Quit Claim Deed | GUNTER, LISA R | GUNTER, JAMES G | 0 | 0 | $0.00 | 110530 | 0 |
| 5 | 10/08/2004 | SWD | Statutory Warranty Deed | GLAZAR, RONALD C/ANTIA J | GUNTER, JAMES/LISA | 0 | 0 | $605,000.00 | 101718 | 0 |
| 6 | 07/16/1999 | QCD | Quit Claim Deed | GLAZAR, RON/ANITA | GLAZAR FAMILY REVOCABLE TRUST | 0 | 0 | $0.00 | 87469 | 0 |
| 7 | 10/22/1996 | SWD | Statutory Warranty Deed | NOVAK, RAYMOND/MARGARET M | GLAZAR, RON/ANITA | 0 | 0 | $118,000.00 | 80669 | 0 |
Payout Agreement
| No payout information available.. |