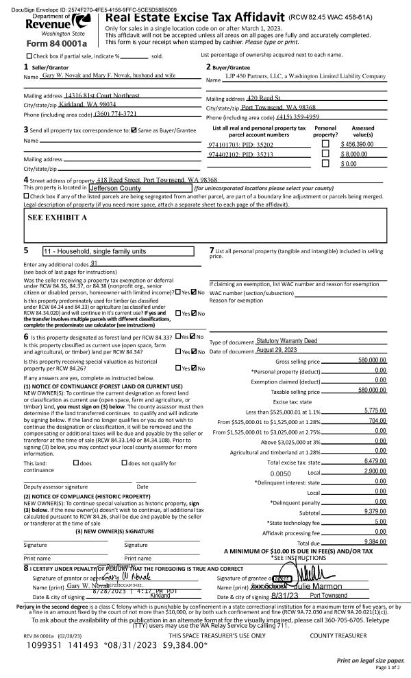
Property
Account |
| Property ID: | 35579 | Abbreviated Legal Description: | OCEAN GROVE ESTATES #2 BLK 4 LOT 10 |
| Parcel # / Geo ID: | 977100409 | Agent Code: | |
| Type: | Real | | |
| Tax Area: | 0111 - 1-50F1E1H2L1 | Land Use Code | 11 |
| Open Space: | N | DFL | N |
| Historic Property: | N | Remodel Property: | N |
| Multi-Family Redevelopment: | N | | |
| Township: | 30N | Section: | 24 |
| Range: | 2W |
Location |
| Address: | 180 COMBS ST PORT TOWNSEND, WA 98368 | Mapsco: | 059/010 |
| Neighborhood: | OCEANGROVE | Map ID: | |
| Neighborhood CD: | 5560 |
Owner |
| Name: | JANICE L LAYMAN | Owner ID: | 110801 |
| Mailing Address: | 180 COMBS ST PORT TOWNSEND, WA 98368-9626 | % Ownership: | 100.0000000000% |
| | | Exemptions: | |
Pay Tax Due
There is currently No Amount Due on this property.
Taxes and Assessment Details
Property Tax Information as of
10/24/2025
Click on "Statement Details" to expand or collapse a tax statement.
* Please enter a valid date ** Please enter a valid date *
Statement Details |
| | TOTAL: | $0.00 | $0.00 | $0.00 | $0.00 | $0.00 | $0.00 |
|
| | $0.00 | $0.00 | $0.00 | $0.00 | $0.00 | $0.00 |
Values
| (+) Improvement Homesite Value: | + | $0 | |
| (+) Improvement Non-Homesite Value: | + | $348,485 | |
| (+) Land Homesite Value: | + | $0 | |
| (+) Land Non-Homesite Value: | + | $102,000 | |
| (+) Curr Use (HS): | + | $0 | $0 |
| (+) Curr Use (NHS): | + | $0 | $0 |
| | | -------------------------- | |
| (=) Market Value: | = | $450,485 | |
| (–) Productivity Loss: | – | $0 | |
| | | -------------------------- | |
| (=) Subtotal: | = | $450,485 | |
| (+) Senior Appraised Value: | + | $0 | |
| (+) Non-Senior Appraised Value: | + | $450,485 | |
| | | -------------------------- | |
| (=) Total Appraised Value: | = | $450,485 | |
| (–) Senior Exemption Loss: | – | $0 | |
| (–) Exemption Loss: | – | $0 | |
| | | -------------------------- | |
| (=) Taxable Value: | = | $450,485 | |
Taxing Jurisdiction
| Owner: | JANICE L LAYMAN | | |
| % Ownership: | 100.0000000000% | | |
| Total Value: | N/A | | |
| Tax Area: | 0111 - 1-50F1E1H2L1 |
| CE | COUNTY CURRENT EXPENSE | N/A | N/A | N/A | N/A | | |
| CNTYDD | DEVELOPMENTAL DISABILITIES | N/A | N/A | N/A | N/A | | |
| CNTYVET | VETERANS RELIEF | N/A | N/A | N/A | N/A | | |
| MENTAL | MENTAL HEALTH | N/A | N/A | N/A | N/A | | |
| ROADS | COUNTY ROADS | N/A | N/A | N/A | N/A | | |
| ROADSCU | COUNTY ROADS TO CUR EXP | N/A | N/A | N/A | N/A | | |
| HOSP2CASH | HOSP DIST #2 GENERAL | N/A | N/A | N/A | N/A | | |
| SCH50BOND | SCHOOL DIST #50 BOND 2016 | N/A | N/A | N/A | N/A | | |
| SCH50CP | SCHOOL DIST #50 CAP PROJ | N/A | N/A | N/A | N/A | | |
| SCH50MO | SCHOOL DIST #50 EP & O | N/A | N/A | N/A | N/A | | |
| CONSERVE | CONSERVATION FUTURES | N/A | N/A | N/A | N/A | | |
| EMS1 | FIRE DIST #1 EMS | N/A | N/A | N/A | N/A | | |
| FD1 | FIRE DIST #1 GENERAL | N/A | N/A | N/A | N/A | | |
| LIB1 | LIBRARY DIST #1 GENERAL | N/A | N/A | N/A | N/A | | |
| PORTPT | PORT OF PT GENERAL | N/A | N/A | N/A | N/A | | |
| PORTPTIDD | PORT OF PT IDD 2019 | N/A | N/A | N/A | N/A | | |
| PUD1 | PUD #1 GENERAL | N/A | N/A | N/A | N/A | | |
| STATE | STATE SCHOOL PART 1 | N/A | N/A | N/A | N/A | | |
| STATE2 | STATE SCHOOL PART 2 | N/A | N/A | N/A | N/A | | |
| | Total Tax Rate: | N/A | | | | | |
| | | | | Taxes w/Current Exemptions: | N/A | | |
| | | | | Taxes w/o Exemptions: | N/A | | |
Improvement / Building
| Improvement #1: | Residential Bldg | State Code: | 11 | 1637.0 sqft | Value: | $348,485 |
| Bathrooms (#): | 2 (FULL) | Bathrooms (#): | 1 (HALF) | | Bedrooms (#): | 1 | Exterior Wall: | SI/ST | | Fireplace: | PROPS-GOOD | Floor Construction: | FRAME | | Foundation: | PO&BL | Heating/Cooling: | HPUMP | | Inside Verify: | NO | Roof Cover: | COMP |
|
| | Type | Description | Class CD | Sub Class CD | Year Built | Area |
| | MA | Main Area | 4+ | 2S | 1981 | 597.0 |
| | MA2 | Second Floor Main Area | 4+ | 2S | 1981 | 800.0 |
| | MA3 | Third Floor Main Area | 4+ | 2S | 1981 | 240.0 |
| | HWPOR | House Wood Porch | 4 | * | 1981 | 300.0 |
| | HBAL | House Balcony | 4 | * | 1981 | 240.0 |
| | HDECK | House Deck | 4 | * | 1981 | 129.0 |
| | CARPTN | Carport W/O Floor | 3 | * | 1981 | 275.0 |
| | SHED | Shed (Table Not Dep) | 4 | * | 1981 | 96.0 |
Sketch
Property Image
Land
| 1 | 5560-1145L | OceanGrove Area of Good Wtr View Lots | 0.0000 | 0.00 | 0.00 | 0.00 | 1.00 | $102,000 | $0 |
Roll Value History
| 2025 | N/A | N/A | N/A | N/A | N/A |
| 2024 | $365,079 | $107,100 | $0 | $472,179 | $472,179 |
| 2023 | $301,970 | $97,000 | $0 | $398,970 | $398,970 |
| 2022 | $301,969 | $92,000 | $0 | $393,969 | $393,969 |
| 2021 | $219,614 | $78,100 | $0 | $297,714 | $297,714 |
Deed and Sales History
| 1 | 05/10/2024 | PRD | Personal Representatives Deed | LAWRENCE & JANICE LAYMAN | JANICE L LAYMAN | | | | 142582 | |
| 2 | 08/04/2014 | SWD | Statutory Warranty Deed | BARRY H SCHIESS & MARK H MAGILL | LAWRENCE & JANICE LAYMAN | | | $189,500.00 | 121668 | |
|   | |
| 3 | 09/26/2012 | SWD | Statutory Warranty Deed | PERREAULT TRSTE, PATRICIA | SCHIESS, BARRY/MAGILL, MARK | 0 | 0 | $154,400.00 | 118162 | 0 |
|   | |
| 4 | 01/18/2010 | QCD | Quit Claim Deed | PERREAULT, PATRICIA | PERREAULT REVOCABLE TRUST | 0 | 0 | $0.00 | 113975 | 0 |
Payout Agreement
| No payout information available.. |