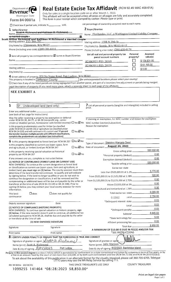
Property
Account |
| Property ID: | 35589 | Abbreviated Legal Description: | OCEAN GROVE ESTATES #2 BLK 4 LOTS 8 & 9 BND TGTH THRU LOT CONSOL THRU SDR2025-00037 |
| Parcel # / Geo ID: | 977100419 | Agent Code: | |
| Type: | Real | | |
| Tax Area: | 0111 - 1-50F1E1H2L1 | Land Use Code | 11 |
| Open Space: | N | DFL | N |
| Historic Property: | N | Remodel Property: | N |
| Multi-Family Redevelopment: | N | | |
| Township: | 30N | Section: | 24 |
| Range: | 2W |
Location |
| Address: | 204 COMBS ST PORT TOWNSEND, WA 98368 | Mapsco: | 059/008 |
| Neighborhood: | OCEANGROVE | Map ID: | |
| Neighborhood CD: | 5560 |
Owner |
| Name: | PAMELA & BRIAN WILCOX | Owner ID: | 111896 |
| Mailing Address: | 204 COMBS ST PORT TOWNSEND, WA 98368-9210 | % Ownership: | 100.0000000000% |
| | | Exemptions: | |
Pay Tax Due
There is currently No Amount Due on this property.
Taxes and Assessment Details
Property Tax Information as of
10/24/2025
Click on "Statement Details" to expand or collapse a tax statement.
* Please enter a valid date ** Please enter a valid date *
Statement Details |
| | TOTAL: | $0.00 | $0.00 | $0.00 | $0.00 | $0.00 | $0.00 |
|
| | $0.00 | $0.00 | $0.00 | $0.00 | $0.00 | $0.00 |
Values
| (+) Improvement Homesite Value: | + | $0 | |
| (+) Improvement Non-Homesite Value: | + | $527,428 | |
| (+) Land Homesite Value: | + | $0 | |
| (+) Land Non-Homesite Value: | + | $170,000 | |
| (+) Curr Use (HS): | + | $0 | $0 |
| (+) Curr Use (NHS): | + | $0 | $0 |
| | | -------------------------- | |
| (=) Market Value: | = | $697,428 | |
| (–) Productivity Loss: | – | $0 | |
| | | -------------------------- | |
| (=) Subtotal: | = | $697,428 | |
| (+) Senior Appraised Value: | + | $0 | |
| (+) Non-Senior Appraised Value: | + | $697,428 | |
| | | -------------------------- | |
| (=) Total Appraised Value: | = | $697,428 | |
| (–) Senior Exemption Loss: | – | $0 | |
| (–) Exemption Loss: | – | $0 | |
| | | -------------------------- | |
| (=) Taxable Value: | = | $697,428 | |
Taxing Jurisdiction
| Owner: | PAMELA & BRIAN WILCOX | | |
| % Ownership: | 100.0000000000% | | |
| Total Value: | N/A | | |
| Tax Area: | 0111 - 1-50F1E1H2L1 |
| CE | COUNTY CURRENT EXPENSE | N/A | N/A | N/A | N/A | | |
| CNTYDD | DEVELOPMENTAL DISABILITIES | N/A | N/A | N/A | N/A | | |
| CNTYVET | VETERANS RELIEF | N/A | N/A | N/A | N/A | | |
| MENTAL | MENTAL HEALTH | N/A | N/A | N/A | N/A | | |
| ROADS | COUNTY ROADS | N/A | N/A | N/A | N/A | | |
| ROADSCU | COUNTY ROADS TO CUR EXP | N/A | N/A | N/A | N/A | | |
| HOSP2CASH | HOSP DIST #2 GENERAL | N/A | N/A | N/A | N/A | | |
| SCH50BOND | SCHOOL DIST #50 BOND 2016 | N/A | N/A | N/A | N/A | | |
| SCH50CP | SCHOOL DIST #50 CAP PROJ | N/A | N/A | N/A | N/A | | |
| SCH50MO | SCHOOL DIST #50 EP & O | N/A | N/A | N/A | N/A | | |
| CONSERVE | CONSERVATION FUTURES | N/A | N/A | N/A | N/A | | |
| EMS1 | FIRE DIST #1 EMS | N/A | N/A | N/A | N/A | | |
| FD1 | FIRE DIST #1 GENERAL | N/A | N/A | N/A | N/A | | |
| LIB1 | LIBRARY DIST #1 GENERAL | N/A | N/A | N/A | N/A | | |
| PORTPT | PORT OF PT GENERAL | N/A | N/A | N/A | N/A | | |
| PORTPTIDD | PORT OF PT IDD 2019 | N/A | N/A | N/A | N/A | | |
| PUD1 | PUD #1 GENERAL | N/A | N/A | N/A | N/A | | |
| STATE | STATE SCHOOL PART 1 | N/A | N/A | N/A | N/A | | |
| STATE2 | STATE SCHOOL PART 2 | N/A | N/A | N/A | N/A | | |
| | Total Tax Rate: | N/A | | | | | |
| | | | | Taxes w/Current Exemptions: | N/A | | |
| | | | | Taxes w/o Exemptions: | N/A | | |
Improvement / Building
| Improvement #1: | Residential Bldg | State Code: | 11 | 3099.6 sqft | Value: | $527,428 |
| Bathrooms (#): | 3 (FULL) | Bedrooms (#): | 3 | | Exterior Wall: | SI/ST | Fireplace: | WD ST-GOOD | | Floor Construction: | FRAME | Foundation: | CONPR | | Heating/Cooling: | HPUMP | Roof Cover: | COMP |
|
| | Type | Description | Class CD | Sub Class CD | Year Built | Area |
| | MA | Main Area | 4 | 1S | 2000 | 1427.6 |
| | MA2 | Second Floor Main Area | 4 | 1S | 1993 | 1672.0 |
| | HBAL | House Balcony | 4 | * | 1993 | 692.0 |
| | HDECK | House Deck | 4 | * | 1993 | 120.0 |
| | GBLTIN | Builtin Garage | 3 | 1S | 1993 | 992.0 |
| | HWPOR | House Wood Porch | 4 | * | 2000 | 30.0 |
Sketch
Property Image
Land
| 1 | 5560-1147L | OceanGrove XS Lots for Good Wtr View Sites | 0.0000 | 0.00 | 0.00 | 0.00 | 1.00 | $50,000 | $0 |
| 2 | 5560-1145L | OceanGrove Area of Good Wtr View Lots | 0.0000 | 0.00 | 0.00 | 0.00 | 1.00 | $120,000 | $0 |
Roll Value History
| 2025 | N/A | N/A | N/A | N/A | N/A |
| 2024 | $586,680 | $126,000 | $0 | $712,680 | $712,680 |
| 2023 | $543,796 | $115,000 | $0 | $658,796 | $658,796 |
| 2022 | $543,796 | $110,000 | $0 | $653,796 | $653,796 |
| 2021 | $395,488 | $93,500 | $0 | $488,988 | $488,988 |
Deed and Sales History
| 1 | 04/15/2025 | LOT CERT | LOT CERTIFICATION | PAMELA & BRIAN WILCOX | PAMELA & BRIAN WILCOX | | | | 0 | AF#670912 |
| 2 | 12/09/2024 | SWD | Statutory Warranty Deed | SCOTT H KNOPH | PAMELA & BRIAN WILCOX | | | $707,400.00 | 143626 | |
| 3 | 12/14/2023 | QCD | Quit Claim Deed | SCOTT H KNOPH | SCOTT H KNOPH | | | | 142037 | |
| 4 | 04/16/2021 | SWD | Statutory Warranty Deed | KNOPH FAMILY TRUST | SCOTT H KNOPH | | | | 136643 | |
| 5 | 05/12/2014 | SWD | Statutory Warranty Deed | SCOTT H KNOPH | KNOPH FAMILY TRUST | | | | 121170 | |
| 6 | 08/29/2012 | QCD | Quit Claim Deed | KNOPH, DARLENE P | KNOPH, SCOTT H | 0 | 0 | $0.00 | 118008 | 0 |
| 7 | 03/15/2010 | QCD | Quit Claim Deed | KNOPH, CECELIA JA A ESTAT | KNOPH, SCOTT H | 0 | 0 | $0.00 | 114147 | 0 |
| 8 | 02/10/1993 | SWD | Statutory Warranty Deed | CROPLEY, MALCOLM/DORTHY | KNOPH, SCOTT/CECELIA | 0 | 0 | $0.00 | 70430 | 0 |
Payout Agreement
| No payout information available.. |