Property
Account |
| Property ID: | 35674 | Abbreviated Legal Description: | OCEAN GROVE ESTATES #2 BLK 8 LOT 10 |
| Parcel # / Geo ID: | 977100816 | Agent Code: | |
| Type: | Real | | |
| Tax Area: | 0111 - 1-50F1E1H2L1 | Land Use Code | 11 |
| Open Space: | N | DFL | N |
| Historic Property: | N | Remodel Property: | N |
| Multi-Family Redevelopment: | N | | |
| Township: | 30N | Section: | 24 |
| Range: | 2W |
Location |
| Address: | 124 SWANSON AVE PORT TOWNSEND, WA 98368 | Mapsco: | 061/008 |
| Neighborhood: | OCEANGROVE | Map ID: | |
| Neighborhood CD: | 5560 |
Owner |
| Name: | ERIN D & RYAN C BAKKEN | Owner ID: | 112525 |
| Mailing Address: | 124 SWANSON AVE PORT TOWNSEND, WA 98368-9112 | % Ownership: | 100.0000000000% |
| | | Exemptions: | |
Pay Tax Due
There is currently No Amount Due on this property.
Taxes and Assessment Details
Property Tax Information as of
10/24/2025
Click on "Statement Details" to expand or collapse a tax statement.
* Please enter a valid date ** Please enter a valid date *
Statement Details |
| | TOTAL: | $0.00 | $0.00 | $0.00 | $0.00 | $0.00 | $0.00 |
|
| | $0.00 | $0.00 | $0.00 | $0.00 | $0.00 | $0.00 |
Values
| (+) Improvement Homesite Value: | + | $0 | |
| (+) Improvement Non-Homesite Value: | + | $371,741 | |
| (+) Land Homesite Value: | + | $0 | |
| (+) Land Non-Homesite Value: | + | $100,000 | |
| (+) Curr Use (HS): | + | $0 | $0 |
| (+) Curr Use (NHS): | + | $0 | $0 |
| | | -------------------------- | |
| (=) Market Value: | = | $471,741 | |
| (–) Productivity Loss: | – | $0 | |
| | | -------------------------- | |
| (=) Subtotal: | = | $471,741 | |
| (+) Senior Appraised Value: | + | $0 | |
| (+) Non-Senior Appraised Value: | + | $471,741 | |
| | | -------------------------- | |
| (=) Total Appraised Value: | = | $471,741 | |
| (–) Senior Exemption Loss: | – | $0 | |
| (–) Exemption Loss: | – | $0 | |
| | | -------------------------- | |
| (=) Taxable Value: | = | $471,741 | |
Taxing Jurisdiction
| Owner: | ERIN D & RYAN C BAKKEN | | |
| % Ownership: | 100.0000000000% | | |
| Total Value: | N/A | | |
| Tax Area: | 0111 - 1-50F1E1H2L1 |
| CE | COUNTY CURRENT EXPENSE | N/A | N/A | N/A | N/A | | |
| CNTYDD | DEVELOPMENTAL DISABILITIES | N/A | N/A | N/A | N/A | | |
| CNTYVET | VETERANS RELIEF | N/A | N/A | N/A | N/A | | |
| MENTAL | MENTAL HEALTH | N/A | N/A | N/A | N/A | | |
| ROADS | COUNTY ROADS | N/A | N/A | N/A | N/A | | |
| ROADSCU | COUNTY ROADS TO CUR EXP | N/A | N/A | N/A | N/A | | |
| HOSP2CASH | HOSP DIST #2 GENERAL | N/A | N/A | N/A | N/A | | |
| SCH50BOND | SCHOOL DIST #50 BOND 2016 | N/A | N/A | N/A | N/A | | |
| SCH50CP | SCHOOL DIST #50 CAP PROJ | N/A | N/A | N/A | N/A | | |
| SCH50MO | SCHOOL DIST #50 EP & O | N/A | N/A | N/A | N/A | | |
| CONSERVE | CONSERVATION FUTURES | N/A | N/A | N/A | N/A | | |
| EMS1 | FIRE DIST #1 EMS | N/A | N/A | N/A | N/A | | |
| FD1 | FIRE DIST #1 GENERAL | N/A | N/A | N/A | N/A | | |
| LIB1 | LIBRARY DIST #1 GENERAL | N/A | N/A | N/A | N/A | | |
| PORTPT | PORT OF PT GENERAL | N/A | N/A | N/A | N/A | | |
| PORTPTIDD | PORT OF PT IDD 2019 | N/A | N/A | N/A | N/A | | |
| PUD1 | PUD #1 GENERAL | N/A | N/A | N/A | N/A | | |
| STATE | STATE SCHOOL PART 1 | N/A | N/A | N/A | N/A | | |
| STATE2 | STATE SCHOOL PART 2 | N/A | N/A | N/A | N/A | | |
| | Total Tax Rate: | N/A | | | | | |
| | | | | Taxes w/Current Exemptions: | N/A | | |
| | | | | Taxes w/o Exemptions: | N/A | | |
Improvement / Building
| Improvement #1: | Residential Bldg | State Code: | 11 | 1464.0 sqft | Value: | $371,741 |
| Bathrooms (#): | 1 (FULL) | Bedrooms (#): | 2 | | Exterior Wall: | SI/ST | Floor Construction: | FRAME | | Foundation: | CONPR | Heating/Cooling: | ELBB | | Roof Cover: | COMP |   |   |
|
| | Type | Description | Class CD | Sub Class CD | Year Built | Area |
| | MA | Main Area | 5 | 2S | 1994 | 552.0 |
| | MA2 | Second Floor Main Area | 5 | 2S | 1994 | 912.0 |
| | PATIO | House Patio | 5 | * | 1994 | 180.0 |
| | HDECK | House Deck | 5 | * | 1994 | 24.0 |
| | HDECK | House Deck | 5 | * | 1994 | 81.0 |
| | GBLTIN | Builtin Garage | 4 | 2S | 1994 | 360.0 |
| | SHED | Shed (Table Not Dep) | 4 | * | 1994 | 176.0 |
Sketch
Property Image
Land
| 1 | 5560-1175L | OceanGrove Area of Terr View Lots | 0.0000 | 0.00 | 0.00 | 0.00 | 1.00 | $100,000 | $0 |
Roll Value History
| 2025 | N/A | N/A | N/A | N/A | N/A |
| 2024 | $389,443 | $105,000 | $0 | $494,443 | $494,443 |
| 2023 | $366,806 | $95,000 | $0 | $461,806 | $461,806 |
| 2022 | $366,806 | $90,000 | $0 | $456,806 | $456,806 |
| 2021 | $266,768 | $71,500 | $0 | $338,268 | $338,268 |
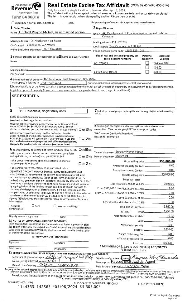
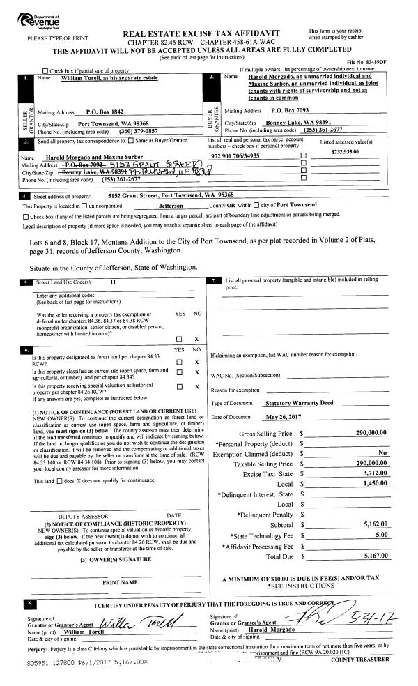
Deed and Sales History
| 1 | 04/29/2025 | SWD | Statutory Warranty Deed | DONALD E CHARLTON JR | ERIN D & RYAN C BAKKEN | | | $566,500.00 | 144246 | |
| 2 | 09/20/2005 | SWD | Statutory Warranty Deed | ARMSTRONG, LOREN D | CHARLTON JR, DONALD/FREDRICA | 0 | 0 | $250,000.00 | 104886 | 0 |
| 3 | 08/13/2001 | SWD | Statutory Warranty Deed | BURKE, EUGENE A/MARILYN D | ARMSTRONG, LOREN D | 0 | 0 | $129,000.00 | 92857 | 0 |
| 4 | 05/15/1995 | QCD | Quit Claim Deed | BURKE, EUGENE A/MARILYN D | BURKE FAMILY TRUST | 0 | 0 | $0.00 | 78448 | 0 |
Payout Agreement
| No payout information available.. |