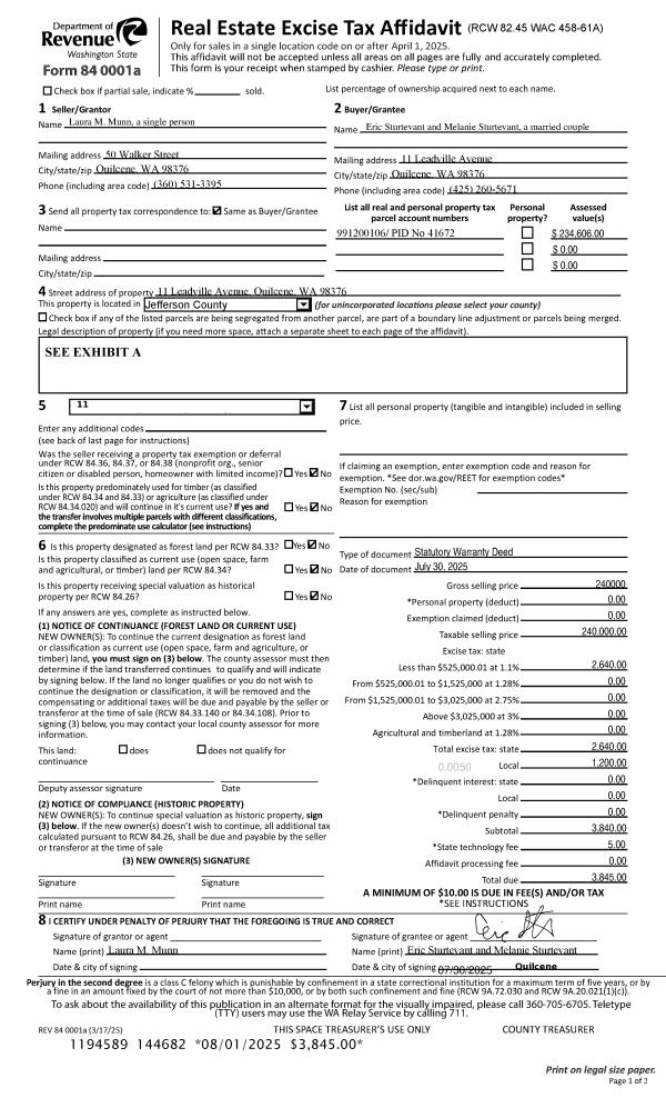
Property
Account |
| Property ID: | 35844 | Abbreviated Legal Description: | HOYT SHORT PLAT LOT 1 S/EASE 3.00A |
| Parcel # / Geo ID: | 977700088 | Agent Code: | |
| Type: | Real | | |
| Tax Area: | 0211 - 1-49F1E1H2L1 | Land Use Code | 91 |
| Open Space: | N | DFL | N |
| Historic Property: | N | Remodel Property: | N |
| Multi-Family Redevelopment: | N | | |
| Township: | 29N | Section: | 4 |
| Range: | 1E |
Location |
| Address: | 45 HOYT RD NORDLAND, WA 98358 | Mapsco: | 233/063 |
| Neighborhood: | OLSON & HAMBLETONS LP RUES1&2,JANSEN,HOYT,FORD,EM WRIGHT SP | Map ID: | |
| Neighborhood CD: | 4615 |
Owner |
| Name: | ANN TESORA | Owner ID: | 113184 |
| Mailing Address: | JAMES SINACORE 635 NE MORGAN ST PORTLAND, OR 97211-3569 | % Ownership: | 100.0000000000% |
| | | Exemptions: | |
Pay Tax Due
There is currently No Amount Due on this property.
Taxes and Assessment Details
Property Tax Information as of
10/24/2025
Click on "Statement Details" to expand or collapse a tax statement.
* Please enter a valid date ** Please enter a valid date *
Statement Details |
| | TOTAL: | $0.00 | $0.00 | $0.00 | $0.00 | $0.00 | $0.00 |
|
| | $0.00 | $0.00 | $0.00 | $0.00 | $0.00 | $0.00 |
Values
| (+) Improvement Homesite Value: | + | $0 | |
| (+) Improvement Non-Homesite Value: | + | $0 | |
| (+) Land Homesite Value: | + | $244,200 | |
| (+) Land Non-Homesite Value: | + | $0 | |
| (+) Curr Use (HS): | + | $0 | $0 |
| (+) Curr Use (NHS): | + | $0 | $0 |
| | | -------------------------- | |
| (=) Market Value: | = | $244,200 | |
| (–) Productivity Loss: | – | $0 | |
| | | -------------------------- | |
| (=) Subtotal: | = | $244,200 | |
| (+) Senior Appraised Value: | + | $0 | |
| (+) Non-Senior Appraised Value: | + | $244,200 | |
| | | -------------------------- | |
| (=) Total Appraised Value: | = | $244,200 | |
| (–) Senior Exemption Loss: | – | $0 | |
| (–) Exemption Loss: | – | $0 | |
| | | -------------------------- | |
| (=) Taxable Value: | = | $244,200 | |
Taxing Jurisdiction
| Owner: | ANN TESORA | | |
| % Ownership: | 100.0000000000% | | |
| Total Value: | N/A | | |
| Tax Area: | 0211 - 1-49F1E1H2L1 |
| CE | COUNTY CURRENT EXPENSE | N/A | N/A | N/A | N/A | | |
| CNTYDD | DEVELOPMENTAL DISABILITIES | N/A | N/A | N/A | N/A | | |
| CNTYVET | VETERANS RELIEF | N/A | N/A | N/A | N/A | | |
| MENTAL | MENTAL HEALTH | N/A | N/A | N/A | N/A | | |
| ROADS | COUNTY ROADS | N/A | N/A | N/A | N/A | | |
| ROADSCU | COUNTY ROADS TO CUR EXP | N/A | N/A | N/A | N/A | | |
| HOSP2CASH | HOSP DIST #2 GENERAL | N/A | N/A | N/A | N/A | | |
| SCH49CP | SCHOOL DIST #49 CAP PROJ | N/A | N/A | N/A | N/A | | |
| SCH49MO | SCHOOL DIST #49 EP & O | N/A | N/A | N/A | N/A | | |
| CONSERVE | CONSERVATION FUTURES | N/A | N/A | N/A | N/A | | |
| EMS1 | FIRE DIST #1 EMS | N/A | N/A | N/A | N/A | | |
| FD1 | FIRE DIST #1 GENERAL | N/A | N/A | N/A | N/A | | |
| LIB1 | LIBRARY DIST #1 GENERAL | N/A | N/A | N/A | N/A | | |
| PORTPT | PORT OF PT GENERAL | N/A | N/A | N/A | N/A | | |
| PORTPTIDD | PORT OF PT IDD 2019 | N/A | N/A | N/A | N/A | | |
| PUD1 | PUD #1 GENERAL | N/A | N/A | N/A | N/A | | |
| STATE | STATE SCHOOL PART 1 | N/A | N/A | N/A | N/A | | |
| STATE2 | STATE SCHOOL PART 2 | N/A | N/A | N/A | N/A | | |
| | Total Tax Rate: | N/A | | | | | |
| | | | | Taxes w/Current Exemptions: | N/A | | |
| | | | | Taxes w/o Exemptions: | N/A | | |
Improvement / Building
Sketch
| No sketches available for this property. |
Property Image
Land
| 1 | 1571A | Terr/Mtn/No View <6 Acres | 2.0000 | 87120.00 | 0.00 | 0.00 | 0.00 | $46,200 | $0 |
| 2 | 4615-1355S | Residential Sites 1+/- Ac Water Views | 1.0000 | 43560.00 | 0.00 | 0.00 | 1.00 | $198,000 | $0 |
Roll Value History
| 2025 | N/A | N/A | N/A | N/A | N/A |
| 2024 | $34,701 | $161,700 | $0 | $196,401 | $196,401 |
| 2023 | $9,736 | $147,500 | $0 | $157,236 | $157,236 |
| 2022 | $7,810 | $122,750 | $0 | $130,560 | $130,560 |
| 2021 | $6,850 | $109,250 | $0 | $116,100 | $116,100 |
Deed and Sales History
| 1 | 08/15/2025 | QCD | Quit Claim Deed | GRACE M JONES | JAMES SINACORE | | | | 144795 | |
| 2 | 08/15/2025 | SWD | Statutory Warranty Deed | ZANE D TESTERMAN | ANN TESORA | | | $381,200.00 | 144794 | |
| 3 | 10/25/2023 | SWD | Statutory Warranty Deed | TAMERA M PAYNE | ZANE D TESTERMAN | | | $295,000.00 | 141785 | |
| 4 | 12/12/1995 | SWD | Statutory Warranty Deed | HUNTER, LARRY M | PAYNE, TAMERA MAE | 0 | 0 | $41,800.00 | 78461 | 0 |
Payout Agreement
| No payout information available.. |