Property
Account |
| Property ID: | 36056 | Abbreviated Legal Description: | OLYMPIC TERRACE DIV 2 PH 1 LOT 10 SUBJ TO EASE/REST OF RCRD |
| Parcel # / Geo ID: | 978802010 | Agent Code: | |
| Type: | Real | | |
| Tax Area: | 0213 - 1-49F1E1H2L1 | Land Use Code | 11 |
| Open Space: | N | DFL | N |
| Historic Property: | N | Remodel Property: | N |
| Multi-Family Redevelopment: | N | | |
| Township: | 28N | Section: | 21 |
| Range: | 1E |
Location |
| Address: | 570 MT CONSTANCE WAY PORT LUDLOW, WA 98365 | Mapsco: | 080/010 |
| Neighborhood: | S20-23 T 28N R1E, OLYMPIC TERRACE | Map ID: | |
| Neighborhood CD: | 3350 |
Owner |
| Name: | WILLIAM DENNIS JR & MONICA MARCOUX | Owner ID: | 99863 |
| Mailing Address: | 570 MOUNT CONSTANCE WAY PORT LUDLOW, WA 98365 | % Ownership: | 100.0000000000% |
| | | Exemptions: | |
Pay Tax Due
There is currently No Amount Due on this property.
Taxes and Assessment Details
Property Tax Information as of
10/24/2025
Click on "Statement Details" to expand or collapse a tax statement.
* Please enter a valid date ** Please enter a valid date *
Statement Details |
| | TOTAL: | $0.00 | $0.00 | $0.00 | $0.00 | $0.00 | $0.00 |
|
| | $0.00 | $0.00 | $0.00 | $0.00 | $0.00 | $0.00 |
Values
| (+) Improvement Homesite Value: | + | $0 | |
| (+) Improvement Non-Homesite Value: | + | $680,406 | |
| (+) Land Homesite Value: | + | $0 | |
| (+) Land Non-Homesite Value: | + | $110,250 | |
| (+) Curr Use (HS): | + | $0 | $0 |
| (+) Curr Use (NHS): | + | $0 | $0 |
| | | -------------------------- | |
| (=) Market Value: | = | $790,656 | |
| (–) Productivity Loss: | – | $0 | |
| | | -------------------------- | |
| (=) Subtotal: | = | $790,656 | |
| (+) Senior Appraised Value: | + | $0 | |
| (+) Non-Senior Appraised Value: | + | $790,656 | |
| | | -------------------------- | |
| (=) Total Appraised Value: | = | $790,656 | |
| (–) Senior Exemption Loss: | – | $0 | |
| (–) Exemption Loss: | – | $0 | |
| | | -------------------------- | |
| (=) Taxable Value: | = | $790,656 | |
Taxing Jurisdiction
| Owner: | WILLIAM DENNIS JR & MONICA MARCOUX | | |
| % Ownership: | 100.0000000000% | | |
| Total Value: | N/A | | |
| Tax Area: | 0213 - 1-49F1E1H2L1 |
| CE | COUNTY CURRENT EXPENSE | N/A | N/A | N/A | N/A | | |
| CNTYDD | DEVELOPMENTAL DISABILITIES | N/A | N/A | N/A | N/A | | |
| CNTYVET | VETERANS RELIEF | N/A | N/A | N/A | N/A | | |
| MENTAL | MENTAL HEALTH | N/A | N/A | N/A | N/A | | |
| ROADS | COUNTY ROADS | N/A | N/A | N/A | N/A | | |
| ROADSCU | COUNTY ROADS TO CUR EXP | N/A | N/A | N/A | N/A | | |
| HOSP2CASH | HOSP DIST #2 GENERAL | N/A | N/A | N/A | N/A | | |
| SCH49CP | SCHOOL DIST #49 CAP PROJ | N/A | N/A | N/A | N/A | | |
| SCH49MO | SCHOOL DIST #49 EP & O | N/A | N/A | N/A | N/A | | |
| CONSERVE | CONSERVATION FUTURES | N/A | N/A | N/A | N/A | | |
| EMS1 | FIRE DIST #1 EMS | N/A | N/A | N/A | N/A | | |
| FD1 | FIRE DIST #1 GENERAL | N/A | N/A | N/A | N/A | | |
| LIB1 | LIBRARY DIST #1 GENERAL | N/A | N/A | N/A | N/A | | |
| PORTPT | PORT OF PT GENERAL | N/A | N/A | N/A | N/A | | |
| PORTPTIDD | PORT OF PT IDD 2019 | N/A | N/A | N/A | N/A | | |
| PUD1 | PUD #1 GENERAL | N/A | N/A | N/A | N/A | | |
| STATE | STATE SCHOOL PART 1 | N/A | N/A | N/A | N/A | | |
| STATE2 | STATE SCHOOL PART 2 | N/A | N/A | N/A | N/A | | |
| | Total Tax Rate: | N/A | | | | | |
| | | | | Taxes w/Current Exemptions: | N/A | | |
| | | | | Taxes w/o Exemptions: | N/A | | |
Improvement / Building
| Improvement #1: | Residential Bldg | State Code: | 11 | 3157.0 sqft | Value: | $680,406 |
| Bathrooms (#): | 3 (FULL) | Bedrooms (#): | 3 | | Exterior Wall: | SI/ST | Fireplace: | SIN 1-GOOD | | Floor Construction: | FRAME | Foundation: | CONPR | | Heating/Cooling: | HPUMP | Inside Verify: | NO | | Roof Cover: | COMP |   |   |
|
| | Type | Description | Class CD | Sub Class CD | Year Built | Area |
| | MA | Main Area | 4+ | 15SF | 2007 | 2306.0 |
| | MA2 | Second Floor Main Area | 4+ | 15SF | 2007 | 851.0 |
| | HCPOR | House Concrete Porch | 5 | 15SF | 2007 | 118.0 |
| | PATIO | House Patio | 5 | 15SF | 2007 | 70.0 |
| | GATT | House Attached Garage | 5 | 15SF | 2007 | 482.0 |
| | CONCD | Concrete Drive | 5 | 15SF | 2007 | 726.0 |
Sketch
| No sketches available for this property. |
Property Image
Land
| 1 | 3350-1285L | No View Lots Olympic Terrace | 0.0000 | 0.00 | 0.00 | 0.00 | 1.00 | $110,250 | $0 |
Roll Value History
| 2025 | N/A | N/A | N/A | N/A | N/A |
| 2024 | $680,406 | $110,250 | $0 | $790,656 | $790,656 |
| 2023 | $650,823 | $100,000 | $0 | $750,823 | $750,823 |
| 2022 | $650,823 | $95,000 | $0 | $745,823 | $745,823 |
| 2021 | $474,956 | $87,500 | $0 | $562,456 | $562,456 |
Deed and Sales History
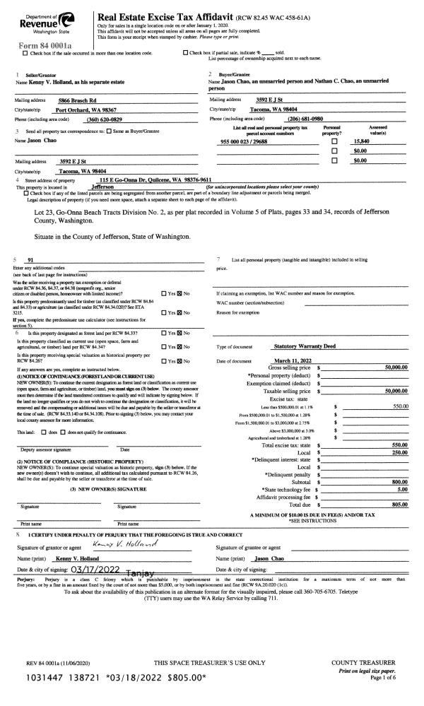
| 1 | 08/04/2018 | SWD | Statutory Warranty Deed | KEITH & CARLA GUISE | WILLIAM DENNIS JR & MONICA MARCOUX | | | $497,400.00 | 130957 | |
| 2 | 07/05/2016 | SWD | Statutory Warranty Deed | DANIEL L & ALLISON D NEEDLES | KEITH & CARLA GUISE | | | $443,000.00 | 125788 | |
| 3 | 02/25/2014 | SWD | Statutory Warranty Deed | CRAIG E DOWNS | DANIEL L & ALLISON D NEEDLES | | | $390,000.00 | 120811 | |
| 4 | 09/19/2011 | SWD | Statutory Warranty Deed | PORT LUDLOW ASSOCIATES LL | DOWNS, CRAIG/DEBORAH R | 0 | 0 | $375,000.00 | 116546 | 0 |
Payout Agreement
| No payout information available.. |