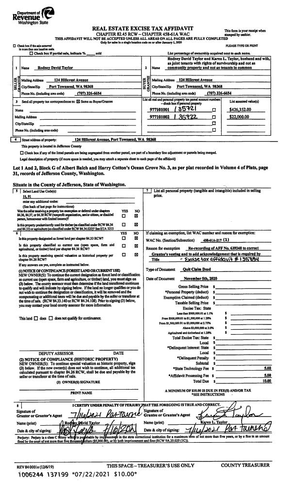
Property
Account |
| Property ID: | 36065 | Abbreviated Legal Description: | OLYMPIC TERRACE DIV 2 PH 1 LOT 19 SUBJ TO EASE/REST OF RCRD |
| Parcel # / Geo ID: | 978802019 | Agent Code: | |
| Type: | Real | | |
| Tax Area: | 0213 - 1-49F1E1H2L1 | Land Use Code | 11 |
| Open Space: | N | DFL | N |
| Historic Property: | N | Remodel Property: | N |
| Multi-Family Redevelopment: | N | | |
| Township: | 28N | Section: | 21 |
| Range: | 1E |
Location |
| Address: | 77 SNIDER PEAK LN PORT LUDLOW, WA 98365-9766 | Mapsco: | 080/019 |
| Neighborhood: | S20-23 T 28N R1E, OLYMPIC TERRACE | Map ID: | |
| Neighborhood CD: | 3350 |
Owner |
| Name: | ALBLINGER REVOCABLE LIVING TRUST | Owner ID: | 106142 |
| Mailing Address: | MICHELE B ALBLINGER RUSTEE 77 SNIDER PEAK LN PORT LUDLOW, WA 98365-5001 | % Ownership: | 100.0000000000% |
| | | Exemptions: | |
Pay Tax Due
There is currently No Amount Due on this property.
Taxes and Assessment Details
Property Tax Information as of
10/24/2025
Click on "Statement Details" to expand or collapse a tax statement.
* Please enter a valid date ** Please enter a valid date *
Statement Details |
| | TOTAL: | $0.00 | $0.00 | $0.00 | $0.00 | $0.00 | $0.00 |
|
| | $0.00 | $0.00 | $0.00 | $0.00 | $0.00 | $0.00 |
Values
| (+) Improvement Homesite Value: | + | $0 | |
| (+) Improvement Non-Homesite Value: | + | $536,260 | |
| (+) Land Homesite Value: | + | $0 | |
| (+) Land Non-Homesite Value: | + | $141,750 | |
| (+) Curr Use (HS): | + | $0 | $0 |
| (+) Curr Use (NHS): | + | $0 | $0 |
| | | -------------------------- | |
| (=) Market Value: | = | $678,010 | |
| (–) Productivity Loss: | – | $0 | |
| | | -------------------------- | |
| (=) Subtotal: | = | $678,010 | |
| (+) Senior Appraised Value: | + | $0 | |
| (+) Non-Senior Appraised Value: | + | $678,010 | |
| | | -------------------------- | |
| (=) Total Appraised Value: | = | $678,010 | |
| (–) Senior Exemption Loss: | – | $0 | |
| (–) Exemption Loss: | – | $0 | |
| | | -------------------------- | |
| (=) Taxable Value: | = | $678,010 | |
Taxing Jurisdiction
| Owner: | ALBLINGER REVOCABLE LIVING TRUST | | |
| % Ownership: | 100.0000000000% | | |
| Total Value: | N/A | | |
| Tax Area: | 0213 - 1-49F1E1H2L1 |
| CE | COUNTY CURRENT EXPENSE | N/A | N/A | N/A | N/A | | |
| CNTYDD | DEVELOPMENTAL DISABILITIES | N/A | N/A | N/A | N/A | | |
| CNTYVET | VETERANS RELIEF | N/A | N/A | N/A | N/A | | |
| MENTAL | MENTAL HEALTH | N/A | N/A | N/A | N/A | | |
| ROADS | COUNTY ROADS | N/A | N/A | N/A | N/A | | |
| ROADSCU | COUNTY ROADS TO CUR EXP | N/A | N/A | N/A | N/A | | |
| HOSP2CASH | HOSP DIST #2 GENERAL | N/A | N/A | N/A | N/A | | |
| SCH49CP | SCHOOL DIST #49 CAP PROJ | N/A | N/A | N/A | N/A | | |
| SCH49MO | SCHOOL DIST #49 EP & O | N/A | N/A | N/A | N/A | | |
| CONSERVE | CONSERVATION FUTURES | N/A | N/A | N/A | N/A | | |
| EMS1 | FIRE DIST #1 EMS | N/A | N/A | N/A | N/A | | |
| FD1 | FIRE DIST #1 GENERAL | N/A | N/A | N/A | N/A | | |
| LIB1 | LIBRARY DIST #1 GENERAL | N/A | N/A | N/A | N/A | | |
| PORTPT | PORT OF PT GENERAL | N/A | N/A | N/A | N/A | | |
| PORTPTIDD | PORT OF PT IDD 2019 | N/A | N/A | N/A | N/A | | |
| PUD1 | PUD #1 GENERAL | N/A | N/A | N/A | N/A | | |
| STATE | STATE SCHOOL PART 1 | N/A | N/A | N/A | N/A | | |
| STATE2 | STATE SCHOOL PART 2 | N/A | N/A | N/A | N/A | | |
| | Total Tax Rate: | N/A | | | | | |
| | | | | Taxes w/Current Exemptions: | N/A | | |
| | | | | Taxes w/o Exemptions: | N/A | | |
Improvement / Building
| Improvement #1: | Residential Bldg | State Code: | 11 | 1667.5 sqft | Value: | $536,260 |
| Bathrooms (#): | 3 (FULL) | Bedrooms (#): | 3 | | Exterior Wall: | SI/ST | Fireplace: | SIN 1-GOOD | | Floor Construction: | FRAME | Foundation: | CONPR | | Heating/Cooling: | HPUMP | Inside Verify: | NO | | Roof Cover: | COMP |   |   |
|
| | Type | Description | Class CD | Sub Class CD | Year Built | Area |
| | MA | Main Area | 5 | 1S | 2016 | 1667.5 |
| | HCPOR | House Concrete Porch | 5 | 1S | 2016 | 164.0 |
| | PATIO | House Patio | 5 | 1S | 2016 | 332.5 |
| | GATT | House Attached Garage | 5 | 1S | 2016 | 484.0 |
| | CONCD | Concrete Drive | 5 | 1S | 2016 | 1000.0 |
| | HWPOR | House Wood Porch | 5 | 1S | 2016 | 34.0 |
Sketch
Property Image
Land
| 1 | 3350-1273L | Superior Mtn View Lots Olympic Terrace | 0.0000 | 0.00 | 0.00 | 0.00 | 1.00 | $141,750 | $0 |
Roll Value History
| 2025 | N/A | N/A | N/A | N/A | N/A |
| 2024 | $536,260 | $141,750 | $0 | $678,010 | $678,010 |
| 2023 | $512,944 | $130,000 | $0 | $642,944 | $642,944 |
| 2022 | $512,944 | $125,000 | $0 | $637,944 | $637,944 |
| 2021 | $361,650 | $112,500 | $0 | $474,150 | $474,150 |
Deed and Sales History
| 1 | 11/16/2021 | SWD | Statutory Warranty Deed | MICHELE B ALBLINGER | ALBLINGER REVOCABLE LIVING TRUST | | | | 138207 | |
| 2 | 02/28/2018 | SWD | Statutory Warranty Deed | PORT LUDLOW ASSOCIATES LLC | MICHELE B ALBLINGER | | | $499,700.00 | 129690 | |
Payout Agreement
| No payout information available.. |