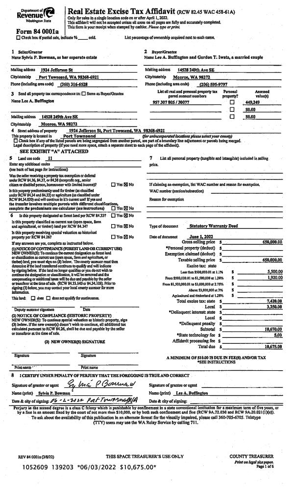
Property
Account |
| Property ID: | 36108 | Abbreviated Legal Description: | OLYMPUS BEACH 24 (LESS TAX NO. 31) TL TX II .76CH |
| Parcel # / Geo ID: | 978900016 | Agent Code: | |
| Type: | Real | | |
| Tax Area: | 0213 - 1-49F1E1H2L1 | Land Use Code | 11 |
| Open Space: | N | DFL | N |
| Historic Property: | N | Remodel Property: | N |
| Multi-Family Redevelopment: | N | | |
| Township: | 28N | Section: | 4 |
| Range: | 1E |
Location |
| Address: | 460 OLYMPUS BLVD PORT LUDLOW, WA 98365 | Mapsco: | 081/019 |
| Neighborhood: | BASALT BCH,N LUDLOW BCH,OLYMPUS BCH; EDSALL/GREEN/BERNARD SP | Map ID: | |
| Neighborhood CD: | 3310 |
Owner |
| Name: | THOMAS BALZARINI & MILL HUDSON | Owner ID: | 108092 |
| Mailing Address: | PO BOX 870 PORT HADLOCK, WA 98339 | % Ownership: | 100.0000000000% |
| | | Exemptions: | |
Pay Tax Due
There is currently No Amount Due on this property.
Taxes and Assessment Details
Property Tax Information as of
10/24/2025
Click on "Statement Details" to expand or collapse a tax statement.
* Please enter a valid date ** Please enter a valid date *
Statement Details |
| | TOTAL: | $0.00 | $0.00 | $0.00 | $0.00 | $0.00 | $0.00 |
|
| | $0.00 | $0.00 | $0.00 | $0.00 | $0.00 | $0.00 |
Values
| (+) Improvement Homesite Value: | + | $0 | |
| (+) Improvement Non-Homesite Value: | + | $652,612 | |
| (+) Land Homesite Value: | + | $0 | |
| (+) Land Non-Homesite Value: | + | $254,438 | |
| (+) Curr Use (HS): | + | $0 | $0 |
| (+) Curr Use (NHS): | + | $0 | $0 |
| | | -------------------------- | |
| (=) Market Value: | = | $907,050 | |
| (–) Productivity Loss: | – | $0 | |
| | | -------------------------- | |
| (=) Subtotal: | = | $907,050 | |
| (+) Senior Appraised Value: | + | $0 | |
| (+) Non-Senior Appraised Value: | + | $907,050 | |
| | | -------------------------- | |
| (=) Total Appraised Value: | = | $907,050 | |
| (–) Senior Exemption Loss: | – | $0 | |
| (–) Exemption Loss: | – | $0 | |
| | | -------------------------- | |
| (=) Taxable Value: | = | $907,050 | |
Taxing Jurisdiction
| Owner: | THOMAS BALZARINI & MILL HUDSON | | |
| % Ownership: | 100.0000000000% | | |
| Total Value: | N/A | | |
| Tax Area: | 0213 - 1-49F1E1H2L1 |
| CE | COUNTY CURRENT EXPENSE | N/A | N/A | N/A | N/A | | |
| CNTYDD | DEVELOPMENTAL DISABILITIES | N/A | N/A | N/A | N/A | | |
| CNTYVET | VETERANS RELIEF | N/A | N/A | N/A | N/A | | |
| MENTAL | MENTAL HEALTH | N/A | N/A | N/A | N/A | | |
| ROADS | COUNTY ROADS | N/A | N/A | N/A | N/A | | |
| ROADSCU | COUNTY ROADS TO CUR EXP | N/A | N/A | N/A | N/A | | |
| HOSP2CASH | HOSP DIST #2 GENERAL | N/A | N/A | N/A | N/A | | |
| SCH49CP | SCHOOL DIST #49 CAP PROJ | N/A | N/A | N/A | N/A | | |
| SCH49MO | SCHOOL DIST #49 EP & O | N/A | N/A | N/A | N/A | | |
| CONSERVE | CONSERVATION FUTURES | N/A | N/A | N/A | N/A | | |
| EMS1 | FIRE DIST #1 EMS | N/A | N/A | N/A | N/A | | |
| FD1 | FIRE DIST #1 GENERAL | N/A | N/A | N/A | N/A | | |
| LIB1 | LIBRARY DIST #1 GENERAL | N/A | N/A | N/A | N/A | | |
| PORTPT | PORT OF PT GENERAL | N/A | N/A | N/A | N/A | | |
| PORTPTIDD | PORT OF PT IDD 2019 | N/A | N/A | N/A | N/A | | |
| PUD1 | PUD #1 GENERAL | N/A | N/A | N/A | N/A | | |
| STATE | STATE SCHOOL PART 1 | N/A | N/A | N/A | N/A | | |
| STATE2 | STATE SCHOOL PART 2 | N/A | N/A | N/A | N/A | | |
| | Total Tax Rate: | N/A | | | | | |
| | | | | Taxes w/Current Exemptions: | N/A | | |
| | | | | Taxes w/o Exemptions: | N/A | | |
Improvement / Building
| Improvement #1: | Residential Bldg | State Code: | 11 | 1884.0 sqft | Value: | $652,612 |
| Bathrooms (#): | 2 (FULL) | Bedrooms (#): | 1 | | Exterior Wall: | SI/ST | Foundation: | CONPR | | Roof Cover: | METAL |   |   |
|
| | Type | Description | Class CD | Sub Class CD | Year Built | Area |
| | MA | Main Area | 4 | 15SF | 2023 | 1884.0 |
| | BSMTF | House basement finished | 4 | 15SF | 2023 | 1884.0 |
| | DECK | Deck (Table Not Dep) | 3 | 15SF | 2023 | 698.0 |
| | HRPO | House Roof Patio | 3 | 15SF | 2023 | 630.0 |
Sketch
Property Image
Land
| 1 | 9301F | Tidelands | 0.0000 | 0.00 | 0.00 | 0.00 | 0.00 | $1,438 | $0 |
| 2 | 3310-1115F | Low/Medium Bank Wtrfrt OlympusBch/NorthLudlowTrts | 0.0000 | 0.00 | 0.00 | 0.00 | 0.00 | $253,000 | $0 |
Roll Value History
| 2025 | N/A | N/A | N/A | N/A | N/A |
| 2024 | $625,419 | $243,375 | $0 | $868,794 | $868,794 |
| 2023 | $235,574 | $216,250 | $0 | $451,824 | $451,824 |
| 2022 | $0 | $182,750 | $0 | $182,750 | $182,750 |
| 2021 | $0 | $168,750 | $0 | $168,750 | $168,750 |
Deed and Sales History
| 1 | 12/02/2022 | QCD | Quit Claim Deed | THOMAS J BALZARINI | THOMAS BALZARINI & MILL HUDSON | | | | 140265 | |
| 2 | 04/30/2010 | QCD | Quit Claim Deed | BALZARINI, MILO S/EILEEN | BALZARINI, THOMAS J | | | $0.00 | 114335 | 0 |
| 3 | 03/29/1996 | QCD | Quit Claim Deed | BALZARINI, MILO S/EILEEN | BALZARINI, MILO & EILEEN/TRUST | 0 | 0 | $0.00 | 80872 | 0 |
Payout Agreement
| No payout information available.. |