Property
Account |
| Property ID: | 36143 | Abbreviated Legal Description: | OLYMPUS BEACH 61 (LESS TAX NO. 9) |
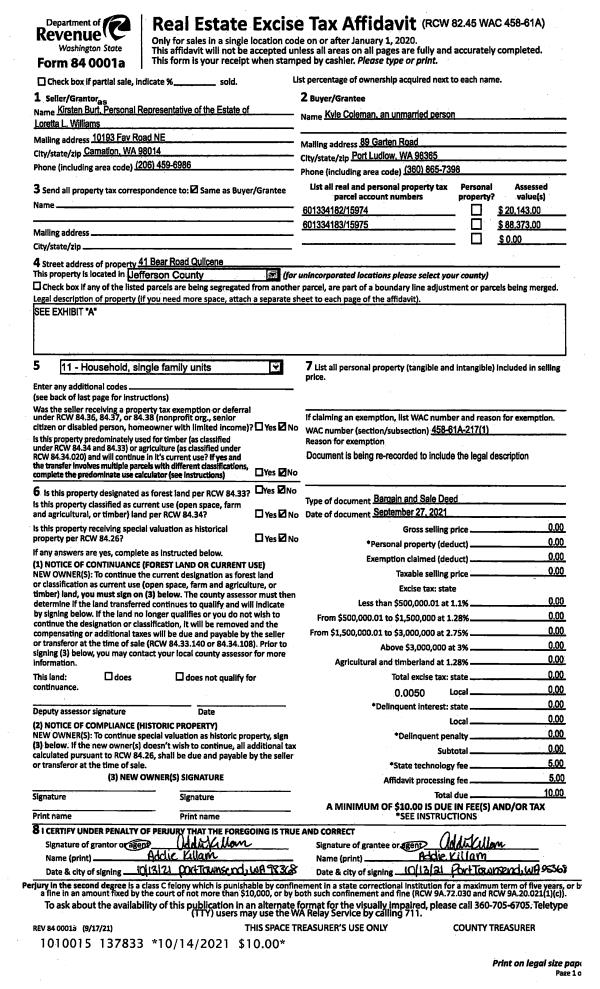
| Parcel # / Geo ID: | 978900053 | Agent Code: | |
| Type: | Real | | |
| Tax Area: | 0213 - 1-49F1E1H2L1 | Land Use Code | 11 |
| Open Space: | N | DFL | N |
| Historic Property: | N | Remodel Property: | N |
| Multi-Family Redevelopment: | N | | |
| Township: | 28N | Section: | 4 |
| Range: | 1E |
Location |
| Address: | 203 OLYMPUS BLVD PORT LUDLOW, WA 98365 | Mapsco: | 082/023 |
| Neighborhood: | BASALT BCH,N LUDLOW BCH,OLYMPUS BCH; EDSALL/GREEN/BERNARD SP | Map ID: | |
| Neighborhood CD: | 3310 |
Owner |
| Name: | THERESA & GARTHA MORGAN | Owner ID: | 96737 |
| Mailing Address: | 1910 31ST AVE S SEATTLE, WA 98144 | % Ownership: | 100.0000000000% |
| | | Exemptions: | |
Pay Tax Due
There is currently No Amount Due on this property.
Taxes and Assessment Details
Property Tax Information as of
10/24/2025
Click on "Statement Details" to expand or collapse a tax statement.
* Please enter a valid date ** Please enter a valid date *
Statement Details |
| | TOTAL: | $0.00 | $0.00 | $0.00 | $0.00 | $0.00 | $0.00 |
|
| | $0.00 | $0.00 | $0.00 | $0.00 | $0.00 | $0.00 |
Values
| (+) Improvement Homesite Value: | + | $0 | |
| (+) Improvement Non-Homesite Value: | + | $103,853 | |
| (+) Land Homesite Value: | + | $0 | |
| (+) Land Non-Homesite Value: | + | $224,250 | |
| (+) Curr Use (HS): | + | $0 | $0 |
| (+) Curr Use (NHS): | + | $0 | $0 |
| | | -------------------------- | |
| (=) Market Value: | = | $328,103 | |
| (–) Productivity Loss: | – | $0 | |
| | | -------------------------- | |
| (=) Subtotal: | = | $328,103 | |
| (+) Senior Appraised Value: | + | $0 | |
| (+) Non-Senior Appraised Value: | + | $328,103 | |
| | | -------------------------- | |
| (=) Total Appraised Value: | = | $328,103 | |
| (–) Senior Exemption Loss: | – | $0 | |
| (–) Exemption Loss: | – | $0 | |
| | | -------------------------- | |
| (=) Taxable Value: | = | $328,103 | |
Taxing Jurisdiction
| Owner: | THERESA & GARTHA MORGAN | | |
| % Ownership: | 100.0000000000% | | |
| Total Value: | N/A | | |
| Tax Area: | 0213 - 1-49F1E1H2L1 |
| CE | COUNTY CURRENT EXPENSE | N/A | N/A | N/A | N/A | | |
| CNTYDD | DEVELOPMENTAL DISABILITIES | N/A | N/A | N/A | N/A | | |
| CNTYVET | VETERANS RELIEF | N/A | N/A | N/A | N/A | | |
| MENTAL | MENTAL HEALTH | N/A | N/A | N/A | N/A | | |
| ROADS | COUNTY ROADS | N/A | N/A | N/A | N/A | | |
| ROADSCU | COUNTY ROADS TO CUR EXP | N/A | N/A | N/A | N/A | | |
| HOSP2CASH | HOSP DIST #2 GENERAL | N/A | N/A | N/A | N/A | | |
| SCH49CP | SCHOOL DIST #49 CAP PROJ | N/A | N/A | N/A | N/A | | |
| SCH49MO | SCHOOL DIST #49 EP & O | N/A | N/A | N/A | N/A | | |
| CONSERVE | CONSERVATION FUTURES | N/A | N/A | N/A | N/A | | |
| EMS1 | FIRE DIST #1 EMS | N/A | N/A | N/A | N/A | | |
| FD1 | FIRE DIST #1 GENERAL | N/A | N/A | N/A | N/A | | |
| LIB1 | LIBRARY DIST #1 GENERAL | N/A | N/A | N/A | N/A | | |
| PORTPT | PORT OF PT GENERAL | N/A | N/A | N/A | N/A | | |
| PORTPTIDD | PORT OF PT IDD 2019 | N/A | N/A | N/A | N/A | | |
| PUD1 | PUD #1 GENERAL | N/A | N/A | N/A | N/A | | |
| STATE | STATE SCHOOL PART 1 | N/A | N/A | N/A | N/A | | |
| STATE2 | STATE SCHOOL PART 2 | N/A | N/A | N/A | N/A | | |
| | Total Tax Rate: | N/A | | | | | |
| | | | | Taxes w/Current Exemptions: | N/A | | |
| | | | | Taxes w/o Exemptions: | N/A | | |
Improvement / Building
| Improvement #1: | Residential Bldg | State Code: | 11 | 780.0 sqft | Value: | $103,853 |
| Bathrooms (#): | 1 (FULL) | Bedrooms (#): | 2 | | Exterior Wall: | SI/ST | Floor Construction: | FRAME | | Foundation: | CONPR | Heating/Cooling: | F/A | | Inside Verify: | YES-FIX | Roof Cover: | COMP |
|
| | Type | Description | Class CD | Sub Class CD | Year Built | Area |
| | MA | Main Area | 3- | 1S | 1940 | 780.0 |
| | HCPOR | House Concrete Porch | 2 | * | 1940 | 64.0 |
| | HDECK | House Deck | 3 | * | 1940 | 240.0 |
| | SHED | Shed (Table Not Dep) | 3 | * | 1940 | 140.0 |
| | BSMTU | House basement unfinished | 1 | * | 1940 | 780.0 |
| | GARAG | Garage (Table Not Dep) | 2 | * | 1940 | 360.0 |
Sketch
Property Image
Land
| 1 | 3310-1343S | Good-Excel Wtr View Sites | 1.0000 | 43560.00 | 0.00 | 0.00 | 1.00 | $224,250 | $0 |
Roll Value History
| 2025 | N/A | N/A | N/A | N/A | N/A |
| 2024 | $99,526 | $214,500 | $0 | $314,026 | $314,026 |
| 2023 | $95,198 | $190,000 | $0 | $285,198 | $285,198 |
| 2022 | $90,871 | $185,000 | $0 | $275,871 | $275,871 |
| 2021 | $57,987 | $168,750 | $0 | $226,737 | $226,737 |
Deed and Sales History
| 1 | 02/01/2017 | EXD | Executor's Deed | BERNADINE M MONDA | THERESA & GARTHA MORGAN | | | | 127069 | |
| 2 | 11/14/2001 | WD | Warranty Deed | MONDA, BERNADINE M, AS EX | MONDA, BERNADINE M | 0 | 0 | $0.00 | 93727 | 0 |
Payout Agreement
| No payout information available.. |