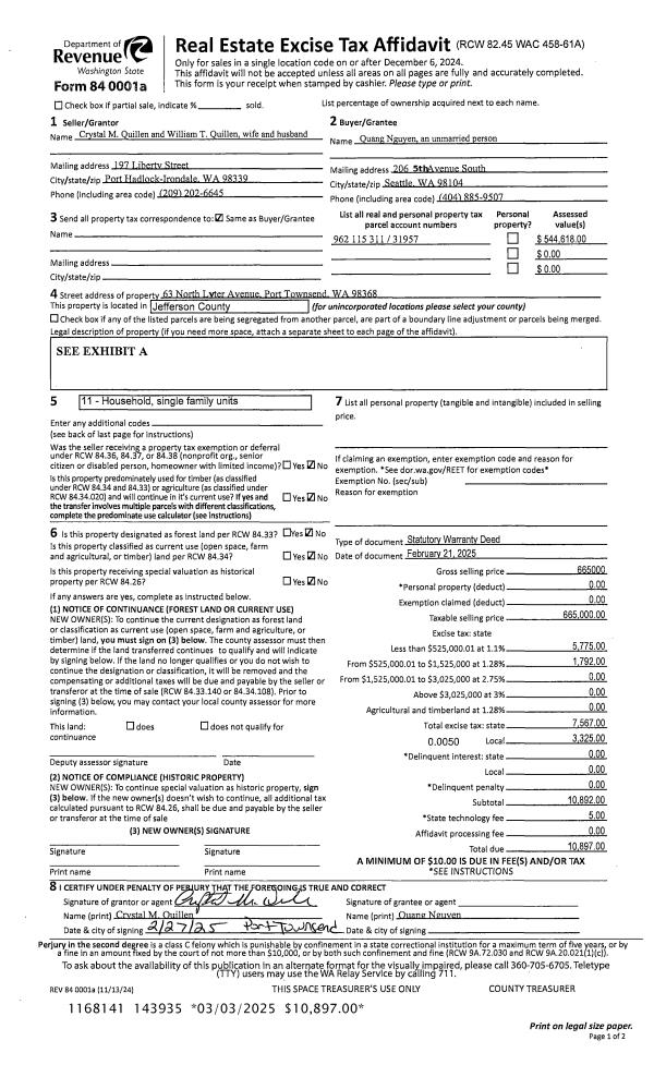
Property
Account |
| Property ID: | 36205 | Abbreviated Legal Description: | OLYMPUS BEACH LOT 3 & TLTX BB 3 (.76CH) |
| Parcel # / Geo ID: | 978900116 | Agent Code: | |
| Type: | Real | | |
| Tax Area: | 0213 - 1-49F1E1H2L1 | Land Use Code | 11 |
| Open Space: | N | DFL | N |
| Historic Property: | N | Remodel Property: | N |
| Multi-Family Redevelopment: | N | | |
| Township: | 28N | Section: | 4 |
| Range: | 1E |
Location |
| Address: | 670 OLYMPUS BLVD PORT LUDLOW, WA 98365 | Mapsco: | 081/003 |
| Neighborhood: | BASALT BCH,N LUDLOW BCH,OLYMPUS BCH; EDSALL/GREEN/BERNARD SP | Map ID: | |
| Neighborhood CD: | 3310 |
Owner |
| Name: | PETER W NAVAL | Owner ID: | 112612 |
| Mailing Address: | 1352 W STAR LAKE DR ELMA, WA 98541-9636 | % Ownership: | 100.0000000000% |
| | | Exemptions: | |
Pay Tax Due
There is currently No Amount Due on this property.
Taxes and Assessment Details
Property Tax Information as of
10/24/2025
Click on "Statement Details" to expand or collapse a tax statement.
* Please enter a valid date ** Please enter a valid date *
Statement Details |
| | TOTAL: | $0.00 | $0.00 | $0.00 | $0.00 | $0.00 | $0.00 |
|
| | $0.00 | $0.00 | $0.00 | $0.00 | $0.00 | $0.00 |
Values
| (+) Improvement Homesite Value: | + | $0 | |
| (+) Improvement Non-Homesite Value: | + | $202,595 | |
| (+) Land Homesite Value: | + | $0 | |
| (+) Land Non-Homesite Value: | + | $254,438 | |
| (+) Curr Use (HS): | + | $0 | $0 |
| (+) Curr Use (NHS): | + | $0 | $0 |
| | | -------------------------- | |
| (=) Market Value: | = | $457,033 | |
| (–) Productivity Loss: | – | $0 | |
| | | -------------------------- | |
| (=) Subtotal: | = | $457,033 | |
| (+) Senior Appraised Value: | + | $0 | |
| (+) Non-Senior Appraised Value: | + | $457,033 | |
| | | -------------------------- | |
| (=) Total Appraised Value: | = | $457,033 | |
| (–) Senior Exemption Loss: | – | $0 | |
| (–) Exemption Loss: | – | $0 | |
| | | -------------------------- | |
| (=) Taxable Value: | = | $457,033 | |
Taxing Jurisdiction
| Owner: | PETER W NAVAL | | |
| % Ownership: | 100.0000000000% | | |
| Total Value: | N/A | | |
| Tax Area: | 0213 - 1-49F1E1H2L1 |
| CE | COUNTY CURRENT EXPENSE | N/A | N/A | N/A | N/A | | |
| CNTYDD | DEVELOPMENTAL DISABILITIES | N/A | N/A | N/A | N/A | | |
| CNTYVET | VETERANS RELIEF | N/A | N/A | N/A | N/A | | |
| MENTAL | MENTAL HEALTH | N/A | N/A | N/A | N/A | | |
| ROADS | COUNTY ROADS | N/A | N/A | N/A | N/A | | |
| ROADSCU | COUNTY ROADS TO CUR EXP | N/A | N/A | N/A | N/A | | |
| HOSP2CASH | HOSP DIST #2 GENERAL | N/A | N/A | N/A | N/A | | |
| SCH49CP | SCHOOL DIST #49 CAP PROJ | N/A | N/A | N/A | N/A | | |
| SCH49MO | SCHOOL DIST #49 EP & O | N/A | N/A | N/A | N/A | | |
| CONSERVE | CONSERVATION FUTURES | N/A | N/A | N/A | N/A | | |
| EMS1 | FIRE DIST #1 EMS | N/A | N/A | N/A | N/A | | |
| FD1 | FIRE DIST #1 GENERAL | N/A | N/A | N/A | N/A | | |
| LIB1 | LIBRARY DIST #1 GENERAL | N/A | N/A | N/A | N/A | | |
| PORTPT | PORT OF PT GENERAL | N/A | N/A | N/A | N/A | | |
| PORTPTIDD | PORT OF PT IDD 2019 | N/A | N/A | N/A | N/A | | |
| PUD1 | PUD #1 GENERAL | N/A | N/A | N/A | N/A | | |
| STATE | STATE SCHOOL PART 1 | N/A | N/A | N/A | N/A | | |
| STATE2 | STATE SCHOOL PART 2 | N/A | N/A | N/A | N/A | | |
| | Total Tax Rate: | N/A | | | | | |
| | | | | Taxes w/Current Exemptions: | N/A | | |
| | | | | Taxes w/o Exemptions: | N/A | | |
Improvement / Building
| Improvement #1: | Manufactured Home | State Code: | 11 | 1200.0 sqft | Value: | $202,595 |
| Bathrooms (#): | 2 (FULL) | Bedrooms (#): | 1 | | Exterior Wall: | SI/ST | Foundation: | CONPR | | Heating/Cooling: | ELBB | Roof Cover: | COMP |
|
| | Type | Description | Class CD | Sub Class CD | Year Built | Area |
| | SHED | Shed (Table Not Dep) | 4 | * | 2014 | 200.0 |
| | MA | Main Area | 4+ | MDBL | 2014 | 1200.0 |
| | BSMTU | House basement unfinished | 3 | MDBL | 2014 | 1200.0 |
| | HDECK | House Deck | 3 | MDBL | 2014 | 246.0 |
Sketch
Property Image
Land
| 1 | 9301F | Tidelands | 0.0000 | 0.00 | 0.00 | 0.00 | 0.00 | $1,438 | $0 |
| 2 | 3310-1115F | Low/Medium Bank Wtrfrt OlympusBch/NorthLudlowTrts | 0.0000 | 0.00 | 0.00 | 0.00 | 0.00 | $253,000 | $0 |
Roll Value History
| 2025 | N/A | N/A | N/A | N/A | N/A |
| 2024 | $194,153 | $243,375 | $0 | $437,528 | $437,528 |
| 2023 | $185,712 | $216,250 | $0 | $401,962 | $401,962 |
| 2022 | $177,270 | $211,250 | $0 | $388,520 | $388,520 |
| 2021 | $122,934 | $195,000 | $0 | $317,934 | $317,934 |
Deed and Sales History
| 1 | 05/22/2025 | QCD | Quit Claim Deed | NAVAL FAMILY IRREVOCABLE TRUST | PETER W NAVAL | | | | 144324 | |
| 2 | 05/19/2025 | QCD | Quit Claim Deed | NAVAL FAMILY IRREVOCABLE TRUST | PETER W NAVAL | | | | 144427 | RERECORD |
| 3 | 06/18/2014 | QCD | Quit Claim Deed | FRANK NAVAL TRUSTEE | NAVAL FAMILY IRREVOCABLE TRUST | | | | 121465 | |
| 4 | 09/28/2006 | SWD | Statutory Warranty Deed | NAVAL, FRANK/MARJORIE | NAVAL, FRANK/MARJORIE TRUSTEE | 0 | 0 | $0.00 | 107741 | 0 |
Payout Agreement
| No payout information available.. |