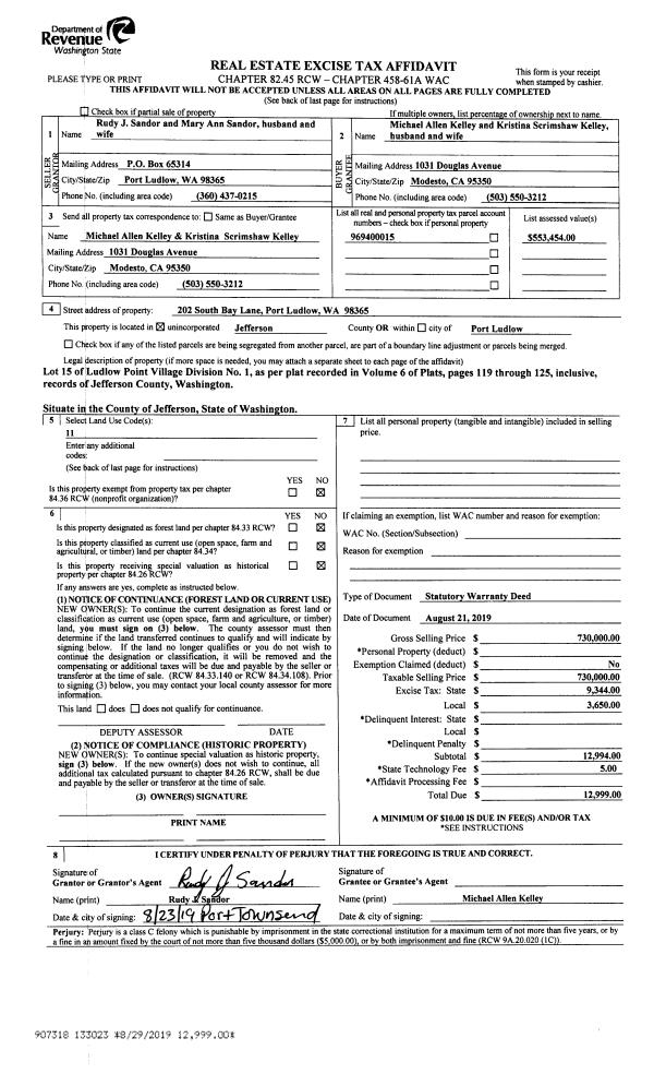
Property
Account |
| Property ID: | 36583 | Abbreviated Legal Description: | OIL CITY FIRST ADDITION BLK 40 LOTS 11,12 & 13 |
| Parcel # / Geo ID: | 979504007 | Agent Code: | |
| Type: | Real | | |
| Tax Area: | 0601 - 1-402H1L1 | Land Use Code | 19 |
| Open Space: | N | DFL | N |
| Historic Property: | N | Remodel Property: | N |
| Multi-Family Redevelopment: | N | | |
| Township: | 26N | Section: | 18 |
| Range: | 13W |
Location |
| Address: | | Mapsco: | 905/081 |
| Neighborhood: | OIL CITY & OIL CITY 1ST ADDITION | Map ID: | |
| Neighborhood CD: | 1785 |
Owner |
| Name: | GREGORY J PEARSON | Owner ID: | 24490 |
| Mailing Address: | 457 I STREET WASHOUGAL, WA 98671-1021 | % Ownership: | 100.0000000000% |
| | | Exemptions: | |
Pay Tax Due
There is currently No Amount Due on this property.
Taxes and Assessment Details
Property Tax Information as of
10/24/2025
Click on "Statement Details" to expand or collapse a tax statement.
* Please enter a valid date ** Please enter a valid date *
Statement Details |
| | TOTAL: | $0.00 | $0.00 | $0.00 | $0.00 | $0.00 | $0.00 |
|
| | $0.00 | $0.00 | $0.00 | $0.00 | $0.00 | $0.00 |
Values
| (+) Improvement Homesite Value: | + | $0 | |
| (+) Improvement Non-Homesite Value: | + | $55,069 | |
| (+) Land Homesite Value: | + | $0 | |
| (+) Land Non-Homesite Value: | + | $18,000 | |
| (+) Curr Use (HS): | + | $0 | $0 |
| (+) Curr Use (NHS): | + | $0 | $0 |
| | | -------------------------- | |
| (=) Market Value: | = | $73,069 | |
| (–) Productivity Loss: | – | $0 | |
| | | -------------------------- | |
| (=) Subtotal: | = | $73,069 | |
| (+) Senior Appraised Value: | + | $0 | |
| (+) Non-Senior Appraised Value: | + | $73,069 | |
| | | -------------------------- | |
| (=) Total Appraised Value: | = | $73,069 | |
| (–) Senior Exemption Loss: | – | $0 | |
| (–) Exemption Loss: | – | $0 | |
| | | -------------------------- | |
| (=) Taxable Value: | = | $73,069 | |
Taxing Jurisdiction
| Owner: | GREGORY J PEARSON | | |
| % Ownership: | 100.0000000000% | | |
| Total Value: | N/A | | |
| Tax Area: | 0601 - 1-402H1L1 |
| CE | COUNTY CURRENT EXPENSE | N/A | N/A | N/A | N/A | | |
| CNTYDD | DEVELOPMENTAL DISABILITIES | N/A | N/A | N/A | N/A | | |
| CNTYVET | VETERANS RELIEF | N/A | N/A | N/A | N/A | | |
| MENTAL | MENTAL HEALTH | N/A | N/A | N/A | N/A | | |
| ROADS | COUNTY ROADS | N/A | N/A | N/A | N/A | | |
| ROADSCU | COUNTY ROADS TO CUR EXP | N/A | N/A | N/A | N/A | | |
| HOS1GEN | HOSP DIST #1 GENERAL | N/A | N/A | N/A | N/A | | |
| SCH402BOND | SCHOOL DIST #402 BOND | N/A | N/A | N/A | N/A | | |
| SCH402MO | SCHOOL DIST #402 EP & O | N/A | N/A | N/A | N/A | | |
| CONSERVE | CONSERVATION FUTURES | N/A | N/A | N/A | N/A | | |
| LIB1 | LIBRARY DIST #1 GENERAL | N/A | N/A | N/A | N/A | | |
| PORTPT | PORT OF PT GENERAL | N/A | N/A | N/A | N/A | | |
| PORTPTIDD | PORT OF PT IDD 2019 | N/A | N/A | N/A | N/A | | |
| PUD1 | PUD #1 GENERAL | N/A | N/A | N/A | N/A | | |
| STATE | STATE SCHOOL PART 1 | N/A | N/A | N/A | N/A | | |
| STATE2 | STATE SCHOOL PART 2 | N/A | N/A | N/A | N/A | | |
| | Total Tax Rate: | N/A | | | | | |
| | | | | Taxes w/Current Exemptions: | N/A | | |
| | | | | Taxes w/o Exemptions: | N/A | | |
Improvement / Building
| Improvement #1: | Residential Bldg | State Code: | 19 | 168.0 sqft | Value: | $37,480 |
| Exterior Wall: | LOG | Fireplace: | WD ST-GOOD | | Floor Construction: | FRAME | Foundation: | 01BASE | | Roof Cover: | COMP |   |   |
|
| | Type | Description | Class CD | Sub Class CD | Year Built | Area |
| | MA | Main Area | 5+ | C1S | 2012 | 168.0 |
| | CENCL | Cabin Enclosure | 5 | C1S | 2012 | 324.0 |
| | CLOFT | Cabin Loft | 5 | C1S | 2012 | 200.0 |
| | CDECK | Cabin Deck | 5 | * | 2012 | 128.0 |
| Improvement #2: | Residential Bldg | State Code: | 19 | 121.4 sqft | Value: | $17,589 |
| Exterior Wall: | SI/ST | Floor Construction: | FRAME | | Foundation: | PO&BL | Interior Finish: | FIN | | Roof Cover: | METAL |   |   |
|
| | Type | Description | Class CD | Sub Class CD | Year Built | Area |
| | MA | Main Area | 4 | C1S | 2020 | 121.4 |
| | CBSMTU | Cabin Basement Unfinished | 4 | C1S | 2020 | 168.3 |
| | CRPO | Cabin Roof Porch | 4 | * | 2020 | 219.5 |
Sketch
Property Image
Land
| 1 | WEST-7175L | Lots in upper Oil City 1st Addn Blks 24-60 | 0.0000 | 0.00 | 0.00 | 0.00 | 3.00 | $18,000 | $0 |
Roll Value History
| 2025 | N/A | N/A | N/A | N/A | N/A |
| 2024 | $55,069 | $18,000 | $0 | $73,069 | $73,069 |
| 2023 | $55,069 | $18,000 | $0 | $73,069 | $73,069 |
| 2022 | $55,069 | $18,000 | $0 | $73,069 | $73,069 |
| 2021 | $50,063 | $16,500 | $0 | $66,563 | $66,563 |
Deed and Sales History
| 1 | 06/22/2002 | WD | Warranty Deed | PEARSON, DONALD M/ESTATE | PEARSON, GREGORY J | 0 | 0 | $0.00 | 100158 | 0 |
Payout Agreement
| No payout information available.. |