Property
Account |
| Property ID: | 36823 | Abbreviated Legal Description: | OLYMPIC CANAL ADDITION 1 BLK 3 LOT 18(N1/2) TGTH WITH COMMUNITY TIDELAND TR FRTGING SUBJ/DECL REST COV'T #486480 |
| Parcel # / Geo ID: | 980100316 | Agent Code: | |
| Type: | Real | | |
| Tax Area: | 0441 - 1-46F4E4H2C1L1P2 | Land Use Code | 91 |
| Open Space: | N | DFL | N |
| Historic Property: | N | Remodel Property: | N |
| Multi-Family Redevelopment: | N | | |
| Township: | 25N | Section: | 21 |
| Range: | 2W |
Location |
| Address: | | Mapsco: | 011/034 |
| Neighborhood: | OLYMPIC CANAL TRACTS | Map ID: | |
| Neighborhood CD: | 1250 |
Owner |
| Name: | STARR MARSHALL LIVING TRUST | Owner ID: | 103386 |
| Mailing Address: | DAVID S MARSHALL TRUSTEE VICTORIA STARR MARSHALL 81 CANAL LN BRINNON, WA 98320-9511 | % Ownership: | 100.0000000000% |
| | | Exemptions: | |
Pay Tax Due
There is currently No Amount Due on this property.
Taxes and Assessment Details
Property Tax Information as of
10/24/2025
Click on "Statement Details" to expand or collapse a tax statement.
* Please enter a valid date ** Please enter a valid date *
Statement Details |
| | TOTAL: | $0.00 | $0.00 | $0.00 | $0.00 | $0.00 | $0.00 |
|
| | $0.00 | $0.00 | $0.00 | $0.00 | $0.00 | $0.00 |
Values
| (+) Improvement Homesite Value: | + | $0 | |
| (+) Improvement Non-Homesite Value: | + | $0 | |
| (+) Land Homesite Value: | + | $0 | |
| (+) Land Non-Homesite Value: | + | $54,207 | |
| (+) Curr Use (HS): | + | $0 | $0 |
| (+) Curr Use (NHS): | + | $0 | $0 |
| | | -------------------------- | |
| (=) Market Value: | = | $54,207 | |
| (–) Productivity Loss: | – | $0 | |
| | | -------------------------- | |
| (=) Subtotal: | = | $54,207 | |
| (+) Senior Appraised Value: | + | $0 | |
| (+) Non-Senior Appraised Value: | + | $54,207 | |
| | | -------------------------- | |
| (=) Total Appraised Value: | = | $54,207 | |
| (–) Senior Exemption Loss: | – | $0 | |
| (–) Exemption Loss: | – | $0 | |
| | | -------------------------- | |
| (=) Taxable Value: | = | $54,207 | |
Taxing Jurisdiction
| Owner: | STARR MARSHALL LIVING TRUST | | |
| % Ownership: | 100.0000000000% | | |
| Total Value: | N/A | | |
| Tax Area: | 0441 - 1-46F4E4H2C1L1P2 |
| CE | COUNTY CURRENT EXPENSE | N/A | N/A | N/A | N/A | | |
| CNTYDD | DEVELOPMENTAL DISABILITIES | N/A | N/A | N/A | N/A | | |
| CNTYVET | VETERANS RELIEF | N/A | N/A | N/A | N/A | | |
| MENTAL | MENTAL HEALTH | N/A | N/A | N/A | N/A | | |
| ROADS | COUNTY ROADS | N/A | N/A | N/A | N/A | | |
| ROADSCU | COUNTY ROADS TO CUR EXP | N/A | N/A | N/A | N/A | | |
| HOSP2CASH | HOSP DIST #2 GENERAL | N/A | N/A | N/A | N/A | | |
| SCH46MO | SCHOOL DIST #46 EP & O | N/A | N/A | N/A | N/A | | |
| CEM1 | CEMETERY DIST #1 GENERAL | N/A | N/A | N/A | N/A | | |
| CONSERVE | CONSERVATION FUTURES | N/A | N/A | N/A | N/A | | |
| EMS4 | FIRE DIST #4 EMS | N/A | N/A | N/A | N/A | | |
| FD4 | FIRE DIST #4 GENERAL | N/A | N/A | N/A | N/A | | |
| FD4BOND | FIRE DIST #4 BOND 2019 | N/A | N/A | N/A | N/A | | |
| LIB1 | LIBRARY DIST #1 GENERAL | N/A | N/A | N/A | N/A | | |
| PORTPT | PORT OF PT GENERAL | N/A | N/A | N/A | N/A | | |
| PORTPTIDD | PORT OF PT IDD 2019 | N/A | N/A | N/A | N/A | | |
| PUD1 | PUD #1 GENERAL | N/A | N/A | N/A | N/A | | |
| STATE | STATE SCHOOL PART 1 | N/A | N/A | N/A | N/A | | |
| STATE2 | STATE SCHOOL PART 2 | N/A | N/A | N/A | N/A | | |
| | Total Tax Rate: | N/A | | | | | |
| | | | | Taxes w/Current Exemptions: | N/A | | |
| | | | | Taxes w/o Exemptions: | N/A | | |
Improvement / Building
Sketch
| No sketches available for this property. |
Property Image
Land
| 1 | 1250-1115F | Low to Medium Bank Waterfront Frontage | 0.0000 | 0.00 | 14.75 | 0.00 | 0.00 | $53,432 | $0 |
| 2 | 9301F | Tidelands | 0.0000 | 0.00 | 14.75 | 0.00 | 0.00 | $775 | $0 |
Roll Value History
| 2025 | N/A | N/A | N/A | N/A | N/A |
| 2024 | $0 | $51,626 | $0 | $51,626 | $51,626 |
| 2023 | $0 | $51,626 | $0 | $51,626 | $51,626 |
| 2022 | $0 | $51,626 | $0 | $51,626 | $51,626 |
| 2021 | $0 | $47,083 | $0 | $47,083 | $47,083 |
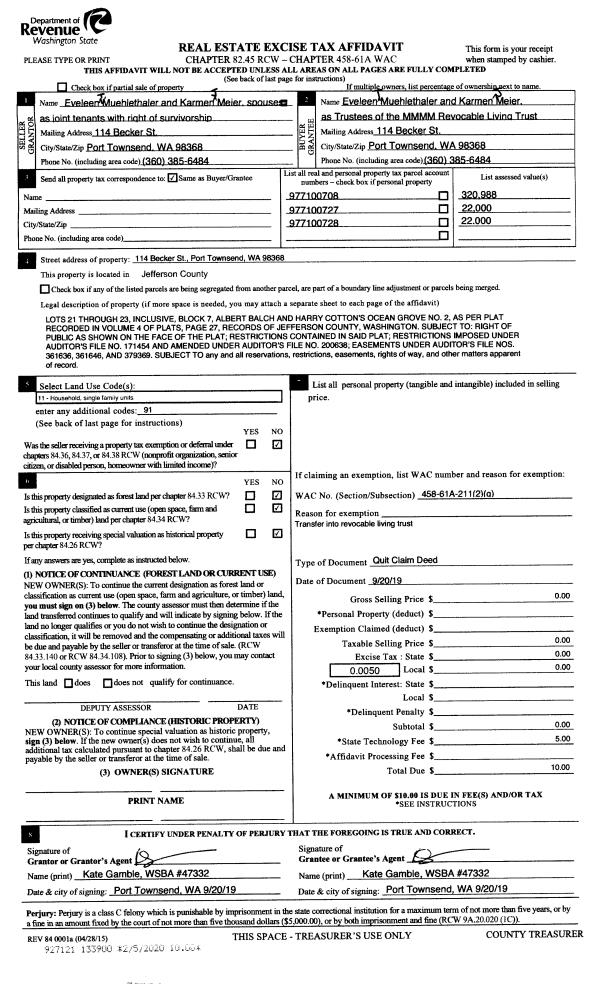
Deed and Sales History
| 1 | 09/17/2020 | QCD | Quit Claim Deed | DAVID SCOTT MARSHALL | STARR MARSHALL LIVING TRUST | | | | 135228 | |
| 2 | 08/13/2009 | QCD | Quit Claim Deed | MARSHALL, DAVID SCOTT/VIC | MARSHALL, DAVID S/VICTORIA | 0 | 0 | $0.00 | 113812 | 0 |
| 3 | 07/06/2007 | QCD | Quit Claim Deed | MARSHALL, DAVID SCOTT | MARSHALL, DAVID S/VICTORIA S | | | $0.00 | 109659 | 0 |
| 4 | 12/31/2002 | SWD | Statutory Warranty Deed | ANDRESEN & KAISER | MARSHALL, DAVID S | 0 | 0 | $0.00 | 96341 | 0 |
Payout Agreement
| No payout information available.. |