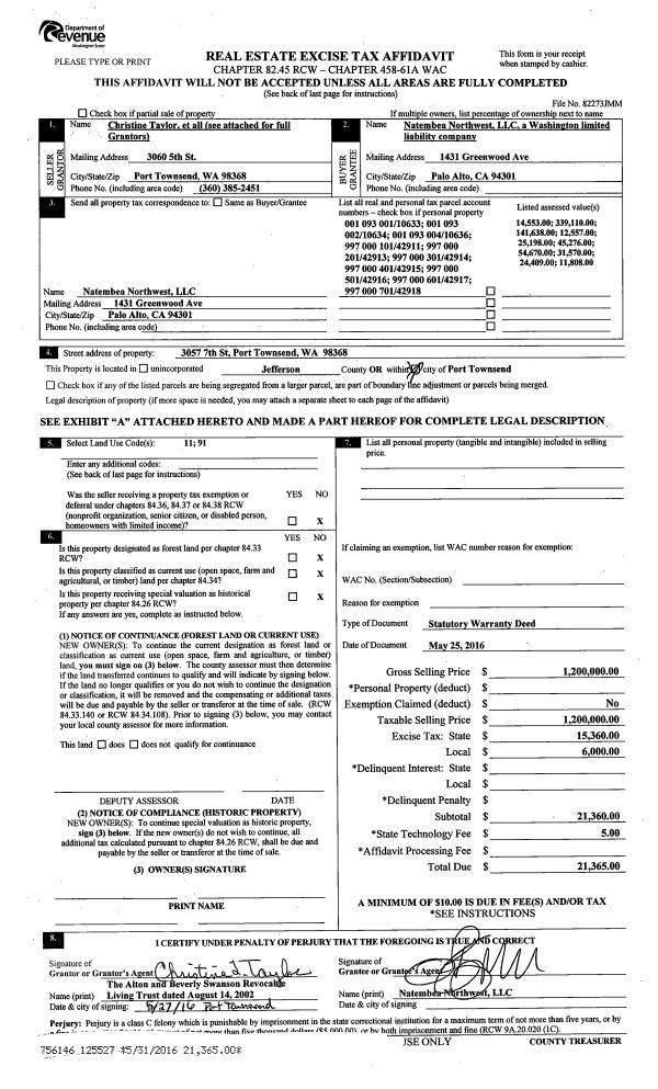
Property
Account |
| Property ID: | 36855 | Abbreviated Legal Description: | OLYMPIC CANAL ADDITION 2 BLK 9 LOTS 7 & 8 |
| Parcel # / Geo ID: | 980400906 | Agent Code: | |
| Type: | Real | | |
| Tax Area: | 0441 - 1-46F4E4H2C1L1P2 | Land Use Code | 11 |
| Open Space: | N | DFL | N |
| Historic Property: | N | Remodel Property: | N |
| Multi-Family Redevelopment: | N | | |
| Township: | 25N | Section: | 21 |
| Range: | 2W |
Location |
| Address: | 381 SALMON ST BRINNON, WA 98320 | Mapsco: | 012/026 |
| Neighborhood: | OLYMPIC CANAL TRACTS | Map ID: | |
| Neighborhood CD: | 1250 |
Owner |
| Name: | ANNDRIA B ANDERSON | Owner ID: | 109093 |
| Mailing Address: | 21613 134TH ST E BONNEY LAKE, WA 98391-6503 | % Ownership: | 100.0000000000% |
| | | Exemptions: | |
Pay Tax Due
There is currently No Amount Due on this property.
Taxes and Assessment Details
Property Tax Information as of
10/24/2025
Click on "Statement Details" to expand or collapse a tax statement.
* Please enter a valid date ** Please enter a valid date *
Statement Details |
| | TOTAL: | $0.00 | $0.00 | $0.00 | $0.00 | $0.00 | $0.00 |
|
| | $0.00 | $0.00 | $0.00 | $0.00 | $0.00 | $0.00 |
Values
| (+) Improvement Homesite Value: | + | $0 | |
| (+) Improvement Non-Homesite Value: | + | $115,184 | |
| (+) Land Homesite Value: | + | $0 | |
| (+) Land Non-Homesite Value: | + | $53,550 | |
| (+) Curr Use (HS): | + | $0 | $0 |
| (+) Curr Use (NHS): | + | $0 | $0 |
| | | -------------------------- | |
| (=) Market Value: | = | $168,734 | |
| (–) Productivity Loss: | – | $0 | |
| | | -------------------------- | |
| (=) Subtotal: | = | $168,734 | |
| (+) Senior Appraised Value: | + | $0 | |
| (+) Non-Senior Appraised Value: | + | $168,734 | |
| | | -------------------------- | |
| (=) Total Appraised Value: | = | $168,734 | |
| (–) Senior Exemption Loss: | – | $0 | |
| (–) Exemption Loss: | – | $0 | |
| | | -------------------------- | |
| (=) Taxable Value: | = | $168,734 | |
Taxing Jurisdiction
| Owner: | ANNDRIA B ANDERSON | | |
| % Ownership: | 100.0000000000% | | |
| Total Value: | N/A | | |
| Tax Area: | 0441 - 1-46F4E4H2C1L1P2 |
| CE | COUNTY CURRENT EXPENSE | N/A | N/A | N/A | N/A | | |
| CNTYDD | DEVELOPMENTAL DISABILITIES | N/A | N/A | N/A | N/A | | |
| CNTYVET | VETERANS RELIEF | N/A | N/A | N/A | N/A | | |
| MENTAL | MENTAL HEALTH | N/A | N/A | N/A | N/A | | |
| ROADS | COUNTY ROADS | N/A | N/A | N/A | N/A | | |
| ROADSCU | COUNTY ROADS TO CUR EXP | N/A | N/A | N/A | N/A | | |
| HOSP2CASH | HOSP DIST #2 GENERAL | N/A | N/A | N/A | N/A | | |
| SCH46MO | SCHOOL DIST #46 EP & O | N/A | N/A | N/A | N/A | | |
| CEM1 | CEMETERY DIST #1 GENERAL | N/A | N/A | N/A | N/A | | |
| CONSERVE | CONSERVATION FUTURES | N/A | N/A | N/A | N/A | | |
| EMS4 | FIRE DIST #4 EMS | N/A | N/A | N/A | N/A | | |
| FD4 | FIRE DIST #4 GENERAL | N/A | N/A | N/A | N/A | | |
| FD4BOND | FIRE DIST #4 BOND 2019 | N/A | N/A | N/A | N/A | | |
| LIB1 | LIBRARY DIST #1 GENERAL | N/A | N/A | N/A | N/A | | |
| PORTPT | PORT OF PT GENERAL | N/A | N/A | N/A | N/A | | |
| PORTPTIDD | PORT OF PT IDD 2019 | N/A | N/A | N/A | N/A | | |
| PUD1 | PUD #1 GENERAL | N/A | N/A | N/A | N/A | | |
| STATE | STATE SCHOOL PART 1 | N/A | N/A | N/A | N/A | | |
| STATE2 | STATE SCHOOL PART 2 | N/A | N/A | N/A | N/A | | |
| | Total Tax Rate: | N/A | | | | | |
| | | | | Taxes w/Current Exemptions: | N/A | | |
| | | | | Taxes w/o Exemptions: | N/A | | |
Improvement / Building
| Improvement #1: | Residential Bldg | State Code: | 11 | 497.0 sqft | Value: | $115,184 |
| Bathrooms (#): | 1 (FULL) | Bedrooms (#): | 1 | | Exterior Wall: | PL/T1 | Fireplace: | WD ST-GOOD | | Floor Construction: | FRAME | Foundation: | PO&BL | | Heating/Cooling: | HPUMP | Inside Verify: | NO | | Roof Cover: | COMP |   |   |
|
| | Type | Description | Class CD | Sub Class CD | Year Built | Area |
| | MA | Main Area | 2+ | 1S | 1970 | 497.0 |
| | BSMTF | House basement finished | 2 | 1S | 1970 | 252.0 |
| | HCPOR | House Concrete Porch | 2 | 1S | 1970 | 32.0 |
| | SHED | Shed (Table Not Dep) | 5 | 1S | 1970 | 118.0 |
| | HDECK | House Deck | 2 | 1S | 1970 | 351.5 |
Sketch
Property Image
Land
| 1 | 1250-1185L | Standard Non-Water View Lots | 0.0000 | 0.00 | 0.00 | 0.00 | 1.00 | $46,200 | $0 |
| 2 | 1250-1185L | Standard Non-Water View Lots | 0.0000 | 0.00 | 0.00 | 0.00 | 1.00 | $7,350 | $0 |
Roll Value History
| 2025 | N/A | N/A | N/A | N/A | N/A |
| 2024 | $110,176 | $51,000 | $0 | $161,176 | $161,176 |
| 2023 | $110,176 | $46,000 | $0 | $156,176 | $156,176 |
| 2022 | $64,502 | $41,000 | $0 | $105,502 | $105,502 |
| 2021 | $53,307 | $32,288 | $0 | $85,595 | $85,595 |
Deed and Sales History
| 1 | 06/09/2023 | SWD | Statutory Warranty Deed | MINDY LINDEN PLACOS | ANNDRIA B ANDERSON | | | $185,000.00 | 141070 | |
| 2 | 03/16/2017 | SWD | Statutory Warranty Deed | RONALD I SANDE | MELINDA J SEIFRID | | | $83,500.00 | 127333 | |
| 3 | 08/06/2008 | SWD | Statutory Warranty Deed | DAVIS, ROBERT/VICKERS, JE | SANDE, RONALD/KAREN D | 0 | 0 | $100,000.00 | 111714 | 0 |
| 4 | 01/29/2004 | SWD | Statutory Warranty Deed | REICK, MITCHELL W | DAVO. ROBERT/VICKERS, JEAN | 0 | 0 | $57,000.00 | 99410 | 0 |
| 5 | 02/13/1998 | SWD | Statutory Warranty Deed | FIRSTENBURG, CHARLES/MARI | REICK, MITCHELL W | 0 | 0 | $45,000.00 | 83901 | 0 |
Payout Agreement
| No payout information available.. |