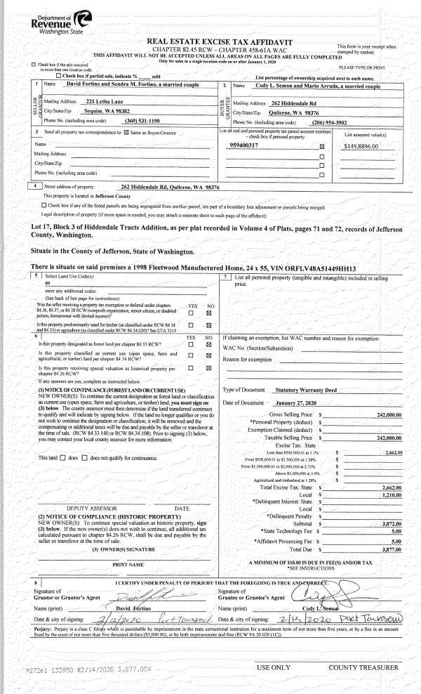
Property
Account |
| Property ID: | 36899 | Abbreviated Legal Description: | OLYMPIC CANAL ADDITION 3 BLK 5 LOT 9 |
| Parcel # / Geo ID: | 980700508 | Agent Code: | |
| Type: | Real | | |
| Tax Area: | 0441 - 1-46F4E4H2C1L1P2 | Land Use Code | 19 |
| Open Space: | N | DFL | N |
| Historic Property: | N | Remodel Property: | N |
| Multi-Family Redevelopment: | N | | |
| Township: | 25N | Section: | 21 |
| Range: | 2W |
Location |
| Address: | 130 BAY VIEW AVE BRINNON, WA 98320 | Mapsco: | 013/008 |
| Neighborhood: | OLYMPIC CANAL TRACTS | Map ID: | |
| Neighborhood CD: | 1250 |
Owner |
| Name: | MARISSA SEBERS | Owner ID: | 91654 |
| Mailing Address: | HOWARD J NIGG 1204 85TH DR NE LAKE STEVENS, WA 98258-2490 | % Ownership: | 100.0000000000% |
| | | Exemptions: | |
Pay Tax Due
There is currently No Amount Due on this property.
Taxes and Assessment Details
Property Tax Information as of
10/24/2025
Click on "Statement Details" to expand or collapse a tax statement.
* Please enter a valid date ** Please enter a valid date *
Statement Details |
| | TOTAL: | $0.00 | $0.00 | $0.00 | $0.00 | $0.00 | $0.00 |
|
| | $0.00 | $0.00 | $0.00 | $0.00 | $0.00 | $0.00 |
Values
| (+) Improvement Homesite Value: | + | $0 | |
| (+) Improvement Non-Homesite Value: | + | $11,480 | |
| (+) Land Homesite Value: | + | $0 | |
| (+) Land Non-Homesite Value: | + | $24,150 | |
| (+) Curr Use (HS): | + | $0 | $0 |
| (+) Curr Use (NHS): | + | $0 | $0 |
| | | -------------------------- | |
| (=) Market Value: | = | $35,630 | |
| (–) Productivity Loss: | – | $0 | |
| | | -------------------------- | |
| (=) Subtotal: | = | $35,630 | |
| (+) Senior Appraised Value: | + | $0 | |
| (+) Non-Senior Appraised Value: | + | $35,630 | |
| | | -------------------------- | |
| (=) Total Appraised Value: | = | $35,630 | |
| (–) Senior Exemption Loss: | – | $0 | |
| (–) Exemption Loss: | – | $0 | |
| | | -------------------------- | |
| (=) Taxable Value: | = | $35,630 | |
Taxing Jurisdiction
| Owner: | MARISSA SEBERS | | |
| % Ownership: | 100.0000000000% | | |
| Total Value: | N/A | | |
| Tax Area: | 0441 - 1-46F4E4H2C1L1P2 |
| CE | COUNTY CURRENT EXPENSE | N/A | N/A | N/A | N/A | | |
| CNTYDD | DEVELOPMENTAL DISABILITIES | N/A | N/A | N/A | N/A | | |
| CNTYVET | VETERANS RELIEF | N/A | N/A | N/A | N/A | | |
| MENTAL | MENTAL HEALTH | N/A | N/A | N/A | N/A | | |
| ROADS | COUNTY ROADS | N/A | N/A | N/A | N/A | | |
| ROADSCU | COUNTY ROADS TO CUR EXP | N/A | N/A | N/A | N/A | | |
| HOSP2CASH | HOSP DIST #2 GENERAL | N/A | N/A | N/A | N/A | | |
| SCH46MO | SCHOOL DIST #46 EP & O | N/A | N/A | N/A | N/A | | |
| CEM1 | CEMETERY DIST #1 GENERAL | N/A | N/A | N/A | N/A | | |
| CONSERVE | CONSERVATION FUTURES | N/A | N/A | N/A | N/A | | |
| EMS4 | FIRE DIST #4 EMS | N/A | N/A | N/A | N/A | | |
| FD4 | FIRE DIST #4 GENERAL | N/A | N/A | N/A | N/A | | |
| FD4BOND | FIRE DIST #4 BOND 2019 | N/A | N/A | N/A | N/A | | |
| LIB1 | LIBRARY DIST #1 GENERAL | N/A | N/A | N/A | N/A | | |
| PORTPT | PORT OF PT GENERAL | N/A | N/A | N/A | N/A | | |
| PORTPTIDD | PORT OF PT IDD 2019 | N/A | N/A | N/A | N/A | | |
| PUD1 | PUD #1 GENERAL | N/A | N/A | N/A | N/A | | |
| STATE | STATE SCHOOL PART 1 | N/A | N/A | N/A | N/A | | |
| STATE2 | STATE SCHOOL PART 2 | N/A | N/A | N/A | N/A | | |
| | Total Tax Rate: | N/A | | | | | |
| | | | | Taxes w/Current Exemptions: | N/A | | |
| | | | | Taxes w/o Exemptions: | N/A | | |
Improvement / Building
| Improvement #1: | Residential Bldg | State Code: | 19 | 0.0 sqft | Value: | $11,480 |
| | Type | Description | Class CD | Sub Class CD | Year Built | Area |
| | HDECK | House Deck | 2 | | 2019 | 62.0 |
| | HWPOR | House Wood Porch | 2 | * | 2019 | 217.0 |
Sketch
Property Image
Land
| 1 | 1250-1153L | Oversize Lots with Avg to Good Views | 0.0000 | 0.00 | 0.00 | 0.00 | 1.00 | $24,150 | $0 |
Roll Value History
| 2025 | N/A | N/A | N/A | N/A | N/A |
| 2024 | $10,981 | $21,000 | $0 | $31,981 | $31,981 |
| 2023 | $10,981 | $21,000 | $0 | $31,981 | $31,981 |
| 2022 | $9,983 | $21,000 | $0 | $30,983 | $30,983 |
| 2021 | $8,250 | $15,750 | $0 | $24,000 | $24,000 |
Deed and Sales History
| 1 | 02/17/2014 | QCD | Quit Claim Deed | | | | | | 121036 | |
| 2 | 07/08/2008 | QCD | Quit Claim Deed | SEBERS, ROBERT D | SEBERS, MARISSA L | 0 | 0 | $0.00 | 113611 | 0 |
| 3 | 08/28/2003 | REC | Real Estate Contract | MAZZONCINI, GARY | SEBERS, ROBERT D | 0 | 0 | $15,000.00 | 98239 | 0 |
| 4 | 02/03/1999 | QCD | Quit Claim Deed | LEONARD, ATTONA LINDORA/E | MAZZONCINI, GARY | 0 | 0 | $0.00 | 86245 | 0 |
Payout Agreement
| No payout information available.. |