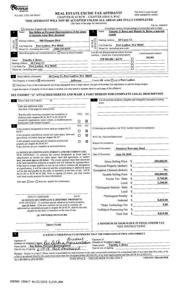
Property
Account |
| Property ID: | 36988 | Abbreviated Legal Description: | OLYMPIC CANAL ADDITION 4 BLK 22 LOT 12 |
| Parcel # / Geo ID: | 981002210 | Agent Code: | |
| Type: | Real | | |
| Tax Area: | 0441 - 1-46F4E4H2C1L1P2 | Land Use Code | 19 |
| Open Space: | N | DFL | N |
| Historic Property: | N | Remodel Property: | N |
| Multi-Family Redevelopment: | N | | |
| Township: | 25N | Section: | 16 |
| Range: | 2W |
Location |
| Address: | 130 KELLY RD BRINNON, WA 98320 | Mapsco: | 015/013 |
| Neighborhood: | OLYMPIC CANAL TRACTS | Map ID: | |
| Neighborhood CD: | 1250 |
Owner |
| Name: | LARRY D & JUDY L WEAVER | Owner ID: | 85916 |
| Mailing Address: | PO BOX 446 ROCHESTER, WA 98579-0446 | % Ownership: | 100.0000000000% |
| | | Exemptions: | |
Pay Tax Due
There is currently No Amount Due on this property.
Taxes and Assessment Details
Property Tax Information as of
10/24/2025
Click on "Statement Details" to expand or collapse a tax statement.
* Please enter a valid date ** Please enter a valid date *
Statement Details |
| | TOTAL: | $0.00 | $0.00 | $0.00 | $0.00 | $0.00 | $0.00 |
|
| | $0.00 | $0.00 | $0.00 | $0.00 | $0.00 | $0.00 |
Values
| (+) Improvement Homesite Value: | + | $0 | |
| (+) Improvement Non-Homesite Value: | + | $20,036 | |
| (+) Land Homesite Value: | + | $0 | |
| (+) Land Non-Homesite Value: | + | $31,500 | |
| (+) Curr Use (HS): | + | $0 | $0 |
| (+) Curr Use (NHS): | + | $0 | $0 |
| | | -------------------------- | |
| (=) Market Value: | = | $51,536 | |
| (–) Productivity Loss: | – | $0 | |
| | | -------------------------- | |
| (=) Subtotal: | = | $51,536 | |
| (+) Senior Appraised Value: | + | $0 | |
| (+) Non-Senior Appraised Value: | + | $51,536 | |
| | | -------------------------- | |
| (=) Total Appraised Value: | = | $51,536 | |
| (–) Senior Exemption Loss: | – | $0 | |
| (–) Exemption Loss: | – | $0 | |
| | | -------------------------- | |
| (=) Taxable Value: | = | $51,536 | |
Taxing Jurisdiction
| Owner: | LARRY D & JUDY L WEAVER | | |
| % Ownership: | 100.0000000000% | | |
| Total Value: | N/A | | |
| Tax Area: | 0441 - 1-46F4E4H2C1L1P2 |
| CE | COUNTY CURRENT EXPENSE | N/A | N/A | N/A | N/A | | |
| CNTYDD | DEVELOPMENTAL DISABILITIES | N/A | N/A | N/A | N/A | | |
| CNTYVET | VETERANS RELIEF | N/A | N/A | N/A | N/A | | |
| MENTAL | MENTAL HEALTH | N/A | N/A | N/A | N/A | | |
| ROADS | COUNTY ROADS | N/A | N/A | N/A | N/A | | |
| ROADSCU | COUNTY ROADS TO CUR EXP | N/A | N/A | N/A | N/A | | |
| HOSP2CASH | HOSP DIST #2 GENERAL | N/A | N/A | N/A | N/A | | |
| SCH46MO | SCHOOL DIST #46 EP & O | N/A | N/A | N/A | N/A | | |
| CEM1 | CEMETERY DIST #1 GENERAL | N/A | N/A | N/A | N/A | | |
| CONSERVE | CONSERVATION FUTURES | N/A | N/A | N/A | N/A | | |
| EMS4 | FIRE DIST #4 EMS | N/A | N/A | N/A | N/A | | |
| FD4 | FIRE DIST #4 GENERAL | N/A | N/A | N/A | N/A | | |
| FD4BOND | FIRE DIST #4 BOND 2019 | N/A | N/A | N/A | N/A | | |
| LIB1 | LIBRARY DIST #1 GENERAL | N/A | N/A | N/A | N/A | | |
| PORTPT | PORT OF PT GENERAL | N/A | N/A | N/A | N/A | | |
| PORTPTIDD | PORT OF PT IDD 2019 | N/A | N/A | N/A | N/A | | |
| PUD1 | PUD #1 GENERAL | N/A | N/A | N/A | N/A | | |
| STATE | STATE SCHOOL PART 1 | N/A | N/A | N/A | N/A | | |
| STATE2 | STATE SCHOOL PART 2 | N/A | N/A | N/A | N/A | | |
| | Total Tax Rate: | N/A | | | | | |
| | | | | Taxes w/Current Exemptions: | N/A | | |
| | | | | Taxes w/o Exemptions: | N/A | | |
Improvement / Building
| Improvement #1: | Residential Bldg | State Code: | 19 | 400.0 sqft | Value: | $20,036 |
| Exterior Wall: | SI/ST | Floor Construction: | FRAME | | Foundation: | PO&BL | Heating/Cooling: | WD/NO | | Inside Verify: | NO | Interior Finish: | FIN | | Roof Cover: | METAL |   |   |
|
| | Type | Description | Class CD | Sub Class CD | Year Built | Area |
| | MA | Main Area | 2- | C1S | 1963 | 400.0 |
| | HCPOR | House Concrete Porch | 2 | * | 1963 | 144.0 |
| | CDECK | Cabin Deck | 2 | C1S | 1963 | 172.0 |
| | PATIO | House Patio | 2 | C1S | 1963 | 96.0 |
| | SHED | Shed (Table Not Dep) | 3 | * | 1963 | 96.0 |
Sketch
Property Image
Land
| 1 | 1250-1116L | Low to Medium Bank Riverfront Lots | 0.0000 | 0.00 | 0.00 | 0.00 | 1.00 | $31,500 | $0 |
Roll Value History
| 2025 | N/A | N/A | N/A | N/A | N/A |
| 2024 | $19,165 | $30,000 | $0 | $49,165 | $49,165 |
| 2023 | $19,165 | $30,000 | $0 | $49,165 | $49,165 |
| 2022 | $17,423 | $29,000 | $0 | $46,423 | $46,423 |
| 2021 | $15,085 | $22,050 | $0 | $37,135 | $37,135 |
Deed and Sales History
| 1 | 05/19/2020 | QCD | Quit Claim Deed | LARRY D WEAVER | LARRY D & JUDY L WEAVER | | | | 134646 | |
| 2 | 01/22/2013 | QCD | Quit Claim Deed | | | | | | 118919 | |
| 3 | 02/13/1992 | SWD | Statutory Warranty Deed | WEAVER, GENE/JANET | WEAVER, LARRY D/ET AL | 0 | 0 | $7,358.00 | 67753 | 0 |
Payout Agreement
| No payout information available.. |