Property
Account |
| Property ID: | 37019 | Abbreviated Legal Description: | OLYMPIC CANAL ADDITION 4 BLK 23, LOTS 11(ALL) & 12(W'LY 30') |
| Parcel # / Geo ID: | 981002311 | Agent Code: | |
| Type: | Real | | |
| Tax Area: | 0441 - 1-46F4E4H2C1L1P2 | Land Use Code | 11 |
| Open Space: | N | DFL | N |
| Historic Property: | N | Remodel Property: | N |
| Multi-Family Redevelopment: | N | | |
| Township: | 25N | Section: | 16 |
| Range: | 2W |
Location |
| Address: | 171 KELLY RD BRINNON, WA 98320 | Mapsco: | 016/011 |
| Neighborhood: | OLYMPIC CANAL TRACTS | Map ID: | |
| Neighborhood CD: | 1250 |
Owner |
| Name: | DUANE & LOIS BLANK | Owner ID: | 103800 |
| Mailing Address: | ROCHELLE SUTHERLAND RAYMOND SUTHERLAND III 233 S BAYVIEW AVE PORT ANGELES, WA 98362-8606 | % Ownership: | 100.0000000000% |
| | | Exemptions: | |
Pay Tax Due
There is currently No Amount Due on this property.
Taxes and Assessment Details
Property Tax Information as of
10/24/2025
Click on "Statement Details" to expand or collapse a tax statement.
* Please enter a valid date ** Please enter a valid date *
Statement Details |
| | TOTAL: | $0.00 | $0.00 | $0.00 | $0.00 | $0.00 | $0.00 |
|
| | $0.00 | $0.00 | $0.00 | $0.00 | $0.00 | $0.00 |
Values
| (+) Improvement Homesite Value: | + | $0 | |
| (+) Improvement Non-Homesite Value: | + | $26,847 | |
| (+) Land Homesite Value: | + | $0 | |
| (+) Land Non-Homesite Value: | + | $49,140 | |
| (+) Curr Use (HS): | + | $0 | $0 |
| (+) Curr Use (NHS): | + | $0 | $0 |
| | | -------------------------- | |
| (=) Market Value: | = | $75,987 | |
| (–) Productivity Loss: | – | $0 | |
| | | -------------------------- | |
| (=) Subtotal: | = | $75,987 | |
| (+) Senior Appraised Value: | + | $0 | |
| (+) Non-Senior Appraised Value: | + | $75,987 | |
| | | -------------------------- | |
| (=) Total Appraised Value: | = | $75,987 | |
| (–) Senior Exemption Loss: | – | $0 | |
| (–) Exemption Loss: | – | $0 | |
| | | -------------------------- | |
| (=) Taxable Value: | = | $75,987 | |
Taxing Jurisdiction
| Owner: | DUANE & LOIS BLANK | | |
| % Ownership: | 100.0000000000% | | |
| Total Value: | N/A | | |
| Tax Area: | 0441 - 1-46F4E4H2C1L1P2 |
| CE | COUNTY CURRENT EXPENSE | N/A | N/A | N/A | N/A | | |
| CNTYDD | DEVELOPMENTAL DISABILITIES | N/A | N/A | N/A | N/A | | |
| CNTYVET | VETERANS RELIEF | N/A | N/A | N/A | N/A | | |
| MENTAL | MENTAL HEALTH | N/A | N/A | N/A | N/A | | |
| ROADS | COUNTY ROADS | N/A | N/A | N/A | N/A | | |
| ROADSCU | COUNTY ROADS TO CUR EXP | N/A | N/A | N/A | N/A | | |
| HOSP2CASH | HOSP DIST #2 GENERAL | N/A | N/A | N/A | N/A | | |
| SCH46MO | SCHOOL DIST #46 EP & O | N/A | N/A | N/A | N/A | | |
| CEM1 | CEMETERY DIST #1 GENERAL | N/A | N/A | N/A | N/A | | |
| CONSERVE | CONSERVATION FUTURES | N/A | N/A | N/A | N/A | | |
| EMS4 | FIRE DIST #4 EMS | N/A | N/A | N/A | N/A | | |
| FD4 | FIRE DIST #4 GENERAL | N/A | N/A | N/A | N/A | | |
| FD4BOND | FIRE DIST #4 BOND 2019 | N/A | N/A | N/A | N/A | | |
| LIB1 | LIBRARY DIST #1 GENERAL | N/A | N/A | N/A | N/A | | |
| PORTPT | PORT OF PT GENERAL | N/A | N/A | N/A | N/A | | |
| PORTPTIDD | PORT OF PT IDD 2019 | N/A | N/A | N/A | N/A | | |
| PUD1 | PUD #1 GENERAL | N/A | N/A | N/A | N/A | | |
| STATE | STATE SCHOOL PART 1 | N/A | N/A | N/A | N/A | | |
| STATE2 | STATE SCHOOL PART 2 | N/A | N/A | N/A | N/A | | |
| | Total Tax Rate: | N/A | | | | | |
| | | | | Taxes w/Current Exemptions: | N/A | | |
| | | | | Taxes w/o Exemptions: | N/A | | |
Improvement / Building
| Improvement #1: | Manufactured Home | State Code: | 11 | 510.0 sqft | Value: | $26,847 |
| Bathrooms (#): | 1 (FULL) | Bedrooms (#): | 1 | | Exterior Wall: | METAL | Fireplace: | WD ST-GOOD | | Floor Construction: | FRAME | Foundation: | PO&BL | | Heating/Cooling: | F/A | Inside Verify: | NO | | Roof Cover: | METAL |   |   |
|
| | Type | Description | Class CD | Sub Class CD | Year Built | Area |
| | MA | Main Area | 3- | MSG | 1964 | 510.0 |
| | ADDN | Addition (Table Not Dep) | 2 | MSG | 1964 | 218.0 |
| | MWPOR | MH Wood Porch | 2 | MSG | 1964 | 142.0 |
| | MSKIRT_WD | MH Skirting - Wood | 2 | MSG | 1964 | 122.0 |
| | SHED | Shed (Table Not Dep) | 2 | * | 1964 | 601.8 |
Sketch
Property Image
Land
| 1 | 1250-1185L | Standard Non-Water View Lots | 0.0000 | 0.00 | 0.00 | 0.00 | 1.00 | $49,140 | $0 |
Roll Value History
| 2025 | N/A | N/A | N/A | N/A | N/A |
| 2024 | $25,680 | $46,800 | $0 | $72,480 | $72,480 |
| 2023 | $25,680 | $41,800 | $0 | $67,480 | $67,480 |
| 2022 | $23,345 | $36,800 | $0 | $60,145 | $60,145 |
| 2021 | $19,294 | $28,980 | $0 | $48,274 | $48,274 |
Deed and Sales History
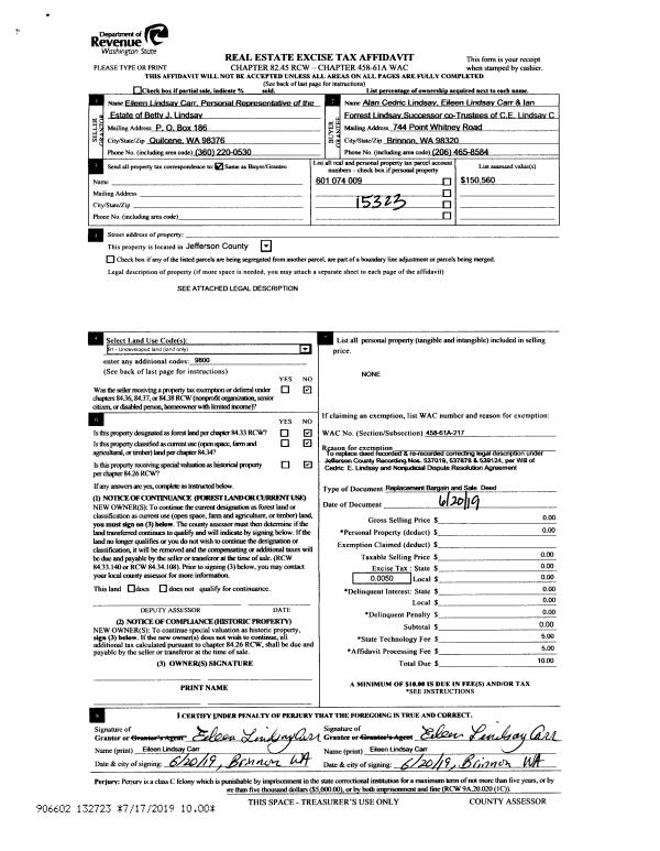
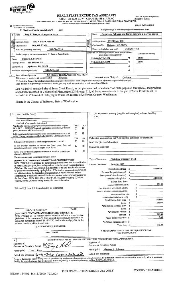
| 1 | 11/30/2020 | SWD | Statutory Warranty Deed | FRANK R POWELL | DUANE & LOIS BLANK | | | $56,500.00 | 135718 | |
| 2 | 07/01/2019 | DECF | Declaration of Forfeiture | EARNEST L BERG | FRANK R POWELL | | | | 132662 | |
| 3 | 10/01/2013 | REC | Real Estate Contract | FRANK R POWELL | EARNEST L BERG | | | $60,000.00 | 120138 | |
| 4 | 03/15/2004 | SWD | Statutory Warranty Deed | DANGERFIELD FAMILY TRUST | POWELL, FRANK R/CAROLE R | 0 | 0 | $24,500.00 | 99728 | 0 |
| 5 | 05/01/1996 | MISC | MISC | DANGERFIELD, O H/SR & V E | DANGERFIELD FAMILY TRUST | 0 | 0 | $0.00 | 79380 | 0 |
Payout Agreement
| No payout information available.. |