Property
Account |
| Property ID: | 37062 | Abbreviated Legal Description: | OLYMPIC CANAL ADDITION 5 BLK 14 LOT 16 |
| Parcel # / Geo ID: | 981301416 | Agent Code: | |
| Type: | Real | | |
| Tax Area: | 0441 - 1-46F4E4H2C1L1P2 | Land Use Code | 19 |
| Open Space: | N | DFL | N |
| Historic Property: | N | Remodel Property: | N |
| Multi-Family Redevelopment: | N | | |
| Township: | 25N | Section: | 21 |
| Range: | 2W |
Location |
| Address: | 11 MOUNTAIN TRAIL CT BRINNON, WA 98320 | Mapsco: | 017/016 |
| Neighborhood: | OLYMPIC CANAL TRACTS | Map ID: | |
| Neighborhood CD: | 1250 |
Owner |
| Name: | TARYN F HAWKINS | Owner ID: | 99691 |
| Mailing Address: | 4006 S 158TH ST APT C TUKWILA, WA 98188-2610 | % Ownership: | 100.0000000000% |
| | | Exemptions: | |
Pay Tax Due
There is currently No Amount Due on this property.
Taxes and Assessment Details
Property Tax Information as of
10/24/2025
Click on "Statement Details" to expand or collapse a tax statement.
* Please enter a valid date ** Please enter a valid date *
Statement Details |
| | TOTAL: | $0.00 | $0.00 | $0.00 | $0.00 | $0.00 | $0.00 |
|
| | $0.00 | $0.00 | $0.00 | $0.00 | $0.00 | $0.00 |
Values
| (+) Improvement Homesite Value: | + | $0 | |
| (+) Improvement Non-Homesite Value: | + | $192 | |
| (+) Land Homesite Value: | + | $0 | |
| (+) Land Non-Homesite Value: | + | $19,950 | |
| (+) Curr Use (HS): | + | $0 | $0 |
| (+) Curr Use (NHS): | + | $0 | $0 |
| | | -------------------------- | |
| (=) Market Value: | = | $20,142 | |
| (–) Productivity Loss: | – | $0 | |
| | | -------------------------- | |
| (=) Subtotal: | = | $20,142 | |
| (+) Senior Appraised Value: | + | $0 | |
| (+) Non-Senior Appraised Value: | + | $20,142 | |
| | | -------------------------- | |
| (=) Total Appraised Value: | = | $20,142 | |
| (–) Senior Exemption Loss: | – | $0 | |
| (–) Exemption Loss: | – | $0 | |
| | | -------------------------- | |
| (=) Taxable Value: | = | $20,142 | |
Taxing Jurisdiction
| Owner: | TARYN F HAWKINS | | |
| % Ownership: | 100.0000000000% | | |
| Total Value: | N/A | | |
| Tax Area: | 0441 - 1-46F4E4H2C1L1P2 |
| CE | COUNTY CURRENT EXPENSE | N/A | N/A | N/A | N/A | | |
| CNTYDD | DEVELOPMENTAL DISABILITIES | N/A | N/A | N/A | N/A | | |
| CNTYVET | VETERANS RELIEF | N/A | N/A | N/A | N/A | | |
| MENTAL | MENTAL HEALTH | N/A | N/A | N/A | N/A | | |
| ROADS | COUNTY ROADS | N/A | N/A | N/A | N/A | | |
| ROADSCU | COUNTY ROADS TO CUR EXP | N/A | N/A | N/A | N/A | | |
| HOSP2CASH | HOSP DIST #2 GENERAL | N/A | N/A | N/A | N/A | | |
| SCH46MO | SCHOOL DIST #46 EP & O | N/A | N/A | N/A | N/A | | |
| CEM1 | CEMETERY DIST #1 GENERAL | N/A | N/A | N/A | N/A | | |
| CONSERVE | CONSERVATION FUTURES | N/A | N/A | N/A | N/A | | |
| EMS4 | FIRE DIST #4 EMS | N/A | N/A | N/A | N/A | | |
| FD4 | FIRE DIST #4 GENERAL | N/A | N/A | N/A | N/A | | |
| FD4BOND | FIRE DIST #4 BOND 2019 | N/A | N/A | N/A | N/A | | |
| LIB1 | LIBRARY DIST #1 GENERAL | N/A | N/A | N/A | N/A | | |
| PORTPT | PORT OF PT GENERAL | N/A | N/A | N/A | N/A | | |
| PORTPTIDD | PORT OF PT IDD 2019 | N/A | N/A | N/A | N/A | | |
| PUD1 | PUD #1 GENERAL | N/A | N/A | N/A | N/A | | |
| STATE | STATE SCHOOL PART 1 | N/A | N/A | N/A | N/A | | |
| STATE2 | STATE SCHOOL PART 2 | N/A | N/A | N/A | N/A | | |
| | Total Tax Rate: | N/A | | | | | |
| | | | | Taxes w/Current Exemptions: | N/A | | |
| | | | | Taxes w/o Exemptions: | N/A | | |
Improvement / Building
| Improvement #1: | Residential Bldg | State Code: | 19 | 0.0 sqft | Value: | $192 |
Sketch
Property Image
Land
| 1 | 1250-1185L | Standard Non-Water View Lots | 0.0000 | 0.00 | 0.00 | 0.00 | 1.00 | $19,950 | $0 |
Roll Value History
| 2025 | N/A | N/A | N/A | N/A | N/A |
| 2024 | $184 | $19,000 | $0 | $19,184 | $19,184 |
| 2023 | $184 | $19,000 | $0 | $19,184 | $19,184 |
| 2022 | $167 | $18,000 | $0 | $18,167 | $18,167 |
| 2021 | $138 | $12,075 | $0 | $12,213 | $12,213 |
Deed and Sales History
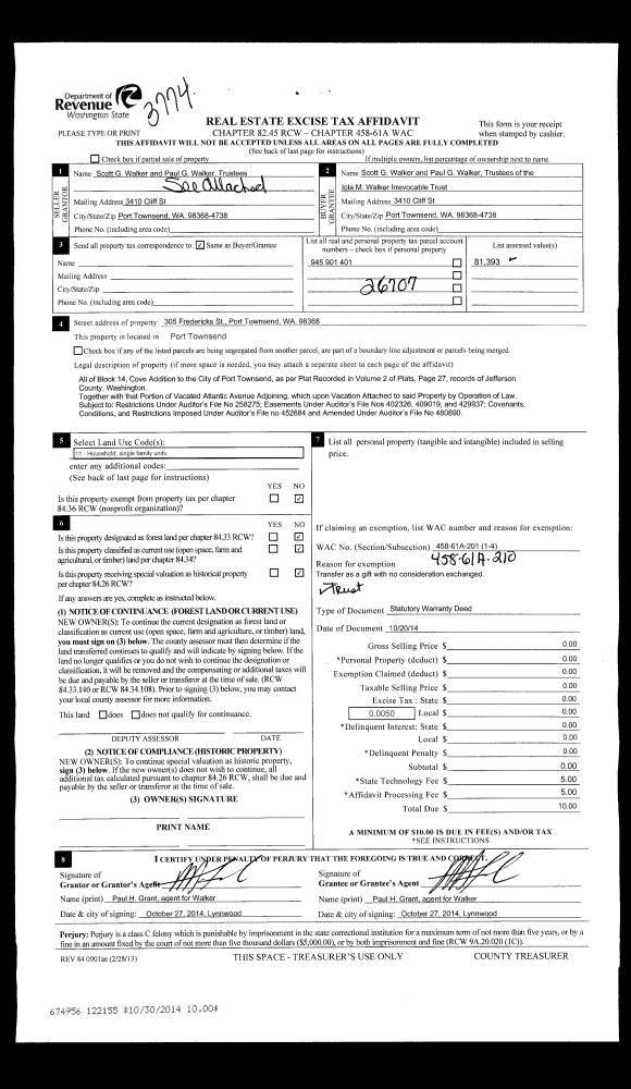
| 1 | 07/26/2018 | SWD | Statutory Warranty Deed | AMIE JOHNSON | TARYN F HAWKINS | | | $220,000.00 | 130724 | |
|   | |
| 2 | 08/16/2016 | SWD | Statutory Warranty Deed | ERIC SMITH | AMIE JOHNSON | | | $60,000.00 | 126087 | |
|   | |
| 3 | 06/05/2015 | QCD | Quit Claim Deed | | | | | | 0 | |
| 4 | 10/31/2000 | QCD | Quit Claim Deed | SMITH, ERIC JAY | SMITH, ERIC JAY/BARBARA M | 0 | 0 | $0.00 | 90879 | 0 |
| 5 | 01/22/1998 | QCD | Quit Claim Deed | SMITH, ERIC JAY | MYERS, BARBARA/ET AL | 0 | 0 | $0.00 | 83760 | 0 |
Payout Agreement
| No payout information available.. |