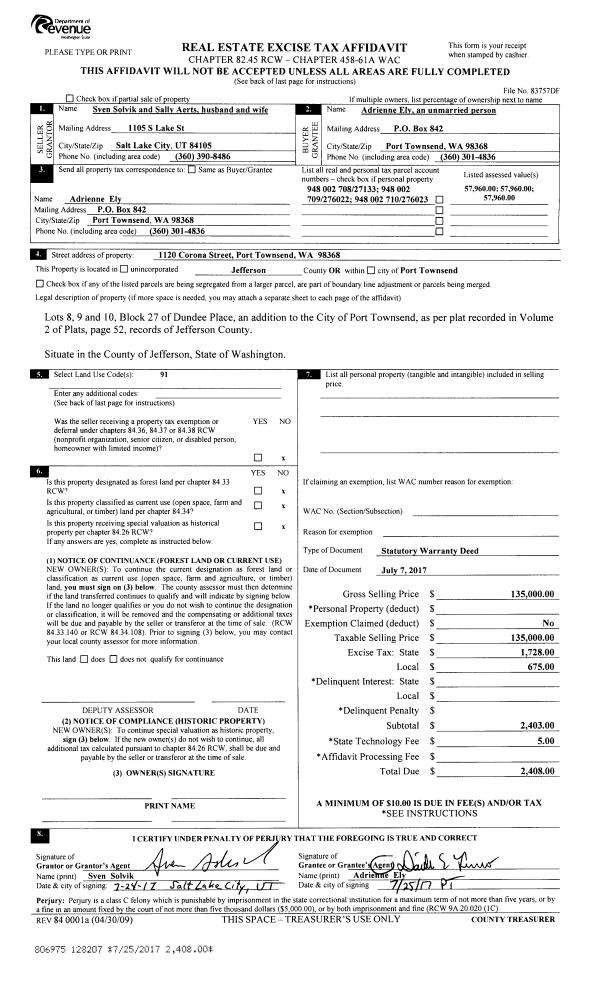
Property
Account |
| Property ID: | 37120 | Abbreviated Legal Description: | OLYMPIC CANAL ADDITION 5 BLK 16 LOT 18 |
| Parcel # / Geo ID: | 981301605 | Agent Code: | |
| Type: | Real | | |
| Tax Area: | 0441 - 1-46F4E4H2C1L1P2 | Land Use Code | 91 |
| Open Space: | N | DFL | N |
| Historic Property: | N | Remodel Property: | N |
| Multi-Family Redevelopment: | N | | |
| Township: | 25N | Section: | 16 |
| Range: | 2W |
Location |
| Address: | | Mapsco: | 018/019 |
| Neighborhood: | OLYMPIC CANAL TRACTS | Map ID: | |
| Neighborhood CD: | 1250 |
Owner |
| Name: | DAVID VITTETOE | Owner ID: | 84969 |
| Mailing Address: | 5701 141ST ST E PUYALLUP, WA 98373-5237 | % Ownership: | 100.0000000000% |
| | | Exemptions: | |
Pay Tax Due
There is currently No Amount Due on this property.
Taxes and Assessment Details
Property Tax Information as of
10/24/2025
Click on "Statement Details" to expand or collapse a tax statement.
* Please enter a valid date ** Please enter a valid date *
Statement Details |
| | TOTAL: | $0.00 | $0.00 | $0.00 | $0.00 | $0.00 | $0.00 |
|
| | $0.00 | $0.00 | $0.00 | $0.00 | $0.00 | $0.00 |
Values
| (+) Improvement Homesite Value: | + | $0 | |
| (+) Improvement Non-Homesite Value: | + | $0 | |
| (+) Land Homesite Value: | + | $0 | |
| (+) Land Non-Homesite Value: | + | $7,350 | |
| (+) Curr Use (HS): | + | $0 | $0 |
| (+) Curr Use (NHS): | + | $0 | $0 |
| | | -------------------------- | |
| (=) Market Value: | = | $7,350 | |
| (–) Productivity Loss: | – | $0 | |
| | | -------------------------- | |
| (=) Subtotal: | = | $7,350 | |
| (+) Senior Appraised Value: | + | $0 | |
| (+) Non-Senior Appraised Value: | + | $7,350 | |
| | | -------------------------- | |
| (=) Total Appraised Value: | = | $7,350 | |
| (–) Senior Exemption Loss: | – | $0 | |
| (–) Exemption Loss: | – | $0 | |
| | | -------------------------- | |
| (=) Taxable Value: | = | $7,350 | |
Taxing Jurisdiction
| Owner: | DAVID VITTETOE | | |
| % Ownership: | 100.0000000000% | | |
| Total Value: | N/A | | |
| Tax Area: | 0441 - 1-46F4E4H2C1L1P2 |
| CE | COUNTY CURRENT EXPENSE | N/A | N/A | N/A | N/A | | |
| CNTYDD | DEVELOPMENTAL DISABILITIES | N/A | N/A | N/A | N/A | | |
| CNTYVET | VETERANS RELIEF | N/A | N/A | N/A | N/A | | |
| MENTAL | MENTAL HEALTH | N/A | N/A | N/A | N/A | | |
| ROADS | COUNTY ROADS | N/A | N/A | N/A | N/A | | |
| ROADSCU | COUNTY ROADS TO CUR EXP | N/A | N/A | N/A | N/A | | |
| HOSP2CASH | HOSP DIST #2 GENERAL | N/A | N/A | N/A | N/A | | |
| SCH46MO | SCHOOL DIST #46 EP & O | N/A | N/A | N/A | N/A | | |
| CEM1 | CEMETERY DIST #1 GENERAL | N/A | N/A | N/A | N/A | | |
| CONSERVE | CONSERVATION FUTURES | N/A | N/A | N/A | N/A | | |
| EMS4 | FIRE DIST #4 EMS | N/A | N/A | N/A | N/A | | |
| FD4 | FIRE DIST #4 GENERAL | N/A | N/A | N/A | N/A | | |
| FD4BOND | FIRE DIST #4 BOND 2019 | N/A | N/A | N/A | N/A | | |
| LIB1 | LIBRARY DIST #1 GENERAL | N/A | N/A | N/A | N/A | | |
| PORTPT | PORT OF PT GENERAL | N/A | N/A | N/A | N/A | | |
| PORTPTIDD | PORT OF PT IDD 2019 | N/A | N/A | N/A | N/A | | |
| PUD1 | PUD #1 GENERAL | N/A | N/A | N/A | N/A | | |
| STATE | STATE SCHOOL PART 1 | N/A | N/A | N/A | N/A | | |
| STATE2 | STATE SCHOOL PART 2 | N/A | N/A | N/A | N/A | | |
| | Total Tax Rate: | N/A | | | | | |
| | | | | Taxes w/Current Exemptions: | N/A | | |
| | | | | Taxes w/o Exemptions: | N/A | | |
Improvement / Building
Sketch
| No sketches available for this property. |
Property Image
Land
| 1 | 1250-1185L | Standard Non-Water View Lots | 0.0000 | 0.00 | 0.00 | 0.00 | 1.00 | $7,350 | $0 |
Roll Value History
| 2025 | N/A | N/A | N/A | N/A | N/A |
| 2024 | $0 | $7,000 | $0 | $7,000 | $7,000 |
| 2023 | $0 | $7,000 | $0 | $7,000 | $7,000 |
| 2022 | $0 | $7,000 | $0 | $7,000 | $7,000 |
| 2021 | $0 | $5,513 | $0 | $5,513 | $5,513 |
Deed and Sales History
| 1 | 02/27/2018 | QCD | Quit Claim Deed | | | | | | 130015 | |
| 2 | 09/07/2005 | SWD | Statutory Warranty Deed | ADOLPHSEN, CARL/WINONA | VITTETOE, DAVID/MARY JO | 0 | 0 | $7,000.00 | 104726 | 0 |
| 3 | 05/18/1995 | QCD | Quit Claim Deed | NAKANO FAMILY TRUST | SCHRADER, WINONA | 0 | 0 | $1,000.00 | 77063 | 0 |
| 4 | 10/14/1994 | QCD | Quit Claim Deed | BARNEY, SUSAN | NAKANO FAMILY TRUST | 0 | 0 | $0.00 | 75353 | 0 |
| 5 | 10/07/1994 | QCD | Quit Claim Deed | BARNEY, GARY | NAKANO FAMILY TRUST | 0 | 0 | $0.00 | 75352 | 0 |
| 6 | 09/15/1993 | REC | Real Estate Contract | NAKANO FAMILY TRUST,12/6/ | BARNEY, GARY/SUSAN | 0 | 0 | $6,200.00 | 72133 | 0 |
| 7 | 12/06/1991 | QCD | Quit Claim Deed | NAKANO, DAVID S/DORIS J | NAKANO, DAVID S | 0 | 0 | $0.00 | 67697 | 0 |
Payout Agreement
| No payout information available.. |