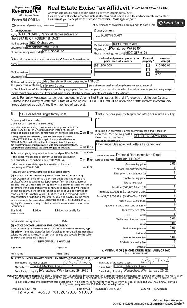
Property
Account |
| Property ID: | 37334 | Abbreviated Legal Description: | OLYMPIC CANAL ADDITION 8 BLK 19 LOT 2 |
| Parcel # / Geo ID: | 982201902 | Agent Code: | |
| Type: | Real | | |
| Tax Area: | 0441 - 1-46F4E4H2C1L1P2 | Land Use Code | 91 |
| Open Space: | N | DFL | N |
| Historic Property: | N | Remodel Property: | N |
| Multi-Family Redevelopment: | N | | |
| Township: | 25N | Section: | 16 |
| Range: | 2W |
Location |
| Address: | | Mapsco: | 022/032 |
| Neighborhood: | OLYMPIC CANAL TRACTS | Map ID: | |
| Neighborhood CD: | 1250 |
Owner |
| Name: | ANYA M LEESON | Owner ID: | 113444 |
| Mailing Address: | 184 RIVERS END DR PRIEST RIVER, ID 83856-8707 | % Ownership: | 100.0000000000% |
| | | Exemptions: | |
Pay Tax Due
There is currently No Amount Due on this property.
Taxes and Assessment Details
Property Tax Information as of
10/24/2025
Click on "Statement Details" to expand or collapse a tax statement.
* Please enter a valid date ** Please enter a valid date *
Statement Details |
| | TOTAL: | $0.00 | $0.00 | $0.00 | $0.00 | $0.00 | $0.00 |
|
| | $0.00 | $0.00 | $0.00 | $0.00 | $0.00 | $0.00 |
Values
| (+) Improvement Homesite Value: | + | $0 | |
| (+) Improvement Non-Homesite Value: | + | $0 | |
| (+) Land Homesite Value: | + | $0 | |
| (+) Land Non-Homesite Value: | + | $14,700 | |
| (+) Curr Use (HS): | + | $0 | $0 |
| (+) Curr Use (NHS): | + | $0 | $0 |
| | | -------------------------- | |
| (=) Market Value: | = | $14,700 | |
| (–) Productivity Loss: | – | $0 | |
| | | -------------------------- | |
| (=) Subtotal: | = | $14,700 | |
| (+) Senior Appraised Value: | + | $0 | |
| (+) Non-Senior Appraised Value: | + | $14,700 | |
| | | -------------------------- | |
| (=) Total Appraised Value: | = | $14,700 | |
| (–) Senior Exemption Loss: | – | $0 | |
| (–) Exemption Loss: | – | $0 | |
| | | -------------------------- | |
| (=) Taxable Value: | = | $14,700 | |
Taxing Jurisdiction
| | Total Tax Rate: | N/A | | | | | |
| | | | | Taxes w/Current Exemptions: | N/A | | |
| | | | | Taxes w/o Exemptions: | N/A | | |
Improvement / Building
Sketch
| No sketches available for this property. |
Property Image
Land
| 1 | 1250-1185L | Standard Non-Water View Lots | 0.0000 | 0.00 | 0.00 | 0.00 | 1.00 | $14,700 | $0 |
Roll Value History
| 2025 | N/A | N/A | N/A | N/A | N/A |
| 2024 | $0 | $14,000 | $0 | $14,000 | $14,000 |
| 2023 | $0 | $14,000 | $0 | $14,000 | $14,000 |
| 2022 | $0 | $14,000 | $0 | $14,000 | $14,000 |
| 2021 | $0 | $11,025 | $0 | $11,025 | $11,025 |
Deed and Sales History
| 1 | 09/19/2025 | QCD | Quit Claim Deed | GANNA LEESON | ANYA M LEESON | | | | 145016 | |
| 2 | 05/22/2003 | SWD | Statutory Warranty Deed | WOODS, EDWARD/DELORIS J | LEESON, GANNA/CHET | 0 | 0 | $0.00 | 97506 | 0 |
Payout Agreement
| No payout information available.. |